Extension UnderBehandling Enebolig

Tilbygg og innvendig endring på enebolig, Alfons Johansens vei 2

📍 Alfons Johansens vei 2 , 9406 HARSTAD

Nøkkelinfo

Sakstype
Tilbygg
Bygningstype
Enebolig
Bruksareal
46 m²
Boenheter
1
Kommune
Harstad - Hárstták
Fylke
Troms - Romsa - Tromssa
Gnr / Bnr
58 / 121
Saksnummer
2025/8934
Fase
Under behandling

Om byggesaken

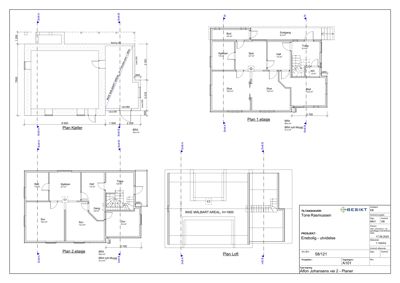
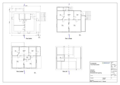
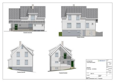
Ny tilbygg på ca. 46 m² BRA fordelt over tre etasjer til eksisterende enebolig i Alfons Johansens vei 2. Tilbygget inkluderer nytt bad/vaskerom på hovedplan, forbedret og sikrere trapp til loftsetasje, samt flytting av hovedinngang til boligens bakside. Eksisterende tømmervegger isoleres på begge sider, og vinduer byttes til nye med samme type og form. Taket isoleres og legges om med nytt skifertak og sinkbeslag. Utvendig kledning av tre beholdes med nødvendig vedlikehold og lufting. Grunnarbeid inkluderer meisling i fjell for ny drenering rundt huset. Prosjektet omfatter også oppgradering av sanitær- og røranlegg, samt betong- og murarbeider for fundamenter.

Produkter og materialer

Betong Fundamenter

Betongarbeider for fundamenter utført av Murbygg AS

Betongfundamenter for tilbygg

Isolasjon Vegger og tak

Isolering av tømmervegger på begge sider og takisolasjon

Isolasjon for vegger og tak for bedre boligstandard

Grunnarbeid Fjellmeisling og drenering

Meisling i fjell rundt huset for ny drenering utført av Solnes Maskin AS

Grunnarbeid med meisling i fjell og etablering av ny drenering

Vinduer Utskifting av vinduer

Antall: 6

Nye vinduer med samme type og form som eksisterende

Utskifting av eksisterende vinduer til nye med tilsvarende design

Tak Skifertak med beslag

🧱 Skifer og sinkbeslag

Nytt skifertak med sinkbeslag, taket isoleres

Isolert skifertak med sinkbeslag

Dører Hovedinngangsdør

Antall: 1

Ny hovedinngang flyttes til boligens bakside

Ny ytterdør for hovedinngang på ny plassering

Tømrer Tømrerarbeid og konstruksjon

Tømrerarbeid for tilbygg og isolering av tømmervegger, utført av Besikt AS

Tømrerarbeid inkludert konstruksjon og isolering av eksisterende vegger

VVS Sanitæranlegg og rørarbeid

Oppgradering av sanitær- og røranlegg, utført av Kan rør AS

Sanitærinstallasjoner for nytt bad og vaskerom

Trapper Innvendig trapp

Antall: 1

Ny og sikrere trapp til loftsetasje, erstatning for eksisterende farlig loftstrapp

Ny innvendig trapp for bedre og sikrere adkomst mellom etasjer

Fasade Utvendig trepanelkledning

🧱 Tre med lufting

Bevares og vedlikeholdes, eksisterende kledning har skader pga. manglende lufting

Utvendig trepanelkledning med nødvendig vedlikehold og lufting

Hendelser

17.04.2026 Svar på spørsmål om plankrav
16.02.2026 Spørsmål vedrørende byggesak
30.01.2026 Gbnr. 58/121 - Alfons Johansens vei 2 - Anmodning om opplysninger
03.10.2025 Gbnr. 58/121 Alfons Johansens vei 2 - Endring av bygg innvendig - Foreløpig svarbrev - Melding om saksbehandlingstid
22.09.2025 Søknad om tillatelse i ett trinn