Extension Ferdigattest Enebolig

Oppgradering av våtrom i enebolig, Allégaten 44, Bergen

📍 Allégaten 44 , 5007 BERGEN

Nøkkelinfo

Sakstype
Tilbygg
Bygningstype
Enebolig
Bruksareal
208 m²
Boenheter
1
Kommune
Bergen
Fylke
Vestland
Gnr / Bnr
164 / 722
Saksnummer
BYGG-2025/16334
Fase
Ferdigattest

Om byggesaken

Oppgradering av bad og tekniske installasjoner i en eksisterende enebolig på 208,3 m² i Allégaten 44, Bergen. Prosjektet omfatter utskifting av sluk og oppgradering av sanitærinstallasjoner i flere bad, samt rør-i-rør system for vann. Arbeidene inkluderer innvendig tømrerarbeid i våtrom og sanitærinstallasjoner, med fokus på å fjerne kobberrør og oppgradere våtrommets tekniske funksjoner. Det er ingen endringer på fasade eller bygningsstruktur, og tiltaket er gjennomført med uavhengig kontroll av fukt. Ferdigattest er gitt for tiltaket.

Produkter og materialer

Grunnarbeid Ingen endringer i grunnarbeid

Ingen grunnarbeider da tiltaket er innvendig oppgradering

Ingen grunnarbeid nødvendig for dette prosjektet

Tømrer Innvendig tømrerarbeid i våtrom

Arbeid i våtrom for oppgradering og tilpasning til nye tekniske installasjoner

Innvendig tømrerarbeid i våtrom for å tilpasse og ferdigstille oppgraderte bad

Isolasjon Våtromsisolasjon

Isolasjon tilpasset våtrom for fuktsikring

Isolasjon og fuktsikring i våtrom i forbindelse med oppgradering

VVS Sanitærinstallasjoner

Rør-i-rør system for vann, utskifting av sluk

Oppgradering av sanitærinstallasjoner i våtrom, inkludert utskifting av sluk og rør-i-rør vannsystem

Bad Våtromsoppgradering

Antall: 3

Oppgradering av tre bad med nye sluk og sanitærinstallasjoner

Oppgradering av tre bad i eneboligen, inkludert tekniske installasjoner og sluk

Elektro Tekniske installasjoner i våtrom

Oppgradering av tekniske installasjoner i våtrom, sannsynlig inkludert elektro

Oppgradering av tekniske installasjoner i våtrom, inkludert elektroarbeid

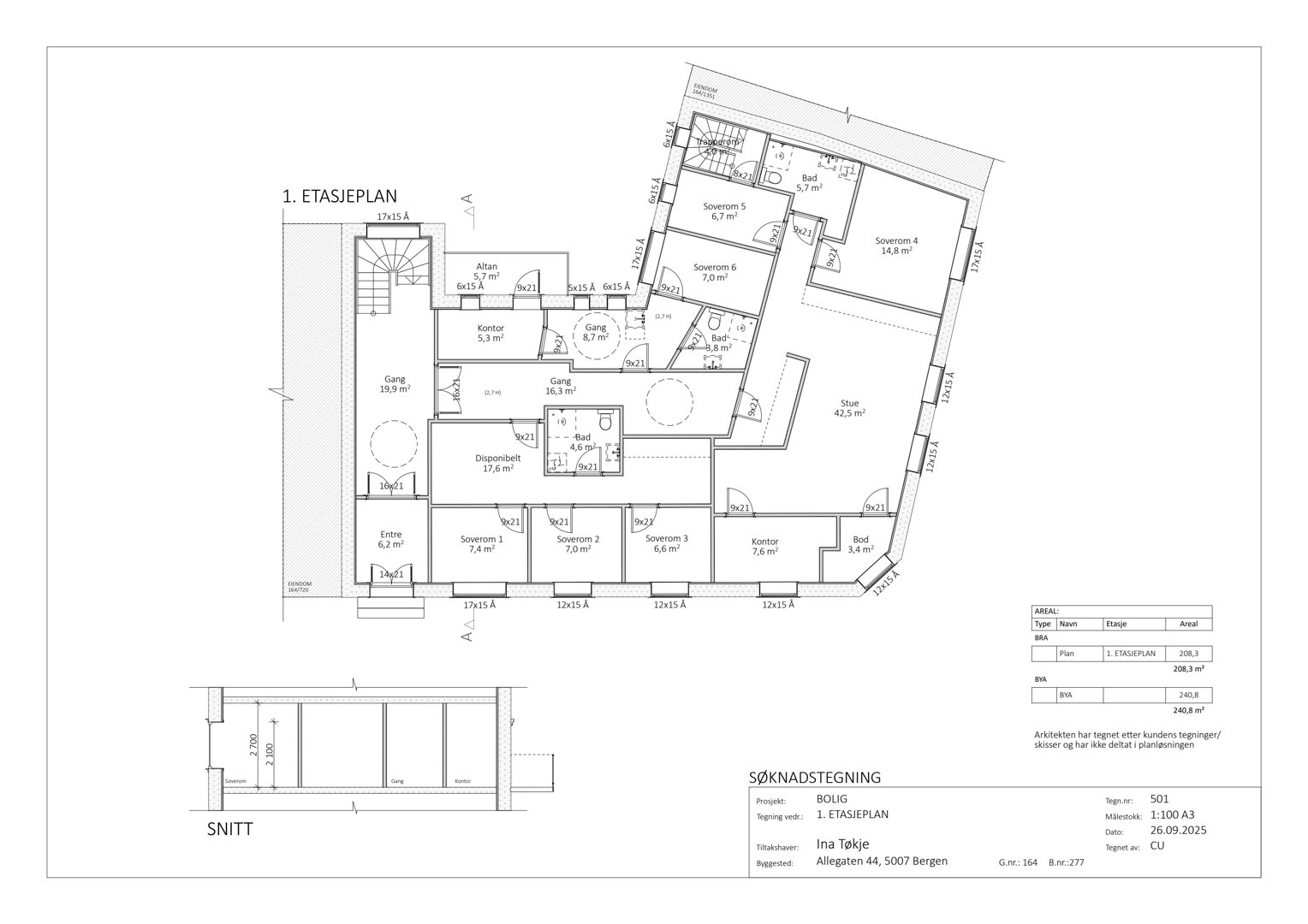
Plantegning

Enebolig 208.3 m²

Etasje 1 208.3 m²

Rom Areal Vinduer Dører
Stue 101 42.5 m² 2 1
Soverom 4 102 14.8 m² 1 1
Soverom 5 103 6.7 m² 1 1
Soverom 6 104 7.0 m² 1 1
Bad 105 5.7 m² 0 1
Gang 106 8.7 m² 0 2
Kontor 107 5.3 m² 1 1
Gang 108 16.3 m² 0 2
Bad 109 8.8 m² 0 1
Disponibelt 110 17.6 m² 0 1
Bad 111 4.6 m² 0 1
Soverom 1 112 7.4 m² 1 1
Soverom 2 113 7.0 m² 1 1
Soverom 3 114 6.6 m² 1 1
Kontor 115 7.6 m² 1 1
Bod 116 3.4 m² 1 1
Entre 117 6.2 m² 0 1
Altan 118 5.7 m² 1 1
Trappetromme 119 4.0 m² 0 1

Hendelser

10.04.2026 Ferdigattest,164/722/0/2 Allégaten 44
07.04.2026 Allégaten 44 Søknad om ferdigattest 164/722
04.11.2025 Fakturagrunnlag
04.11.2025 ubw ordre 20680582
20.10.2025 Tillatelse til tiltak med ansvarsrett,164/722/0/2 Allégaten 44
17.10.2025 Tilleggsopplysninger - 164/722/0/2 Allégaten 44, teknisk installasjon våtrom
16.10.2025 Behov for tilleggsopplysninger - 164/722/0/2 Allégaten 44, teknisk installasjon våtrom
02.10.2025 Allégaten 44 Søknad om tillatelse i ett trinn 164/722