Extension Ferdigattest Enebolig

Tilbygg og bruksendring i enebolig på Åmotveien 83

📍 Åmotveien 83 , 1389 HEGGEDAL

Nøkkelinfo

Sakstype
Tilbygg
Bygningstype
Enebolig
Bruksareal
30 m²
Boenheter
2
Kommune
Asker
Fylke
Akershus
Gnr / Bnr
96 / 11
Saksnummer
25/830
Fase
Ferdigattest

Om byggesaken

Ny tilbygg på ca. 30 m² i sokkeletasjen til en eksisterende enebolig på Åmotveien 83, som inkluderer et hobbyrom, utvidelse av soverom og oppholdsrom. Kjelleretasjen bruksendres til en selvstendig boenhet med kjøkken, bad, soverom, kontor og oppholdsrom. Tilbygget bygges med tre som fasademateriale og saltak med teglstein. Prosjektet omfatter også riving og gjenoppbygging av terrasse. Det installeres nye vinduer og glassdører i tilbygget for å sikre lys og luft, samt tekniske installasjoner som vannbåren gulvvarme, elektrisk anlegg og VVS for bad og kjøkken. Arealet på tilbygget er 30 m² BRA, og total tomteutnyttelse blir 18,8 %.

Produkter og materialer

Vinduer Glassdører og vinduer i tilbygget

Antall: 5

Glassdører og vinduer for lys og luft i tilbygget

Vinduer og glassdører for å sikre dagslys og ventilasjon i tilbygget

Fasade Trepanel

🧱 Tre

Fasade i tre med saltak og teglstein som takmateriale

Fasademateriale for tilbygget og eksisterende bygg

Bad Flislagt bad med membran og sluk

🧱 Fliser og membran

Antall: 2

Bad med dusj, vask, toalett, membranbelagt gulv og vegger, sluk og vannrør

Bad i kjellerleilighet og tilbygget bad

Terrasse Terrasse i kompositt

🧱 Kompositt

Antall: 1

Eksisterende terrasse rives og gjenoppføres etter tilbygg

Terrassearbeid knyttet til riving og gjenoppbygging

Gulv Tregulv med isoleringsmatter

🧱 Tre

Nye tregulv med isoleringsmatter under i kjøkken, oppholdsrom, kontor og soverom

Gulvbelegg i bruksendret kjellerleilighet

Grunnarbeid Fundamentering og drenering

Grunnarbeid for tilbygg på kjeller med nødvendig fundamentering og drenering

VVS Vannbåren gulvvarme og sanitærinstallasjoner

Vannbåren gulvvarme i kjeller, vannrør til bad og kjøkken, sluk i bad

VVS-installasjoner for varme og sanitær i kjeller og tilbygget

Elektro Elektrisk anlegg for belysning og strøm

Elektrikerarbeid for strøm til kjøkken, bad og øvrige rom

Elektroinstallasjoner i kjellerleilighet og tilbygget

Tømrer Lettvegger og konstruksjon

🧱 Tre

Lettvegger for inndeling av rom i kjellerleilighet og tilbygget

Tømrerarbeid for oppføring av tilbygg og innvendige vegger

Tak Saltak med teglstein

🧱 Teglstein

Saltak med teglstein som takmateriale

Taktekking for tilbygget

Kjøkken Kjøkkeninnredning

Antall: 2

Kjøkken i kjellerleilighet og i tilbygget

Kjøkkeninnredning med tilhørende VVS og elektroinstallasjoner

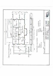
Plantegning

Enebolig 106.8 m²

Etasje 0 106.8 m²

Rom Areal Vinduer Dører
Garderobe GARDEROBE 8.3 m² 0 1
Garderobe GARDEROBE 9.9 m² 0 1
Teknisk rom TEKNISK 7.7 m² 0 1
Bad BAD 3.8 m² 0 1
Gang GANG 29.6 m² 0 3
Garderobe GARDEROBE 4.6 m² 0 1
Bod BOD 10.5 m² 2 1
Terrasse TERRASSE 7.6 m² 0 0
Kontor 001 8.3 m² 0 1
Kjøkken 002 10.4 m² 0 1
Soverom 003 9.9 m² 0 1
Oppholdsrom 004 0.0 m² 0 1
Bad 005 7.7 m² 0 1
Teknisk rom 006 12.7 m² 0 0
Oppholdsrom U01 23.0 m² 4 1
Soverom U02 9.9 m² 1 1
Bad U03 7.3 m² 0 1
Kjøkken U04 10.0 m² 1 1
Bad U05 6.0 m² 0 1
Bod 5.0 m² 0 1
Kjøkken 10.4 m² 0 1
Oppholdsrom 29.0 m² 3 1
Soverom 9.9 m² 1 1
Bad 7.7 m² 0 1
Teknisk rom 12.7 m² 0 1
Teknisk rom U06 12.7 m² 0 1

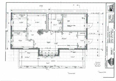
Tilbygg 48.6 m²

Etasje 0 48.6 m²

Rom Areal Vinduer Dører
Kontor Kontor 8.3 m² 1 1
Kjøkken Kjøkken 10.4 m² 1 1
Bad BAD 7.7 m² 0 1
Oppholdssrom Oppholdssrom 22.2 m² 3 1

Fasader

Enebolig

Nord
Materiale
Tre
Taktype
Saltak
Vinduer
2
Dører
0
Synlige etasjer
2
Sør
Materiale
Tre
Taktype
Saltak
Vinduer
2
Dører
1
Balkonger
1
Synlige etasjer
2
Nord-Vest
Materiale
Tre
Taktype
Saltak
Takmat.
Tegl
Vinduer
6
Dører
1
Balkonger
1
Synlige etasjer
2
Sør-Vest
Materiale
Tre
Taktype
Saltak
Takmat.
Tegl
Vinduer
4
Dører
1
Balkonger
1
Synlige etasjer
2

Hendelser

15.04.2026 96/11 Åmotveien 83 - Søknad om ferdigattest
29.08.2025 96/11 Åmotveien 83 - Tillatelse til tiltak i ett trinn for bruksendring og tilbygg
27.08.2025 96/11 Åmotveien 83 - Varsel om avslag på deler av søknaden
26.08.2025 96/11 Åmotveien 83 - Omprosjektert 22.8.-25 (ny løsning)
18.08.2025 96/11 Åmotveien 83 - Korrespondanse
16.07.2025 96/11 Åmotveien 83 - Svar på mangelbrev av 24.06.25
11.07.2025 96/11 Åmotveien 83 - Ufullstendig søknad nr. 2 om tilbygg og bruksendring
20.06.2025 96/11 - Åmotveien 83 - Ettersendt dokumentasjon
18.06.2025 96/11 Åmotveien 83 - Ufullstendig søknad - Tilbygg
13.03.2025 96/11 - Åmotveien 83 - Søknad om tiltak uten ansvarsrett - Tilbygg