Extension UnderBehandling Enebolig

Tilbygg og terrasseutvidelse på Åmotveien 83, Heggedal

📍 Åmotveien 83 , 1389 HEGGEDAL

Nøkkelinfo

Sakstype
Tilbygg
Bygningstype
Enebolig
Bruksareal
56 m²
Boenheter
1
Kommune
Asker
Fylke
Akershus
Gnr / Bnr
96 / 11
Saksnummer
21/1813
Fase
Under behandling

Om byggesaken

Ny tilbygg på 20 m² mot øst med endring av eksisterende inngangsparti og vindfang, samt utvidelse av eksisterende terrasse på 36 m² på vestsiden mot hagen. Tilbygget er en del av en enebolig med saltak og trekledning, og inkluderer rom som stue, kjøkken, TV-stue, arbeidsrom, gang, WC/vaskerom og trapp. Bygget har flere vinduer og dører fordelt på rommene, og trapper i tilbygget. Fasaden er i tre med saltak, og gesimshøyder varierer mellom 2,5 og 6,25 meter.

Produkter og materialer

VVS Sanitærinstallasjoner

VVS-installasjoner for WC/vaskerom i tilbygget

Trapper Innvendig trapp

Antall: 1

Trapp i tilbygget

Gulv Innvendige gulv

Gulv i tilbyggets rom

Maling Innvendig og utvendig maling

Maling av innvendige og utvendige flater

Dører Ytterdører og innerdører

Antall: 12

Dører til inngang, rom og utgang til terrasse

Isolasjon Vegger og tak

Isolasjon i vegger og tak i tilbygget

Fasade Trekledning

🧱 Tre

Fasade i tre med saltak, gesimshøyde 2.5-6.25 m

Trekledning til fasade på tilbygget og eksisterende bolig

Grunnarbeid Fundamentering og grunnmur

Grunnarbeid for tilbygg og terrasseutvidelse

Elektro Elektrisk anlegg

Elektrisk installasjon i tilbygget

Tak Saltak

Saltak på tilbygget og eksisterende bolig

Taktekking for saltak på tilbygget

Tømrer Bygging av tilbygg

Tømrerarbeid for oppføring av tilbygg og terrasse

Vinduer Fasadevindu

Antall: 14

Vinduer fordelt på stue, TV-stue, arbeidsrom, kjøkken/stue og WC/vaskerom

Terrasse Terrasseutvidelse

Utvidelse av eksisterende terrasse med 36 m²

Utvidelse av terrasse på vestsiden mot hagen

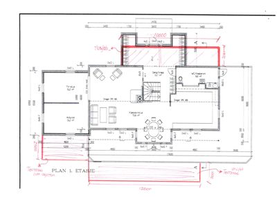
Plantegning

Tilbygg 100.0 m²

Etasje 1 100.0 m²

Rom Areal Vinduer Dører
Stue 101 45.0 m² 2 2
Kjøkken 102 15.0 m² 0 1
TV-stue 103 15.2 m² 1 0
Arbeidsrom 104 15.2 m² 1 0
Gang 105 4.0 m² 0 2
WC/Vaskerom 106 8.5 m² 0 1
Gang/Trapp 107 12.0 m² 0 1
TV-stue TV-stue 15.2 m² 3 1
Arbrom Arbrom 15.2 m² 0 1
Kjøkken/stue Kjøkken/stue 72.6 m² 4 3
Gang/trapp Gang/trapp 12.7 m² 0 2
WC/Vaskerom WC/Vaskerom 8.6 m² 1 1

Fasader

Enebolig

Ukjent
Taktype
Saltak
Vinduer
2
Dører
1
Synlige etasjer
1
Nord
Materiale
Tre
Taktype
Saltak
Høyde
2.5 m
Vinduer
2
Dører
1
Synlige etasjer
1
Nordøst
Materiale
Tre
Taktype
Saltak
Høyde
6.2 m
Vinduer
4
Dører
1
Synlige etasjer
2
Sør
Materiale
Tre
Taktype
Saltak
Høyde
4.5 m
Vinduer
1
Dører
1
Synlige etasjer
1

Hendelser

15.04.2026 96/11 Åmotveien 83 - Purring på svar om ferdigattest
14.05.2021 96/11 Tillatelse - Tilbygg bolig
23.04.2021 96/11 Kvitteringsbrev - Tilbygg bolig
23.04.2021 96/11 Søknad om tilbygg bolig