Extension Igangsettingstillatelse Enebolig

Nytt tilbygg på enebolig i Amtmand Aalls gate 73, Skien

📍 Amtmand Aalls gate 71 , 3716 SKIEN

Nøkkelinfo

Sakstype
Tilbygg
Bygningstype
Enebolig
Bruksareal
557 m²
Boenheter
1
Kommune
Skien
Fylke
Telemark
Gnr / Bnr
300 / 3018
Saksnummer
2025/21792
Fase
Igangsettingstillatelse

Om byggesaken

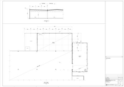
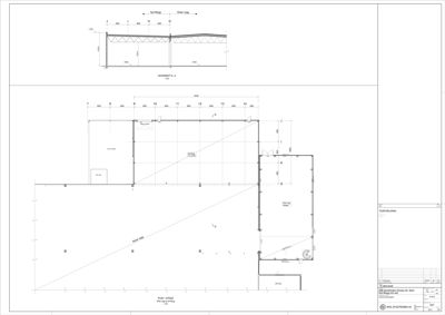
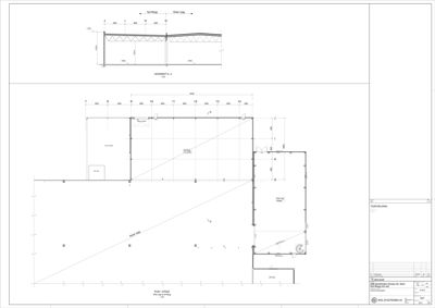
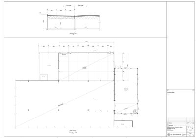
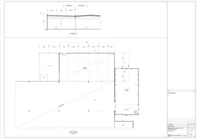
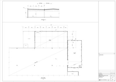
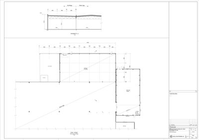
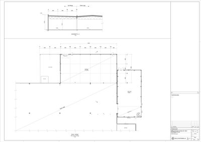
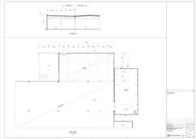
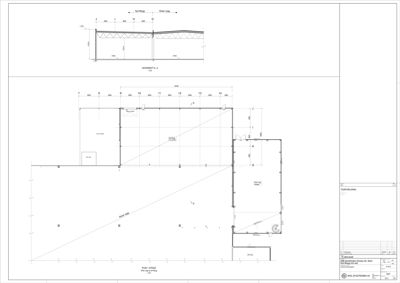
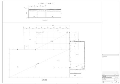
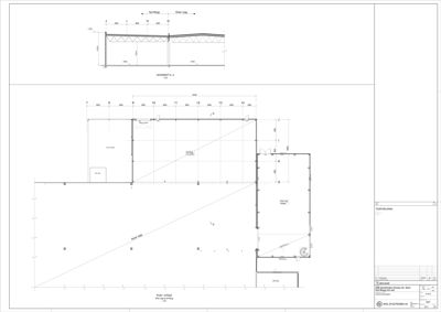
Nytt tilbygg på 557 m² BRA og 574 m² BYA til en eksisterende enebolig i Amtmand Aalls gate 73, Skien. Tilbygget er oppført i to etasjer med en gesimshøyde på 8,9 meter og utført med trekledning. Bygget inneholder blant annet høylager, glasskonstruksjoner, sandwich- og TRP-plater, og har flere vinduer og dører på fasaden mot vest. Prosjektet inkluderer grunnarbeider, plasstøpte betongkonstruksjoner, montering av bærende metall- og betongkonstruksjoner, taktekking, samt tekniske installasjoner som ventilasjon, sprinkleranlegg, brannalarmanlegg og ledesystem. Det er også etablert takvannsløsninger med forsinkersluk. Prosjektet er i igangsettingsfasen med flere delvise igangsettingstillatelser gitt for ulike fagområder.

Produkter og materialer

Tak Taktekking

Taktekkingsarbeider utført av STRAYE TAK AS

Taktekking for nytt tilbygg

VVS Ledesystem

Installasjon av ledesystem av CAVERION NORGE AS

Ledesystem for nødlys og rømningsveier

Tømrer Innvendige vegger og himlinger

🧱 Tre, isolasjon

Veggelementer EI 30 og T=120 mm, ubrennbar isolasjon

Innvendige vegger og himlinger i tilbygget

Elektro Nødlys

Utførelse av nødlys i tilknytning til brannalarmanlegg

Nødlys for rømningsveier

Ventilasjon Ventilasjon og klimainstallasjoner

Prosjektering og utførelse av ventilasjon og klimainstallasjoner av NORCONSULT NORGE AS og GK NORGE AS

Ventilasjons- og klimainstallasjoner for tilbygg

Grunnarbeid Graving og planering

Graving og grunnarbeider i henhold til godkjent tiltaksplan for forurenset grunn

Grunnarbeider for fundamentering og byggegrunn

Gulv Betonggulv

🧱 Betong

Betonggulv i nytt tilbygg

Gulv i tilbygget

Stål Bærende metallkonstruksjoner

🧱 Stål

Montering av stålkonstruksjoner, sandwich- og TRP-plater

Bærende stål- og metallkonstruksjoner for tilbygg

Grunnarbeid Drenering

Drenering i forbindelse med grunnarbeider

Drenering rundt tilbygget

Vinduer Fasadevindu

🧱 Glass og aluminium/tre

Antall: 24

Vinduer i fasade vest, 24 stk, høyde ca 11,5 m

Fasadevindu for tilbygg

VVS Brannalarmanlegg

Prosjektering og utførelse av brannalarmanlegg av CAVERION NORGE AS

Brannalarmanlegg for tilbygg

Betong Plasstøpte betongkonstruksjoner

🧱 Betong

Fundamentering og plasstøpt betongkonstruksjon

Betongarbeider for fundament og bærende konstruksjoner

VVS Sprinkleranlegg

Prosjektering og utførelse av sprinkleranlegg av NORRMAN SPRINKLERKONTROLL AS

Sprinkleranlegg for brannsikring

Fasade Sandwich- og TRP-plater, trekledning

🧱 Tre, sandwich- og TRP-plater

Antall: 24

Fasadekledning med sandwich- og TRP-plater, trekledning på fasade vest med 24 vinduer og 1 dør

Fasadeelementer og vinduer for nytt tilbygg

Dører Ytterdør

🧱 Tre/metal

Antall: 1

Ytterdør i fasade vest

Ytterdør for tilbygg

Fasader

Nytt tilbygg

Vest
Materiale
Tre
Høyde
8.9 m
Vinduer
24
Dører
1
Synlige etasjer
2

Eksisterende bygg

Vest
Materiale
Tre
Høyde
16.9 m
Vinduer
0
Dører
1
Synlige etasjer
2

Hendelser

16.04.2026 Redegjørelse om manglende ferdigmelding VA - Gbnr 300/3018 - Amtmand Aalls gate 73 - tilbygg
30.03.2026 Søknad om midlertidigbrukstillatelse - Gbnr 300/3018 - Amtmand Aalls gate 73 - tilbygg
30.01.2026 Igangsettingstillatelse (IG5) - Gbnr 300/3018 - Amtmand Aalls gate 73 - tilbygg
30.01.2026 Fakturagrunnlag - Gbnr 300/3018 - Amtmand Aalls gate 73 - tilbygg
28.01.2026 Søknad om igangsettingstillatelse - Gbnr 300/3018 - Amtmand Aalls gate 73 - tilbygg
12.01.2026 Fakturagrunnlag - Gbnr 300/3018 - Amtmand Aalls gate 73 - tilbygg
09.01.2026 Igangsettingstillatelse (IG4) - Gbnr 300/3018 - Amtmand Aalls gate 73 - tilbygg
07.01.2026 Søknad om igangsettingstillatelse (IG4) - Gbnr 300/3018 - Amtmand Aalls gate 73 - tilbygg
22.12.2025 Fakturagrunnlag - Gbnr 300/3018 - Amtmand Aalls gate 73 - tilbygg
19.12.2025 Igangsettingstillatelse (IG3) - Gbnr 300/3018 - Amtmand Aalls gate 73 - tilbygg
15.12.2025 Søknad om igangsettingstillatelse (IG3) - Gbnr 300/3018 - Amtmand Aalls gate 73 - tilbygg
27.11.2025 Fakturagrunnlag - Gbnr 300/3018 - Amtmand Aalls gate 73 - tilbygg
26.11.2025 Igangsettingstillatelse (IG2) - Gbnr 300/3018 - Amtmand Aalls gate 73 - tilbygg
24.11.2025 Søknad om igangsettingstillatelse - Gbnr 300/3018 - Amtmand Aalls gate 73 - tilbygg
03.11.2025 Igangsettingstillatelse (IG1) - Gbnr 300/3018 - Amtmand Aalls gate 73 - tilbygg
31.10.2025 Fakturagrunnlag - Gbnr 300/3018 - Amtmand Aalls gate 73 - tilbygg
27.10.2025 Søknad om igangsettingstillatelse - Gbnr 300/3018 - Amtmand Aalls gate 73 - tilbygg
23.10.2025 Vi innvilger søknaden om samtykke etter automatisk saksbehandling - Gbnr 300/3018 - Amtmand Aalls gate 73 - tilbygg
03.10.2025 Rammetillatelse - Gbnr 300/3018 - Amtmand Aalls gate 73 - tilbygg
03.10.2025 Fakturagrunnlag - Gbnr 300/3018 - Amtmand Aalls gate 73 - tilbygg - Rammetillatelse
23.09.2025 Søknad om rammetillatelse - Gbnr 300/3018 - Amtmand Aalls gate 73 - tilbygg