Extension Rammetillatelse Enebolig

Tilbygg og ombygging med bruksendring til bolig, Arefjordvegen 267

📍 Arefjordvegen 267 , 5355 KNARREVIK

Nøkkelinfo

Sakstype
Tilbygg
Bygningstype
Enebolig
Bruksareal
137 m²
Boenheter
1
Kommune
Øygarden
Fylke
Vestland
Gnr / Bnr
41 / 172
Saksnummer
24/17278
Fase
Rammetillatelse

Om byggesaken

Tiltaket omfatter totalombygging og tilbygg av eksisterende bolig på Arefjordvegen 267, tidligere hytte regulert til fritidsbebyggelse. Bygget har to etasjer med samlet BRA på ca. 137 m² og BYA på 175 m² etter ombygging. Eksisterende uthus på 15 m² rives, og bod på 26 m² beholdes. Bygningen får moderne, organisk arkitektur med massivtrekonstruksjon og fasader i tre og steinfinér. Uteoppholdsarealer på terreng og takterrasser utgjør til sammen over 190 m², med støyskjermende rekkverk. Tiltaket er i strid med reguleringsplanens formål «hytte» og byggegrenser mot vei og sjø, men dispensasjon er gitt. Skredfarevurdering viser dimensjonerende fare for steinsprang, men tiltaket ligger utenfor faresonen. Overvannshåndtering er planlagt med faste renner og flomveier. Adkomst via avkjørsel fra fylkesvei er godkjent, men ferdigattest for avkjørsel må foreligge før ferdigattest for tiltaket. Tiltakshaver er selvbygger med relevant kompetanse og ansvar for prosjektering og utførelse.

Produkter og materialer

Grunnarbeid Drenering og overvannshåndtering

Faste renner, åpne grøfter, kum/sandfang, flomveier for overvann

Overvannshåndtering og drenering for eiendom og vei

Gulv Eikeparkett

🧱 Eik

Eikeparkett i oppholdsrom

Innvendige gulvflater

Betong Fundament og murkonstruksjoner

🧱 Betong og mur

Eksisterende betong- og murkonstruksjoner vurdert tilstrekkelige for ombygging

Fundament og bærende konstruksjoner

Rekkverk Støyskjermende rekkverk

🧱 Tre eller annet tett materiale

Rekkverk som støyskjerm, 1,2 m høy mot nord og 1 m høy mot vest

Støyskjerming for uteoppholdsarealer

Elektro Elektrisk installasjon

Elektrisk installasjon i henhold til TEK17

El-installasjon for bolig

Ventilasjon Mekanisk ventilasjon

Ventilasjon i henhold til TEK17

Ventilasjon for bolig

Trapper Innvendig trapp

🧱 Tre

Antall: 1

Trapp på 3 m² i bolig

Innvendig trapp mellom etasjer

Vinduer Takterrassevindu

🧱 Tre

Antall: 6

Vinduer til takterrasser

Tømrer Massivtre konstruksjon

🧱 Massivtre

Hovedkonstruksjon i massivtre

Bærekonstruksjon for tilbygg og ombygging

VVS Minirenseanlegg

Antall: 1

Klargester BioDisc minirenseanlegg klasse 1, godkjent av SINTEF

Avløpsrenseanlegg for sanitært avløpsvann

Tak Flatt tak

Flatt tak på to etasjer

Taktype for bolig

Dører Ytterdører

🧱 Tre

Antall: 6

Ytterdører i tre til bolig og uteområder

Fasade Trepanel og steinfinér

🧱 Tre og steinfinér

Fasader i tre med steinfinér som ligner fjelloverflater

Fasadebekledning for bolig

Vinduer Fasadevindu

🧱 Tre

Antall: 8

Fasadevinduer i tre, fordelt på begge etasjer

VVS Privat vannledning

🧱 Plast

Antall: 1

Eksisterende privat vannledning fra 1980-tallet, IPVC Ø110 mm

Privat vannledning med tinglyst rettighet over naboeiendom

Bad Baderomsinnredning

Antall: 2

Bad på ca. 4,4 m² og 4,6 m² med standard innredning

Bad i begge etasjer

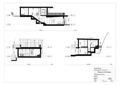
Plantegning

Enebolig 192.4 m²

Etasje 1 123.4 m²

Rom Areal Vinduer Dører
Stue/kjøkken/spisestue 101 35.9 m² 4 2
Bad 102 4.4 m² 0 1
Tek.rom 103 2.7 m² 0 1
Gang 104 8.2 m² 0 2
Kontor 105 4.3 m² 1 1
Trapp 106 3.0 m² 0 0
Eksist. krypkjeller 107 0.0 m² 0 0

Etasje 2 69.0 m²

Rom Areal Vinduer Dører
Sov 201 14.7 m² 1 1
Sov 202 8.2 m² 1 1
Sov 203 7.4 m² 1 1
TV Stue 204 9.2 m² 1 1
Bad 205 4.6 m² 0 1
Gang/Trapp 206 5.7 m² 0 1

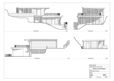
Fasader

Enebolig

Vest
Materiale
Tre
Taktype
Flatt tak
Vinduer
1
Dører
1
Balkonger
1
Synlige etasjer
2
Sør
Materiale
Tre
Taktype
Flatt tak
Vinduer
4
Dører
2
Balkonger
1
Synlige etasjer
2
Øst
Materiale
Tre
Taktype
Flatt tak
Vinduer
1
Dører
0
Balkonger
1
Synlige etasjer
1
Nord
Materiale
Tre
Taktype
Flatt tak
Vinduer
1
Dører
1
Synlige etasjer
1

Hendelser

17.11.2025 GBNR 41/172 - Stadfesting av vedtak av 27.02.2025 og 04.06.2026
25.08.2025 GBNR 41/172 - Oversending av klagesak til statsforvaltaren for endeleg avgjerd - bruksendring, ombygging og tilbygg
23.06.2025 GBNR 41/172 - Førebels svar på mottatt klage på vedtak 790/25 - avslag på søknad om redusert gebyr
19.06.2025 GBNR 41/172 - Klage på vedtak - avslag på søknad om reduksjon av gebyr
06.06.2025 Svar på krav om innsyn i byggesaka - Interne vurderingar, saksutgreiingar mm.
06.06.2025 Ber om innsyn i byggesaka - Interne vurderingar, saksutgreiingar mm.
04.06.2025 GBNR 41/172 - Avslag på søknad om reduksjon av gebyr
11.04.2025 GBNR 41/172 - Klage på faktura
28.02.2025 GBNR 41/172 - Vedtak til klagevurdering
28.02.2025 GBNR 41/172 - Vedtak om løyve i eitt-trinn
27.02.2025 GBNR 41/172 - Tilleggsdokumentasjon
07.02.2025 GBNR 41/172 - Ber om dokumentasjon
07.02.2025 GBNR 41/172 - Tilbakemelding om manglar
07.02.2025 GBNR 41/172 - Tilleggsopplysningar og dokumentasjon
31.01.2025 GBNR 41/172 - Framleis manglar ved søknaden
14.01.2025 GBNR 41/172 - Svar - vedkomande uttale om dispensasjon
20.12.2024 GBNR 41/172 - Uttale til dispensasjonssøknad
12.12.2024 GBNR 41/172 - Oversender søknad til uttale
11.12.2024 GBNR 41/172 - Tilbakemelding om manglar
29.11.2024 GBNR 41/172 - Tilbakemelding om manglar
18.11.2024 GBNR 41/172 - Tilbakemelding om manglar
13.11.2024 GBNR 41/172 - Tilbakemelding om manglar
05.11.2024 GBNR 41/172 - Svar på tilbakemelding om manglar
05.11.2024 GBNR 41/172 - Svar på tilbakemelding om manglar
18.09.2024 GBNR 41/172 - Tilbakemelding om manglar
02.09.2024 GBNR 41/172 - Søknad om løyve i eitt trinn