Extension Rammetillatelse Enebolig

Tilbygg, garasje og takendring på Askåsen 46, Nesbru

📍 Askåsen 46 , 1394 NESBRU

Nøkkelinfo

Sakstype
Tilbygg
Bygningstype
Enebolig
Bruksareal
292 m²
Boenheter
1
Kommune
Asker
Fylke
Akershus
Gnr / Bnr
39 / 727
Saksnummer
25/2371
Fase
Rammetillatelse

Om byggesaken

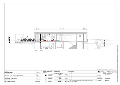
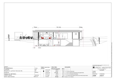
Tiltaket omfatter hovedombygging av enebolig med tilbygg på ca. 35 m², inkludert utvidelse av taket med flatt tak, etterisolering av vegger i begge etasjer, og etablering av ny uteplass med pergola, blomsterkasser, platting og trapp i terreng. Eksisterende carport rives, og ny frittliggende garasje på ca. 47 m² bygges inn i terrenget med kun én fasade eksponert mot vei, og med vegetasjon på taket for å fremstå som underjordisk. Ny avkjørsel flyttes fra nord til sørøst med snuplass på egen tomt. Terrengtrapp og lysgrav etableres. Tiltaket inkluderer også riving av eksisterende carport og endring av avkjørsel. Garasjen har gesimshøyde på 3 meter og taket er flatt. Terrenginngrep holdes under 50 % av tomten, med støttemurer under 1 meter. Tiltaket er tilpasset områdets karakter med hvit mur i sokkeletasje, trekledning og tegl i hovedetasjen. Trafikksikkerheten bedres ved ny avkjørsel. Det er gitt dispensasjon for garasjens størrelse og plassering nær vei, samt unntak fra TEK17 for takhøyde og isolasjonskrav. Tiltaket har fått nabostøtte, men også merknader vedrørende trafikk og områdets karakter.

Arbeidsomfang

- Riving av eksisterende carport - Riving og utvidelse av tak (flatt tak) i begge etasjer - Etterisolering av veggkonstruksjon i begge etasjer - Nytt vinduer og dører for å oppnå krav om U-verdi - Utvidelse av taket med nytt tilbygg (garasje) - Nytt avkjørsel i sørøst mot Breiviklia med tilhørende garasje - Terrengtrapp på nordøstsiden - Lysgrav på sørvestsiden utenfor sokkeletasje - Utbygging av uteplass på terreng med pergola, blomsterkasser, planter og trapp på sørvestsiden

Produkter og materialer

Isolasjon Etterisolering

Etterisolering av vegger i begge etasjer med utforing og vindtetting

Isolasjonstiltak for bedre energieffektivitet, med unntak fra enkelte TEK17 krav

Fasade Fasade med trekledning og teglstein

🧱 Trekledning, teglstein, hvit mur i sokkeletasje

Hvit mur i sokkeletasje, trekledning og teglstein i hovedetasjen, tilpasset områdets karakter

Fasadeendringer med materialbruk som ivaretar områdets karakter

Dører Ytterdører

Antall: 9

Nye dører som tilfredsstiller dagens krav til U-verdi

Dører med god isolasjon og tetthet

Terrasse Uteplass med pergola, platting, blomsterkasser og trapp i terreng

Antall: 1

Pergola plassert 3,4 m fra eiendomsgrense, flyttet inn mot huskroppen, åpen og luftig konstruksjon

Uteplass på terreng med pergola, platting, blomsterkasser og trapp, uten større terrenginngrep

Mur Støttemur

🧱 Betong

Støttemurer under 1 m høyde, tilpasset terreng og uteområder

Støttemurer i forbindelse med terrengtrapp og uteplass, ikke dominerende

Vinduer Vinduer med antirefleksjon

Antall: 14

Nye vinduer som tilfredsstiller dagens krav til U-verdi, uten soldemping som gir refleksjoner

Vinduer med god isolasjon og redusert lysrefleksjon mot sjø

Rekkverk Rekkverk på garasjetak

Antall: 1

Rekkverk som sikring mot fall på garasjetak med 3 m høyde over terreng

Fallvern på garasjetak i henhold til TEK17

Elektro Varsling til ledningseier

Varsling til ledningseier om tiltak ved strømstolpe ved eksisterende avkjørsel

Varsling og koordinering med strømleverandør ved eksisterende infrastruktur

Grunnarbeid Byggegrop og fundamentering

Byggegrop for underjordisk garasje med pukkfundament på undersprengt fjell, stabilitet sikres med PRO geoteknikk

Grunnarbeid med sikring av byggegrop og fundamentering på fjell, kontrollert av geoteknisk ansvarlig

VVS Ventilasjon

Installasjon av energieffektivt ventilasjonsanlegg med varmegjenvinning

Ventilasjonsanlegg for forbedret energieffektivitet i bolig

Garasjeport Garasjeport til frittliggende garasje

Antall: 1

Garasje på 46,9 m² BRA, underjordisk med mørk/sortmalt trekledning, gesimshøyde 3 m, flatt tak, én fasade eksponert mot vei

Garasje med plass til to biler og lagringsplass, integrert i terreng med vegetasjon på taket

Tak Flatt tak

Flatt tak på bolig og garasje, takhøyde unntak for sokkeletasje

Nytt flatt tak på bolig og garasje, med unntak fra TEK17 for takhøyde i sokkeletasje

VVS Vann- og avløpsledninger

VA-ledninger legges om for å unngå konflikt med ny garasje

Omlegging av vann- og avløpsledninger i forbindelse med ny garasje

Trapper Terrengtrapp

🧱 Betong

Antall: 1

Terrengtrapp på nordøstsiden, plassert inntil 1 m fra nabogrense med nabosamtykke

Terrengtrapp med tilhørende støttemur under 1 m høyde, tilpasset eksisterende terreng

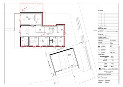
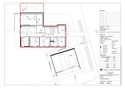
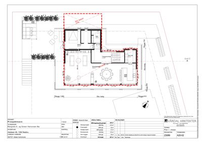
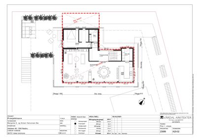
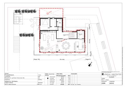
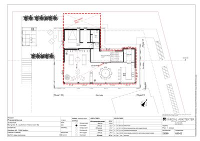
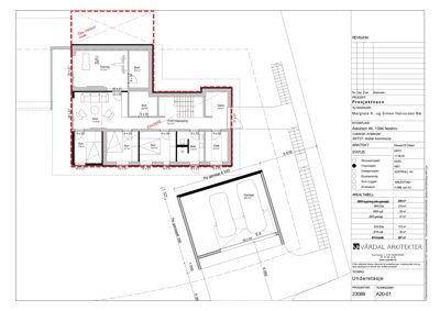
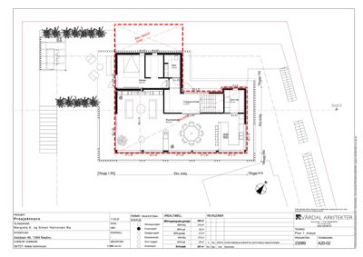
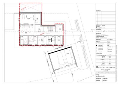
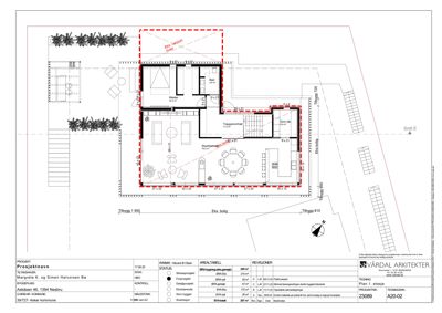
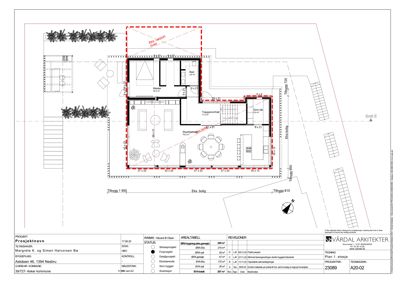
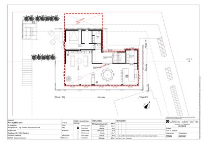
Plantegning

Enebolig 205.5 m²

Etasje 1 120.5 m²

Rom Areal Vinduer Dører
Stue 101 35.2 m² 3 2
Sovev. 1 102 12.5 m² 1 1
Sovev. 2 103 11.8 m² 1 1
Sovev. 3 104 11.2 m² 1 1
Bad 105 6.5 m² 0 1
Gang 106 8.0 m² 0 3
Kjøkken 107 14.0 m² 1 1
Vaskerom 108 4.5 m² 0 1
Trapperom 109 3.0 m² 0 1

Etasje 2 85.0 m²

Rom Areal Vinduer Dører
Sovev. 1 201 14.0 m² 1 1
Sovev. 2 202 13.5 m² 1 1
Sovev. 3 203 13.0 m² 1 1
Sovev. 4 204 12.5 m² 1 1
Bad 205 6.0 m² 0 1
Gang 206 10.0 m² 0 3
Trapperom 207 3.5 m² 0 1

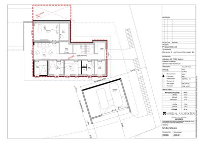
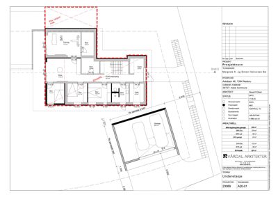
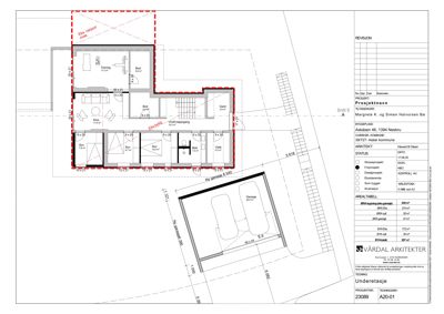
Underetasje 245.0 m²

Etasje 0 245.0 m²

Rom Areal Vinduer Dører
Trening 001 17.3 m² 0 1
Bod 002 6.6 m² 0 1
Kino 003 17.9 m² 0 1
Bod 004 6.0 m² 0 1
Gang 005 19.3 m² 0 2
Gard 006 4.9 m² 0 1
Sov 007 7.8 m² 1 1
Sov 008 8.7 m² 1 1
Sov 009 10.0 m² 1 1
Bad 010 7.4 m² 0 1
Vask 011 6.2 m² 1 1

Fasader

Eks.bolig

Nordvest
Materiale
Tre
Taktype
Flatt tak
Vinduer
4
Dører
1
Synlige etasjer
1
Sørøst
Materiale
Tre
Taktype
Flatt tak
Vinduer
6
Dører
1
Balkonger
1
Synlige etasjer
2

Eksisterende bolig

Sørvest
Materiale
Tre
Taktype
Flatt tak
Vinduer
2
Dører
1
Balkonger
1
Synlige etasjer
1
Nordøst
Materiale
Tre
Taktype
Flatt tak
Høyde
6.0 m
Vinduer
1
Dører
1
Balkonger
1
Synlige etasjer
2
Nordvest
Materiale
Tre
Taktype
Flatt tak
Vinduer
4
Dører
1
Synlige etasjer
1

Eks. bolig

Sørøst
Materiale
Betong
Taktype
Flatt tak
Høyde
4.5 m
Mønehøyde
6.0 m
Vinduer
5
Dører
5
Balkonger
1
Synlige etasjer
2

Ny garasje

Nordøst
Materiale
Tre
Taktype
Flatt tak
Høyde
3.0 m
Vinduer
0
Dører
1
Synlige etasjer
1
Sørøst
Materiale
Betong
Taktype
Flatt tak
Høyde
2.5 m
Mønehøyde
2.5 m
Vinduer
0
Dører
1
Synlige etasjer
1

Hendelser

08.04.2026 39/727 Askåsen 46 - Statsforvalterens melding om saksbehandlingstid i klagesak klage
30.03.2026 39/727 Askåsen 46 - Oversendelse av klage til Statsforvalter klage
02.03.2026 39/727 Askåsen 46 - Supplering til tidligere innsendt uttalelse til klage klage
03.02.2026 39/727 Askåsen 46 - Avslag på søknad om redusert gebyr avslag
28.01.2026 39/727 Askåsen 46 - Tilsvar til klage på vedtak med vedlegg klage
19.01.2026 39/727 Askåsen 46 - Støtteerklæring fra naboer
16.01.2026 39/727 Askåsen 46 - Støtteerklæring
16.01.2026 39/727 Askåsen 46 - Anmodning om uttalelse til klage klage
16.01.2026 39/727 Askåsen 46 - Kvittering for mottatt klage klage
14.01.2026 39/727 Askåsen 46 - Anmodning om gjennomgang og reduksjon av byggesaksgebyr
12.01.2026 39/727 Askåsen 46 - Klage over vedtak - Innvilget dispensasjon og rammetillatelse rammetillatelse
07.01.2026 39/727 Askåsen 46 - Anmodning om utsatt klagefrist fra nabo i Breiviklia 51 (39/762) klage
02.01.2026 39/727 Askåsen 46 - Ytterligere kommentar fra nabo i Breiviklia 51 (39/762)
29.12.2025 39/727 Askåsen 46 - Innvilget dispensasjon og rammetillatelse for tilbygg, endring av tak, etterisolering, lysgrav, riving av carport, ny avkjørsel, bygging av garasje mm. rammetillatelse
19.12.2025 39/727 Askåsen 46 - Henvendelse fra nabo i Breiviklia 51 (39/762)
11.12.2025 39/727 Askåsen 46 - Supplering av søknad søknad
01.12.2025 39/727 Askåsen 46 - Supplering av søknad søknad
27.11.2025 39/727 Askåsen 46 - Foreløpig svar på supplering av søknad på e-post - Behov for supplering søknad
14.11.2025 39/727 Askåsen 46 - Supplering av søknad søknad
07.11.2025 39/727 Askåsen 46 - Oversendelse av uttalelser - Behov for supplering
30.10.2025 39/727 Askåsen 46 - Statsforvalterens uttalelse til søknad om dispensasjon fra kommuneplan for oppføring av garasje og riving av carport dispensasjon
28.10.2025 39/727 Askåsen 46 - Fylkeskommunens uttalelse til søknad om dispensasjon dispensasjon
06.10.2025 39/727 Askåsen 46 - Anmodning om uttalelse til søknad om dispensasjoner - Oppføring av garasje og riving av carport dispensasjon
01.10.2025 39/727 Askåsen 46 - Supplering av søknad søknad
01.10.2025 39/727 Askåsen 46 - Vi trenger flere opplysninger - Endring av tak, endring av avkjørsel, bygging av uteplass på terreng og bygging av garasje mm.
14.07.2025 39/727 Askåsen 46 - Søknad om rammetillatelse - Endring av tak, endring av avkjørsel, bygging av uteplass på terreng og bygging av garasje mm. rammetillatelse