Extension Soeknad Enebolig

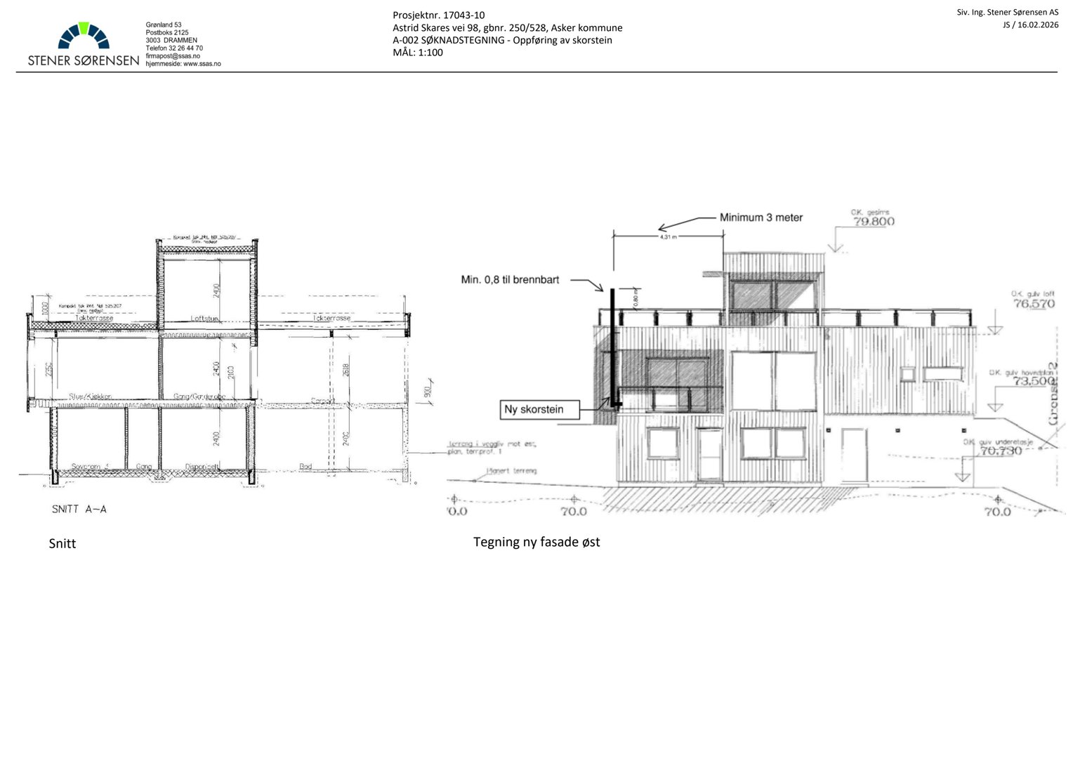
Oppføring av stålpipe på enebolig, Astrid Skares vei 98

📍 Astrid Skares vei 98 , 3474 ÅROS

Nøkkelinfo

Sakstype
Tilbygg
Bygningstype
Enebolig
Boenheter
1
Kommune
Asker
Fylke
Akershus
Gnr / Bnr
250 / 528
Saksnummer
26/1245
Fase
Søknad

Om byggesaken

Ny stålpipe monteres på eksisterende enebolig i Astrid Skares vei 98. Pipa er en Jøtul NVI 2000 stålpipesystem, hel- og halvisolert, med CE-merking og godkjent for vedfyring med maksimal røykgasstemperatur på 450°C. Pipa plasseres som en på-veggspipe på sydfasaden, skjult bak karnapp, og strekker seg over tak i forskriftsmessig høyde. Systemet inkluderer modulære stålpipemoduler, veggkonsoll, takgjennomføring med takhette, regnkrage, kondensbeskyttelse og nødvendig isolasjon og tetting. Montering utføres av BRÅTHEN MURSERVICE AS med ansvarlig prosjekterende Siv. Ing. Stener Sørensen AS. Pipa tilkobles vedovn for vedfyring som supplement til eksisterende vannbåren varme. Det er gjennomført nabovarsel og merknad er trukket. Prosjektet omfatter også nødvendige gjennomføringer i vegg og tak med brann- og kondensbeskyttelse.

Produkter og materialer

Pipe Stålpipe modul NVI 2000

🧱 Rustfritt stål EN 1.4404 (SS 2348, ANSI 316L)

CE-merket, hel- og halvisolert moduler, dimensjon Ø125-Ø250 mm, temperaturklasse T450, maks 20 m lengde, sikkerhetsavstand 50 mm til brennbart

Modulære stålpipemoduler til oppføring av pipe med isolasjon og bekledning

Tømrer Gjennomføringssjakt i brennbar vegg

🧱 Mineralull, ubrennbare plater/gipsplater

Sjakt med min. 50 mm avstand til pipe, isolert med steinullmatte, inkl. inspeksjonsluke

Brannsikker sjakt for pipegjennomføring i brennbar vegg

Annet Monteringstjenester

Montering av pipe utført av BRÅTHEN MURSERVICE AS med ansvarsrett

Utførelse av montering og installasjon av stålpipen

Pipe Veggkonsoll og veggbeslag

🧱 Stål

Forankring og støtte av pipe på vegg, med bæreelementer og forlengere

Veggfeste for pipe med nødvendig bærekapasitet

Tak Takgjennomføring med takhette og regnkrage

🧱 Stål og tetningsmaterialer

Antall: 1

Rund eller firkantet takhette, regnkrage, kondensbeskyttelse, tetningslister og underbeslag tilpasset taktype

Takgjennomføring for pipe med tetting og beskyttelse mot vær og kondens

Ventilasjon Kondensbeskyttelse (filtring)

Antall: 1

Filtring montert på siste skjøt før yttertak for å suge opp kondens

Kondensbeskyttelse for stålpipen

Elektro Monteringsanvisning og CE-merking

CE-merking på pipe, monteringsveiledning for korrekt installasjon

Dokumentasjon og merking for godkjent installasjon

Isolasjon Steinullisolasjon og nettarmert matte

🧱 Steinull

Isolasjon rundt pipe i bjelkelag og veggjennomføringer, nettarmert matte for tilleggsisolasjon

Isolasjon for brannsikker gjennomføring og kondensbeskyttelse

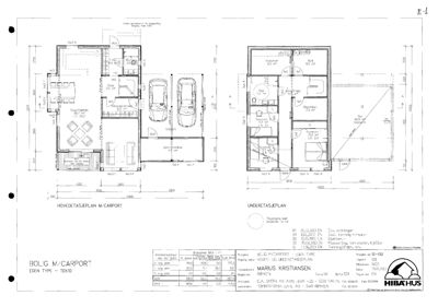
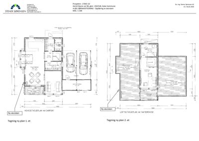
Plantegning

Enebolig 345.7 m²

Etasje 1 120.5 m²

Rom Areal Vinduer Dører
Stue/Kjøkken 101 58.7 m² 3 2
Gang 102 3.5 m² 0 2
Toalett 103 3.5 m² 0 1
Gang/garderobe 104 6.3 m² 0 1
Carport 105 11.7 m² 0 1
Sport/redskap 106 11.7 m² 0 1

Etasje 2 100.0 m²

Rom Areal Vinduer Dører
Lofstue 201 1.8 m² 0 1
Soverom 4 202 8.6 m² 1 1
Takterrasse 203 89.6 m² 0 0

Etasje 0 125.2 m²

Rom Areal Vinduer Dører
Vaskerom U01 9.3 m² 0 1
Bod U02 8.0 m² 0 1
Bad U03 7.4 m² 0 1
Soverom U04 7.7 m² 1 1
Soverom U05 7.7 m² 1 1
Soverom U06 15.0 m² 1 1
Gang U07 7.0 m² 0 2
Gang U08 17.9 m² 0 2
Bod U09 40.5 m² 0 1

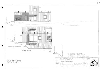
Fasader

Enebolig

Øst
Materiale
Tre
Taktype
Flatt tak
Høyde
6.5 m
Mønehøyde
79.8 m
Vinduer
4
Dører
1
Balkonger
1
Synlige etasjer
2
Vest
Materiale
Tre
Taktype
Flatt tak
Høyde
7.2 m
Vinduer
2
Dører
1
Balkonger
1
Synlige etasjer
2
Sør
Materiale
Tre
Taktype
Flatt tak
Høyde
7.2 m
Vinduer
4
Dører
0
Balkonger
1
Synlige etasjer
2

BOLIG M/CARPORT

Øst
Materiale
Tre
Taktype
Flatt tak
Høyde
3.5 m
Vinduer
6
Dører
2
Balkonger
1
Synlige etasjer
2
Nord
Materiale
Tre
Vinduer
3
Dører
1
Balkonger
1
Synlige etasjer
2

Hendelser

21.04.2026 250/528 Astrid Skares vei 98 - Søknad om tillatelse i ett trinn - Oppføring av stålpipe