Extension Ferdigattest Enebolig

Tilbygg i to etasjer på enebolig, Bergveien 25

📍 Bergveien 25 , 3057 SOLBERGELVA

Nøkkelinfo

Sakstype
Tilbygg
Bygningstype
Enebolig
Bruksareal
25 m²
Boenheter
1
Kommune
Drammen
Fylke
Buskerud
Gnr / Bnr
245 / 1264
Saksnummer
25/34313
Fase
Ferdigattest

Om byggesaken

Ny to-etasjes tilbygg på eksisterende enebolig i Bergveien 25, Solbergelva, med et samlet bruksareal på 25,4 m² og bebygd areal på 8,8 m². Tilbygget plasseres på sørfasaden med avstand 2,7-2,8 meter fra nabogrense. Første etasje inneholder stue, kjøkken, gang, vask/WC, vindfang og flere boder, mens andre etasje har tre soverom, bad og gang. Bygget har god arkitektonisk utforming og tilfredsstiller krav til grad av utnyttelse, parkeringsløsning og blågrønn faktor. Det er én trapp i tilbygget, og fasader, snitt og planløsninger er dokumentert i arbeidstegninger.

Produkter og materialer

Isolasjon Vegger og tak

Isolasjon i vegger og tak for energieffektivitet og komfort

Gulv Innvendige gulvflater

Innvendige gulv i tilbygget, inkludert stue, kjøkken og soverom

Elektro El-installasjoner

Elektriske installasjoner for belysning, stikkontakter og varme

Grunnarbeid Fundamentering og grunnmur

Grunnarbeid for nytt tilbygg med fundamentering og grunnmur

Bad Baderomsinnredning

Antall: 1

Bad med sanitærutstyr i andre etasje i tilbygget

Maling Innvendig og utvendig maling

Maling av innvendige og utvendige flater i tilbygget

Tømrer Bærekonstruksjon og innvendige vegger

Tømrerarbeid for bærekonstruksjon, vegger og tak i tilbygget

Terrasse Uteareal tilknyttet tilbygg

Terrasse ved inngangsparti eller tilknyttet tilbygget (antatt)

Vinduer Fasadevindu

Antall: 5

Fem fasadevinduer i tilbygget, inkludert 2 i stue og 3 i soverom

Dører Ytterdører og innerdører

Antall: 13

Totalt 13 dører i tilbygget, inkludert ytterdør, innerdører til rom og boder

VVS Sanitær og varme

VVS-installasjoner for bad, vaskerom og varme i tilbygget

Tak Saltak

Nytt saltak på tilbygget, tilpasset eksisterende takform

Trapper Innvendig trapp

Antall: 1

En innvendig trapp mellom første og andre etasje i tilbygget

Fasade Kledning og overflater

Fasadeendring med nytt tilbygg på sørfasade, tilpasset eksisterende bygg

Betong Støpt dekke og fundament

Betongarbeid for fundament og dekker i tilbygget

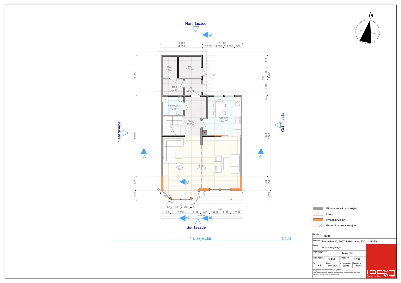
Plantegning

Tilbygg 120.5 m²

Etasje 1 120.5 m²

Rom Areal Vinduer Dører
Stue 101 47.1 m² 2 2
Kjøkken 102 15.0 m² 1 1
Gang 103 11.2 m² 0 3
Vask/WC 104 4.3 m² 0 2
V.F. 105 2.9 m² 0 1
Bod 106 3.6 m² 0 1
Bod 107 3.7 m² 0 1
Bod 108 5.3 m² 0 1

Enebolig 54.2 m²

Etasje 2 54.2 m²

Rom Areal Vinduer Dører
Soverom 201 11.1 m² 1 1
Soverom 202 15.7 m² 1 1
Soverom 203 11.7 m² 1 1
Bad 204 4.4 m² 0 1
Gang 205 4.5 m² 0 2

Hendelser

13.04.2026 Bergveien 25, søknad om ferdigattest
27.10.2025 Bergveien 25, tillatelse til oppføring av tilbygg
03.10.2025 Bergveien 25 Supplering av søknad 245/1264
25.09.2025 Bergveien 25, vi trenger flere opplysninger for å behandle søknaden din
15.09.2025 Bergveien 25 Søknad om tillatelse i ett trinn 245/1264