Extension UnderBehandling Enebolig

Tilbygg og bruksendring med våtrom på Bjørgavegen 54, Aurland

📍 Bjørgavegen 54 , 5745 AURLAND

Nøkkelinfo

Sakstype
Tilbygg
Bygningstype
Enebolig
Bruksareal
125 m²
Boenheter
1
Kommune
Aurland
Fylke
Vestland
Gnr / Bnr
5 / 29
Saksnummer
2026/387
Fase
Under behandling

Om byggesaken

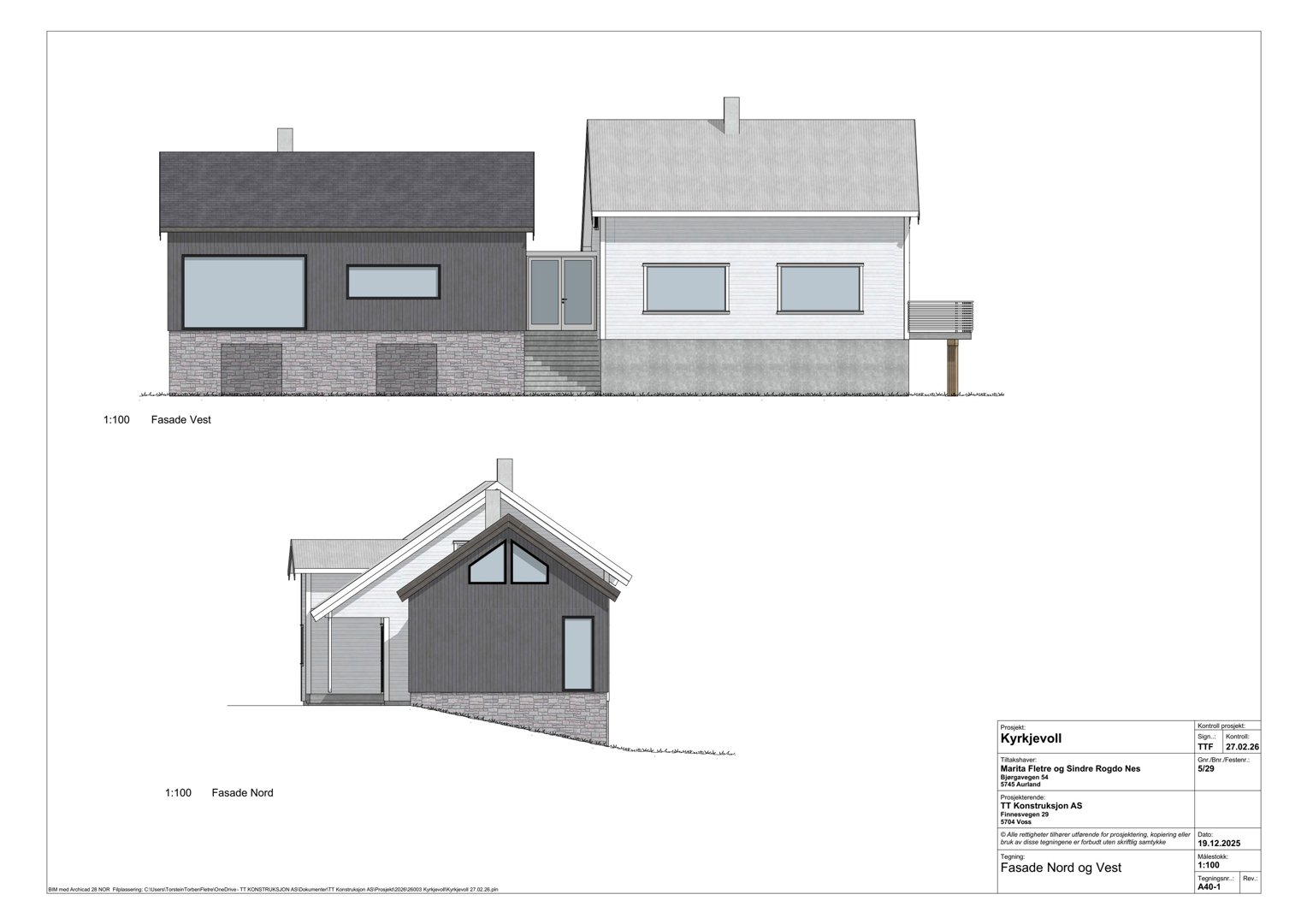
Ny tilbygg på ca. 68,7 m² knyttes til eksisterende enebolig fra 1910 på Bjørgavegen 54. Det tidligere landbruksbygget og silo er revet, og arealet ombygges til boligformål med oppgradering til TEK17-standard. Tiltaket inkluderer etterisolering av yttervegger, tak og gulv, utskifting av vinduer, rehabilitering av grunnmur og oppføring av altan og takoverbygg. Innvendig etableres våtrom med membranarbeid. Bygget får to etasjer med soverom, bad, hems og trappegang. Prosjektet omfatter også bruksendring av driftsbygning til bolig.

Produkter og materialer

VVS Sanitærinstallasjoner

Våtrom med membran gulv og vegg, installasjon av vannklosett

Sanitærinstallasjoner i bad og vaskerom

Tak Takoverbygg

Antall: 1

Takoverbygg som del av tilbygg

Takoverbygg over inngang/altan

Tømrer Trekonstruksjoner

🧱 Tre

Montering av trekonstruksjoner for tilbygg og oppgradering

Tømrerarbeid for tilbygg og rehabilitering

Fasade Ytterdører

Antall: 5

Dører i soverom, hems og trappegang iht. plantegninger

Ytter- og innerdører for nye og eksisterende rom

Isolasjon Etterisolering

Etterisolering av yttervegger, tak og gulv for å oppnå TEK17-standard

Isolasjonsmaterialer for energieffektiv oppgradering

Terrasse Altan

Antall: 1

Oppføring av altan som del av tilbygg

Utendørs altan tilknyttet bolig

Fasade Vinduer

Antall: 3

Utskifting av vinduer i soverom, antatt energieffektive i henhold til TEK17

Nye fasadevinduer for bedre isolasjon og energieffektivitet

Grunnarbeid Fundament og grunnmur

Rehabilitering av eksisterende grunnmur og ny fundamentplate for tilbygg

Grunnarbeid for stabilitet og fundamentering

Gulv Membran og fliser

Membranarbeid i våtrom for vanntetting

Vanntett membran i bad og vaskerom

Plantegning

Kyrkjevoll 56.7 m²

Etasje 2 56.7 m²

Rom Areal Vinduer Dører
Hems 201 24.7 m² 0 1
Hems 202 8.0 m² 0 1
Soverom 301 12.3 m² 1 1
Soverom 302 13.4 m² 1 1
Soverom 303 12.8 m² 1 1
Bad 304 8.0 m² 0 1
trappegang 305 16.1 m² 0 2

Hendelser

13.04.2026 Vi ber om tilleggsinformasjon - Tilbygg mm. - Gbnr. 5/29 - Bjørgavegen 54
26.03.2026 Ett-trinns søknad - Endring av bruk - våtrom i bygg -endring av bygg - utvendig tilbygg større enn 50 m² - GBNR 5/29 - Bjørgavegen 54