Facade
Fasadetegning som viser bygningens utseende fra tre sider: vest, øst og sør.
1 / 4
Extension
Ferdigattest
Enebolig
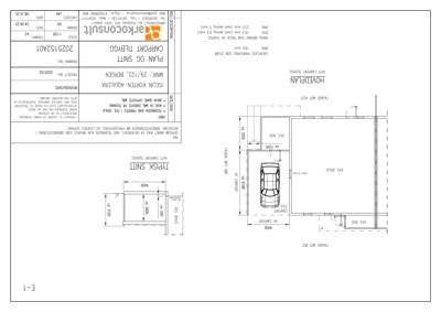
Tilbygg med carport på enebolig, Bjørgelien 33
📍 Bjørgelien 31 , 5141 FYLLINGSDALEN
Nøkkelinfo
- Sakstype
- Tilbygg
- Bygningstype
- Enebolig
- Bruksareal
- 23 m²
- Boenheter
- 1
- Kommune
- Bergen
- Fylke
- Vestland
- Gnr / Bnr
- 29 / 122
- Saksnummer
- BYGG-2025/17444
- Fase
- Ferdigattest
Om byggesaken
Ny tilbygg i form av carport på enebolig på Bjørgelien 33, Bergen. Carporten er frittstående med saltak og bygget i tre, med et bruttoareal på 23 m² og et bebygd areal på 24,4 m². Bygget har tre vinduer og en dør, og er plassert inntil husveggen med god avstand til nabogrense. Carporten forbedrer parkeringsløsningen på tomten og øker boligens totale bruksareal med 5 m². Materialvalg og konstruksjon følger gjeldende tekniske krav, og tiltaket er ferdigstilt og godkjent med ferdigattest.
Produkter og materialer
Tømrer
Bygging av carport
🧱 Tre
Tømrerarbeid for oppføring av carport i tre
Maling
Utendørs maling
Maling eller behandling av treverk utvendig på carport
Fasade
Trevegger
🧱 Tre
Trevegger i carportens fasader mot sør, øst og vest
Yttervegger i tre for carportens konstruksjon
Tak
Saltak
🧱 Tre og taktekking
Saltak på carporten
Saltakskonstruksjon med egnet taktekking for carport
Grunnarbeid
Fundamentering
Fundamentering og grunnarbeid for carportens konstruksjon
Vinduer
Fasadevindu
Antall: 5
3 vinduer på sørfasade, 1 på østfasade, 1 på vestfasade
Fasadevinduer i carportens vegger
Dører
Ytterdør
Antall: 1
1 dør på sørfasade
Ytterdør til carporten
Fasader
Carport
Sør
- Materiale
- Tre
- Taktype
- Saltak
- Vinduer
- 3
- Dører
- 1
- Synlige etasjer
- 1
Øst
- Materiale
- Tre
- Taktype
- Saltak
- Vinduer
- 1
- Dører
- 0
- Synlige etasjer
- 1
Vest
- Materiale
- Tre
- Taktype
- Saltak
- Vinduer
- 1
- Dører
- 0
- Synlige etasjer
- 1
Hendelser
19.01.2026
Ferdigattest- 29/122/0/0 Bjørgelien 33, tilbygg bolig
19.01.2026
Bjørgelien 33 Søknad om ferdigattest 29/122
23.12.2025
Gebyr
23.12.2025
Ubw ordre 20684850 Tilbygg bolig carport.
14.11.2025
Tillatelse- 29/122/0/0 Bjørgelien 33, tilbygg bolig
11.11.2025
Bjørgelien 33 Søknad om tillatelse til tiltak uten ansvarsrett 29/122
—