Extension Soeknad Enebolig

Tilbygg med dispensasjon ved Bjørkelia 2, Drammen

📍 Bjørkelia 2 , 1900 FETSUND

Nøkkelinfo

Sakstype
Tilbygg
Bygningstype
Enebolig
Bruksareal
16 m²
Boenheter
1
Kommune
Drammen
Fylke
Buskerud
Gnr / Bnr
13 / 54
Saksnummer
25/23372
Fase
Søknad

Om byggesaken

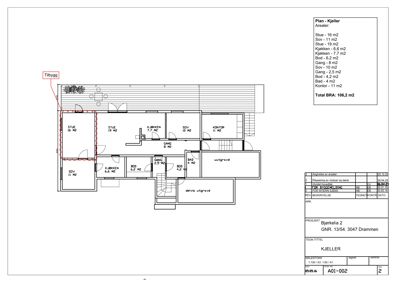
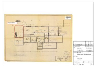
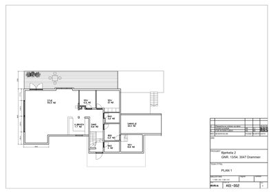
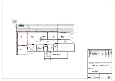
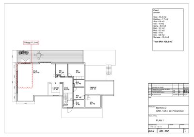
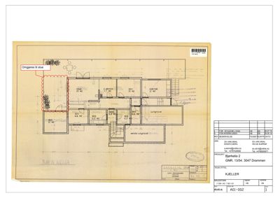
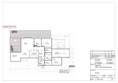
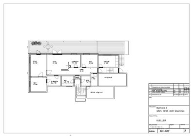
Ny to-etasjes tilbygg på 16 m² til enebolig på Bjørkelia 2 i Drammen, inkludert utvidelse av sekundær boenhet til totalt 106 m² BRA. Tilbygget er arkitektonisk tilpasset eksisterende bolig med saltak og trefasade, og omfatter blant annet nye vinduer og dører. Prosjektet inkluderer riving av del av veranda og oppføring av tilbygg i kjeller og første etasje, med funksjonell planløsning som sikrer gode bokvaliteter og dagslys i rom for varig opphold. Tiltaket ligger innenfor eksisterende boligområde, men krever dispensasjon fra kommuneplanens areal- og byggegrensebestemmelser. Det er også etablert biloppstillingsplass med tilhørende forstøtningsmur som søkes separat. Overvannshåndtering er dokumentert i henhold til blågrønn faktor krav.

Arbeidsomfang

- Oppføring av tilbygg til eksisterende bolig i 1 etasje (vestvendt påbygg). - Utvidelse av hovedtaket og etasjeplan i 1. etasje for å inkludere nytt tilbygg. - Innsetting av dobbel balkongdør på nordfasaden. - Innsetting av nye vinduer mot vest i tilknytning til påbygget. - Utvidelse av kjeller tilsvarende 1 etasje. - Oppføring av soverom i den utvidede kjelleren (ca 16 m²).

Produkter og materialer

Vinduer Fasadevindu

Antall: 7

Nye vinduer i tilbygg og eksisterende fasade, plassering i kjeller og 1. etasje

Vinduer for dagslys i nye og eksisterende rom, inkludert stue, kjøkken og soverom

Ventilasjon Ventilasjonssystem

Ventilasjon i tilbygg og eksisterende bolig

Ventilasjon for å sikre god luftkvalitet i nye og eksisterende rom

Bad Bad og våtrom

Antall: 2

Bad i tilbygg og kjeller med nødvendige våtromsinstallasjoner

Oppgradering og etablering av bad i sekundær boenhet

Betong Fundament og kjellerutvidelse

Utvidelse av kjeller med nytt fundament for tilbygg

Betongarbeid for kjellerutvidelse i tilbygg

Tak Saltak

🧱 Takstein eller tilsvarende

Saltak på tilbygg som matcher eksisterende tak

Nytt saltak på tilbygget

VVS Overvannshåndtering

Håndtering av overvann i henhold til blågrønn faktor NS3845, med infiltrasjon og permeable dekker

System for overvannshåndtering i tråd med kommunale krav

Gulv Innvendige gulv

Gulv i tilbygg og kjeller, tilpasset boligstandard

Innvendige gulv i tilbygg og kjeller

Fasade Trefasade med saltak

🧱 Tre

Fasader i tre med saltak, tilpasset eksisterende bolig

Fasadeutvidelse med trepanel og saltak som matcher eksisterende bygg

Grunnarbeid Biloppstillingsplass og forstøtningsmur

🧱 Betong/støttemur

Antall: 1

Biloppstillingsplass med forstøtningsmur, plassert minimum 4 meter fra eiendomsgrense

Grunnarbeid for biloppstillingsplass og tilhørende mur som søkes separat

Dører Ytterdør og balkongdør

Antall: 3

Dobbel balkongdør på nordfasade, ytterdører i tilbygg

Dører for adkomst og utgang til balkong og uteområder

Elektro Elektrisk installasjon

Elektriske installasjoner i tilbygg og eksisterende bolig

Oppgradering og utvidelse av elektrisk anlegg i forbindelse med tilbygg

Tømrer Tilbygg konstruksjon

🧱 Tre

Konstruksjon av tilbygg i to etasjer med treverk

Tømrerarbeid for oppføring av tilbygg med tilpasset arkitektur

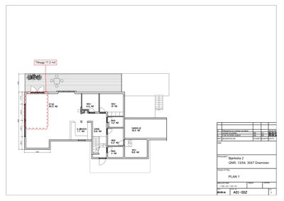
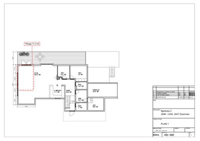
Plantegning

Enebolig 236.3 m²

Etasje 1 120.5 m²

Rom Areal Vinduer Dører
Hagestue 101 11.0 m² 1 1
Stue 102 19.0 m² 1 1
Spise 103 8.3 m² 0 1
Kjøkken 104 7.7 m² 1 1
Gang 105 8.8 m² 0 3
Sov 106 6.6 m² 1 1
Sov 107 10.0 m² 1 1
Bad 108 6.6 m² 0 1
Bad 109 6.8 m² 0 1
Bod 110 6.2 m² 1 1
Sov 111 8.8 m² 1 1
Garasje 112 18.5 m² 1 1

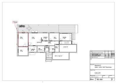
Etasje 0 115.8 m²

Rom Areal Vinduer Dører
Stue 001 19.0 m² 1 2
Sov 002 6.6 m² 0 1
Bod 003 11.0 m² 0 1
Kjøkken 004 7.7 m² 1 1
Sov 005 10.0 m² 1 1
Bod 006 6.2 m² 0 1
Bod 007 6.2 m² 0 1
Gang 008 8.8 m² 0 2
Bad 009 6.6 m² 0 1
Vaskerom 010 6.2 m² 0 1
Kontor 011 11.0 m² 1 1
Teknisk 012 0.0 m² 0 0

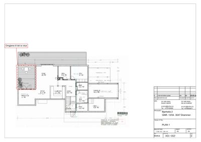
Fasader

Enebolig

Vest
Materiale
Tre
Taktype
Saltak
Vinduer
2
Dører
0
Balkonger
1
Synlige etasjer
2
Nord
Materiale
Tre
Taktype
Saltak
Vinduer
4
Dører
1
Balkonger
1
Synlige etasjer
2
Øst
Materiale
Tre
Taktype
Saltak
Vinduer
1
Dører
0
Synlige etasjer
2
Sør
Materiale
Tre
Taktype
Flatt tak
Vinduer
3
Dører
1
Synlige etasjer
1

Hendelser

08.04.2026 Bjørkelia 2, Ettersendelse av informasjon - en styrket begrunnelse for søknaden søknad
18.03.2026 Bjørkelia 2, vi vurderer å avslå søknaden din søknad
18.02.2026 Bjørkelia 2, Ettersendelse av informasjon
29.01.2026 Bjørkelia 2 - Ettersendelse av informasjon
08.01.2026 Bjørkelia 2, vi vurderer å avslå søknaden din søknad
03.12.2025 Bjørkelia 2 Supplering av søknad 13/54 søknad
02.12.2025 Bjørkelia 2, uttalelse til søknad om dispensasjon fra byggegrense mot vassdrag dispensasjon
13.11.2025 Bjørkelia 2, vi trenger flere opplysninger for å behandle søknaden din søknad
13.11.2025 Bjørkelia 2, anmodning om uttalelse fra Statsforvalteren og fylkeskommunen
10.11.2025 Bjørkelia 2, Søknad om dispensasjon dispensasjon
01.10.2025 Bjørkelia 2 Supplering av søknad 13/54 søknad
18.08.2025 Bjørkelia 2, vi trenger flere opplysninger for å behandle søknaden din søknad
18.06.2025 Bjørkelia 2 Søknad om tillatelse til tiltak uten ansvarsrett 13/54 rammetillatelse