Extension Ferdigattest Enebolig

Tilbygg og bruksendring på enebolig, Bondistranda 45, Asker

📍 Bondistranda 45 , 1386 ASKER

Nøkkelinfo

Sakstype
Tilbygg
Bygningstype
Enebolig
Bruksareal
240 m²
Boenheter
1
Kommune
Asker
Fylke
Akershus
Gnr / Bnr
51 / 60
Saksnummer
20/3471
Fase
Ferdigattest

Om byggesaken

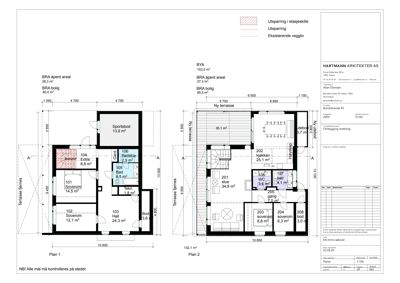
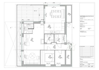
Ny veranda med utvidet saltak og tilbygg på ca. 30 m² BYA til en eksisterende enebolig. Bruksendring av kjeller fra tilleggsdel/garasje til varig oppholdsrom med to nye soverom med store vinduer og ny inngang. Innvendig ombygging inkluderer endring av bærende konstruksjoner og oppgradering av fasade med trepanel og saltak. Terrenget senkes ca. 2 meter mot sørvest for å tilpasse uteareal og sikre lys og rømningsveier. Garasje på 36 m² er regulert på tomten. Totalt BRA bolig etter tiltak er ca. 240 m² fordelt på to etasjer og kjeller.

Produkter og materialer

Dører Ytterdører

Antall: 3

Ny inngangsdør i kjeller, dør til veranda, øvrige ytterdører iht. tegninger

Ytterdører for ny inngang og veranda

Gulv Gulvbelegg og fliser

Gulvbelegg/fliser i bad og øvrige rom i kjeller og tilbygg

Overflatebehandling av gulv i nye og ombygde rom

Fasade Trepanel kledning

🧱 Tre

Oppgradering av fasade med trepanel, utvidelse av saltak over veranda

Trepanel kledning for fasadeoppgradering og tilbygg med saltak

Tømrer Trekonstruksjoner for tilbygg og veranda

🧱 Tre

Montering av trekonstruksjoner for tilbygg, veranda og takutvidelse

Tømrerarbeid for tilbygg og veranda

Elektro Komplett nytt elektrisk anlegg

Komplett nytt elektrisk anlegg i hele boligen

Elektroinstallasjoner for bolig

VVS Nytt rør-i-rør anlegg og avløp

Nytt komplett VVS-anlegg for bad i kjeller og øvrige våtrom

VVS-installasjoner for bad og våtrom

Bad Innredning og sanitærutstyr

Bad i kjeller og 2. etasje med sanitærutstyr og innredning

Bad og våtromsutstyr

Grunnarbeid Terrengbearbeiding og drenering

Terreng senkes ca. 2 meter mot sørvest, terrengtilpasning og drenering iht. krav

Terrengarbeid for uteareal og drenering rundt tilbygg

Vinduer Store soveromsvinduer og kjellervinduer

Antall: 4

To store vinduer i nye soverom i kjeller, samt vinduer i 2. etasje som vist på tegninger

Nye vinduer for soverom i kjeller og øvrige vinduer i tilbygg og fasadeendring

Isolasjon Isolasjon for varig oppholdsrom i kjeller

Isolasjon av gulv, vegger og tak i kjeller for varig opphold

Isolasjon iht. TEK for bruksendring av kjeller

Tak Saltak

🧱 Taktekking ikke spesifisert

Utvidelse av saltak over ny veranda mot nordvest

Saltak for tilbygg og veranda

Terrasse Ny veranda med takoverbygg

🧱 Tre

Antall: 1

Ny veranda med utvidet tak over mot nordvest

Terrasse/veranda med tak

Garasjeport Garasje på tomt

Antall: 1

Regulert garasje på 36 m² på vestsiden av tomten

Garasje iht. reguleringsplan

Betong Kjellergulv og fundamenter

Betongarbeider i kjeller for ombygging til varig opphold, fundamentering av tilbygg

Betongarbeider for kjeller og tilbygg

Plantegning

Enebolig 175.5 m²

Etasje 1 80.0 m²

Rom Areal Vinduer Dører
Soverom 101 14.5 m² 1 1
Soverom 102 12.1 m² 1 1
Hall 103 24.3 m² 0 2
Entre 104 8.8 m² 0 1
Bad 105 6.5 m² 0 1
Badstue 106 2.9 m² 0 1
Teknisk rom Tekn. 1.8 m² 0 1
Bod Bod 3.6 m² 1 1
Sportsbod Sportsbod 13.9 m² 1 1

Etasje 2 95.5 m²

Rom Areal Vinduer Dører
Stue 201 34.8 m² 1 1
Kjøkken 202 25.1 m² 1 1
Soverom 203 8.8 m² 1 1
Soverom 204 6.3 m² 1 1
Gang 205 7.0 m² 0 2
WC 106 3.6 m² 0 1
Bad 107 4.1 m² 0 1
Bod 208 3.0 m² 1 1
Utebod Utebod 3.7 m² 1 1

Fasader

Enebolig

Nord
Materiale
Tre
Taktype
Saltak
Vinduer
3
Dører
1
Balkonger
1
Synlige etasjer
2
Sør
Materiale
Tre
Taktype
Saltak
Vinduer
4
Dører
0
Synlige etasjer
2
Vest
Materiale
Tre
Taktype
Flatt tak
Vinduer
9
Dører
1
Balkonger
1
Synlige etasjer
2
Øst
Materiale
Tre
Taktype
Flatt tak
Vinduer
2
Dører
1
Synlige etasjer
1

Hendelser

13.04.2026 51/60 Bondistranda 45 (tidl. Røykenveien 119) - Feil gateadresse i ferdigattest
12.04.2026 51/60 Røykenveien 119 - Ferdigattest
27.03.2026 51/60 Røykenveien 119 - Søknad om ferdigattest
25.03.2026 51/60 Tillatelse - Bruksendring fra tilleggsdel til hoveddel, fasedeendring, tilbygg og innvendig ombygging - Manglende ferdigattest eller midlertidig brukstillatelse
11.05.2020 51/60 Tillatelse - Bruksendring fra tilleggsdel til hoveddel, fasedeendring, tilbygg og innvendig ombygging
06.05.2020 51/60 Søknad om bruksendring fra tilleggsdel til hoveddel, fasedeendring, tilbygg og innvendig ombygging
06.05.2020 51/60 Kvitteringsbrev - Bruksendring fra tilleggsdel til hoveddel, fasedeendring, tilbygg og innvendig ombygging