Extension UnderBehandling Enebolig

Tilbygg, veranda og pipe på enebolig i Bontveitvegen 18A

📍 Bontveitvegen 18A , 5229 KALANDSEIDET

Nøkkelinfo

Sakstype
Tilbygg
Bygningstype
Enebolig
Bruksareal
24 m²
Boenheter
1
Kommune
Bergen
Fylke
Vestland
Gnr / Bnr
77 / 126
Saksnummer
BYGG-2026/12247
Fase
Under behandling

Om byggesaken

Ny påbygg på 23,8 m² med tilhørende veranda på en eksisterende enebolig i Bontveitvegen 18A. Påbygget plasseres på sørvestfasaden over eksisterende veranda, med samme materialbruk, fargevalg (brun-svart) og saltak som eksisterende bolig for å sikre estetisk harmoni. Det installeres også en ny pipe i påbygget. Verandaen bygges foran påbygget, og det settes opp en lamellvegg på sørøstfasaden for å skjule avfallsbeholdere. Bygget har 2 etasjer med flere rom inkludert stue, kjøkken, soverom og bad. Tiltaket er tilpasset terrenget med minimale inngrep og oppfyller gjeldende reguleringsplan og tekniske forskrifter.

Produkter og materialer

Pipe Innstallasjon av pipe

Antall: 1

Ny pipe installeres i påbygget

Pipe for ildsted i påbygg

Vinduer Fasadevindu med trekarmer

🧱 Tre, malt brun-svart

Antall: 5

Vinduer i påbygg og veranda, malt i brun-svart farge

Nye vinduer til påbygg og veranda

Elektro Elektrisk installasjon

Elektrisk anlegg i påbygg og veranda

Elektrisk installasjon for belysning og strøm

Grunnarbeid Terrengtilpasning

Mindre terrenginngrep for tilpasning av uteareal

Grunnarbeid for tilpasning av uteareal rundt påbygg

Isolasjon Isolasjon for vegger og tak

Isolasjon iht. TEK17 for påbygg

Isolasjon for varme og lyd i påbygg

VVS Vann og avløp til bad i påbygg

VVS installasjoner for bad i påbygg

VVS arbeid for bad i påbygg

Tømrer Påbygg og veranda konstruksjon

🧱 Treverk

Konstruksjon av påbygg og veranda i treverk

Tømrerarbeid for oppføring av påbygg og veranda

Tak Saltak med teglstein

🧱 Teglstein

Saltak med teglstein som eksisterende bolig

Taktekking for påbygg med saltak og teglstein

Rekkverk Verandarekkverk

🧱 Tre

Rekkverk på veranda i treverk

Sikkerhetsrekkverk på veranda

Fasade Trepanel kledning

🧱 Tre, malt i brun-svart farge

Fasader og vinduskarmer males i brun-svart farge for å matche eksisterende bolig

Utvendig kledning og maling for påbygg og veranda

Dører Ytterdører i tre

🧱 Tre, malt brun-svart

Antall: 6

Dører i påbygg og veranda, malt i brun-svart farge

Nye ytterdører til påbygg og veranda

Mur Grunnmur for påbygg

Grunnmur til påbygg

Fundamentering og murarbeid for påbygg

Gulv Innvendig gulvbelegg

Gulv i påbygg, type ikke spesifisert

Innvendige gulv i påbygg

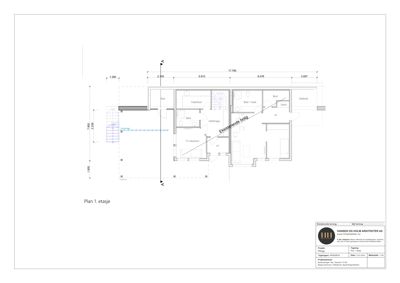
Plantegning

Enebolig 68.0 m²

Etasje 2 68.0 m²

Rom Areal Vinduer Dører
Veranda Veranda 31.0 m² 0 1
Stue Stue 23.8 m² 1 1
Kjøkken Kjøkken 0.0 m² 1 1
Sov-02 Sov-02 0.0 m² 1 1
Sov-03 Sov-03 0.0 m² 1 1
Bad Bad 0.0 m² 0 1

Etasje 1 0.0 m²

Rom Areal Vinduer Dører
Veranda 101 0.0 m² 0 1
Bod 102 0.0 m² 0 1
Vask/bod 103 0.0 m² 0 1
Bad 104 0.0 m² 0 1
Hall/trapp 105 0.0 m² 0 0
Tv-stue/sov 106 0.0 m² 0 1
Bad / Vask 107 0.0 m² 0 1
Bod 108 0.0 m² 0 1
Gard 109 0.0 m² 0 1
Vf 110 0.0 m² 0 1
Utebold 111 0.0 m² 0 1

Fasader

Eksisterende bolig

Sør-Øst
Materiale
Tre
Taktype
Saltak
Takmat.
Tegl
Vinduer
6
Dører
1
Balkonger
1
Synlige etasjer
2
Sør-Vest
Materiale
Tre
Taktype
Saltak
Vinduer
2
Dører
1
Balkonger
1
Synlige etasjer
2
Nord-Vest
Materiale
Tre
Taktype
Saltak
Takmat.
Tegl
Vinduer
3
Dører
1
Synlige etasjer
1
Nord-Øst
Materiale
Tre
Taktype
Saltak
Vinduer
1
Dører
1
Balkonger
1
Synlige etasjer
2

Hendelser

07.04.2026 Bekreftelse på mottatt søknad
31.03.2026 Bontveitvegen 18A Søknad om tillatelse i ett trinn 77/126