Facade
Fasadetegning som viser fronten på en eksisterende bygning med en planlagt tilbygg på 2. etasje.
1 / 12
Extension
Soeknad
Enebolig
Tilbygg på enebolig i Bøvegen 36, Torvastad
📍 Bøvegen 36 , 4260 TORVASTAD
Nøkkelinfo
- Sakstype
- Tilbygg
- Bygningstype
- Enebolig
- Bruksareal
- 44 m²
- Boenheter
- 1
- Kommune
- Karmøy
- Fylke
- Rogaland
- Gnr / Bnr
- 146 / 50
- Saksnummer
- 2026/1373
- Fase
- Søknad
Om byggesaken
Ny to-etasjes tilbygg på 44,1 m² til eksisterende enebolig i Bøvegen 36, Torvastad. Tilbygget har saltak og er utført i tre, med integrert arkitektur tilpasset eksisterende bygg. Det inneholder flere rom i 2. etasje, inkludert tre soverom, garderobe, gang og bad. Tilbygget har totalt 6 vinduer, 1 dør og 1 balkong, samt pipe. Bebygd areal for tilbygget er 22 m², og det er også planlagt en altan på 42-43 m² i tilknytning til tilbygget. Tilbygget inkluderer gang, bad med toalett i begge etasjer, og er tilpasset eksisterende arkitektur med tilpasset takhøyde.
Produkter og materialer
Tak
Saltak
Antall: 1
Saltak på tilbygget, tilpasset eksisterende takhøyde
Taktekking for tilbyggets saltak
Grunnarbeid
Fundamentering og grunnmur
Grunnarbeid for nytt tilbygg
Vinduer
Fasadevindu
Antall: 6
Fasadevindu i tilbygget
Bad
Bad med toalett og dusj
Antall: 2
Bad med toalett i begge etasjer i tilbygget
VVS
Sanitærinstallasjoner
VVS-installasjoner for bad i tilbygget
Isolasjon
Isolasjon for vegger og tak
Isolasjon iht. TEK17 for tilbyggets vegger og tak
Elektro
Elektrisk anlegg
Elektrisk installasjon i tilbygget
Tømrer
Bygging av tilbygg
Tømrerarbeid for oppføring av tilbygg
Balkong
Balkong med rekkverk
Antall: 1
Balkong i 2. etasje på tilbygget
Dører
Ytterdør
Antall: 1
Ytterdør til tilbygget
Fasade
Tre kledning
🧱 Tre
Tilbygg i tre med saltak, tilpasset eksisterende bygg
Trepanel til fasade på tilbygget
Gulv
Innvendig gulv
Gulv i tilbygget, tilpasset eksisterende nivåer
Plantegning
Enebolig 0.0 m²
Etasje 1 0.0 m²
| Rom | Areal | Vinduer | Dører |
|---|---|---|---|
| Stue 0 | 0.0 m² | 0 | 0 |
| Kjøkken 0 | 0.0 m² | 0 | 0 |
| Gang 0 | 0.0 m² | 0 | 0 |
| Entre/Gang 0 | 0.0 m² | 0 | 0 |
| Bad & WC 0 | 0.0 m² | 0 | 0 |
Tilbygg 44.1 m²
Etasje 2 44.1 m²
| Rom | Areal | Vinduer | Dører |
|---|---|---|---|
| Sove-rom 201 | 0.0 m² | 0 | 1 |
| Sove-rom 202 | 0.0 m² | 0 | 1 |
| Sove-rom 203 | 0.0 m² | 0 | 1 |
| Garderobe & Oppbevaring 204 | 0.0 m² | 0 | 1 |
| Gang 205 | 0.0 m² | 0 | 2 |
| Eksisterende Bad 206 | 0.0 m² | 0 | 1 |
| Gang 207 | 0.0 m² | 0 | 1 |
| BAD 208 | 0.0 m² | 0 | 1 |
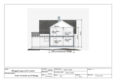
Fasader
Tilbygg
Ukjent
- Taktype
- Saltak
- Vinduer
- 6
- Dører
- 1
- Balkonger
- 1
- Synlige etasjer
- 2
Nord
- Taktype
- Saltak
- Vinduer
- 4
- Dører
- 1
- Balkonger
- 1
- Synlige etasjer
- 2
Øst
- Materiale
- Tre
- Taktype
- Saltak
- Vinduer
- 6
- Dører
- 1
- Balkonger
- 1
- Synlige etasjer
- 2
Vest
- Taktype
- Saltak
- Vinduer
- 4
- Dører
- 1
- Balkonger
- 1
- Synlige etasjer
- 2
Hendelser
14.04.2026
Gnr. 146, bnr. 50 - Oppdatert BYA og BRA
07.04.2026
Gnr. 146, bnr. 50 - Kvittering for nabovarsel
07.04.2026
Gnr. 146, bnr. 50 - Kvittering for nabovarsel
07.04.2026
Gnr. 146, bnr. 50 - Kvittering for nabovarsel
25.03.2026
Gnr. 146, bnr. 50 - Oppdatert bebygd areal
23.02.2026
Gnr. 146, bnr. 50 - Tilbygg - Bøvegen 36