Extension UnderBehandling Enebolig

Tilbygg og renovering av enebolig i Bøveien 629

📍 Bøveien 629 , 8470 BØ I VESTERÅLEN

Nøkkelinfo

Sakstype
Tilbygg
Bygningstype
Enebolig
Bruksareal
85 m²
Boenheter
1
Kommune
Fylke
Nordland - Nordlánnda
Gnr / Bnr
27 / 51
Saksnummer
2026/18
Fase
Under behandling

Om byggesaken

Ny utvidelse av eksisterende tilbygg på enebolig i Bøveien 629 med en økning i bebygd areal på ca. 3 m², totalt ca. 13,9 m² BYA for tilbygget. Tilbygget plasseres hovedsakelig på nordøstlig side over en gammel steintrapp. Prosjektet inkluderer også omfattende renovering av yttervegger med isolasjon, diffusjonsåpen membran og stående falset bordkledning. Boligen er to-etasjes med saltak tekket med teglstein, og fasader i tre. Det er ett eksisterende pipeanlegg. Prosjektet omfatter også riving av eksisterende tilbygg og oppføring av nytt, samt oppgradering av vinduer med spesifikke U-verdier. Det er én trapp i boligen, og det totale arealet er ca. 85,4 m². Det søkes også dispensasjon for byggegrense mot fylkesvei og tillatelse fra kulturminnemyndigheter.

Produkter og materialer

Membran Diffusjonsåpen veggmembran

🧱 Tyvek

Tyvek diffusjonsåpen membran for vegg, montert med klemlekter

Membran for veggkonstruksjon

Isolasjon Veggisolasjon

🧱 Glaava 34 Proff matte

Isolasjon i horisontale og vertikale lekter 48x48 mm cc 600

Isolasjon i yttervegger ved renovering

Grunnarbeid Fundamentering for tilbygg

Fundamentering for nytt tilbygg over gammel steintrapp

Grunnarbeid for tilbygg

Fasade Stående falset bordkledning

🧱 ferdig grunnet trepanel

1 mm tykkelse, montert på lekter med Tyvek diffusjonsåpen membran

Ny ytterkledning på renoverte yttervegger

Pipe Eksisterende pipe

Antall: 1

Eksisterende pipe i bolig beholdes

Pipe for oppvarming/ildsted

Vinduer Ulike fasadevinduer

Antall: 14

Flere vinduer med U-verdier rundt 1,0-1,09, inkludert FK og TS typer i ulike størrelser (f.eks. 1500x1500 FK, 1200x1200 TS)

Nye og oppgraderte vinduer i tilbygget og eksisterende bolig

Tak Saltak med teglstein

🧱 Teglstein

Eksisterende saltak tekket med teglstein, opprettholdes

Taktekking på bolig og tilbygget

Tømrer Riving og oppføring av tilbygg

Riving av eksisterende tilbygg og oppføring av nytt tilbygg med ca. 13,9 m² BYA

Tømrerarbeid for tilbygg og renovering

Dører Ytterdører

Antall: 4

Dører i tilbygget og bolig, inkludert 1 ytterdør på østfasade

Nye ytterdører i bolig og tilbygg

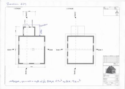
Plantegning

Enebolig 85.4 m²

Etasje 1 42.7 m²

Rom Areal Vinduer Dører
Stue 101 42.7 m² 4 1
GANG 26 4.4 m² 0 1
BAD 24 4.9 m² 0 1
Stue 42.4 m² 0 1
Stue 35.0 m² 2 1
Gang 4.6 m² 0 1

Etasje 2 42.7 m²

Rom Areal Vinduer Dører
Soverom 201 42.7 m² 4 1
Stue 57.6 m² 0 1
Stue 35.0 m² 2 1
Gang 4.6 m² 0 1

Fasader

Enebolig

Vest
Materiale
Tre
Taktype
Saltak
Takmat.
Tegl
Vinduer
4
Dører
0
Balkonger
1
Synlige etasjer
2
Nord
Materiale
Tre
Taktype
Saltak
Takmat.
Tegl
Vinduer
3
Dører
0
Balkonger
1
Synlige etasjer
2
Sør
Materiale
Tre
Taktype
Saltak
Takmat.
Tegl
Vinduer
2
Dører
0
Synlige etasjer
1
Øst
Materiale
Tre
Taktype
Saltak
Takmat.
Teglstein
Vinduer
2
Dører
1
Synlige etasjer
1

Hendelser

10.04.2026 Svar på nabovarsel - gnr/bnr 27/51 i Bø kommune
09.04.2026 Ber om kulturminnefaglig vurdering - tilbygg til eksisterende bolig - gnr/bnr 27/51
09.04.2026 Kvittering nabovarsel - Byggesøknad Bøveien 629
08.04.2026 Byggesøknad renovere/bygge nytt utbygg, gnr/bnr 27/51, Bøveien 629
27.03.2026 Informasjon vedrørende tilbygg - gnr/bnr 27/51
05.01.2026 Melding om frittliggende bygning eller tilbygg som er unntatt søknadsplikt gnr/bnr 27/51