Extension UnderBehandling Enebolig

Riving, tilbygg og sammenbygging av garasje på Breiviklia 45, Nesbru

📍 Breiviklia 45 , 1394 NESBRU

Nøkkelinfo

Sakstype
Tilbygg
Bygningstype
Enebolig
Bruksareal
192 m²
Boenheter
1
Kommune
Asker
Fylke
Akershus
Gnr / Bnr
39 / 643
Saksnummer
20/6331
Fase
Under behandling

Om byggesaken

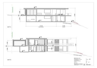
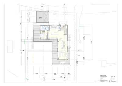
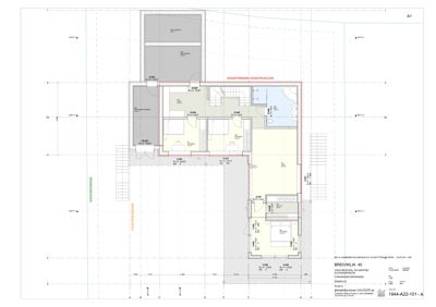
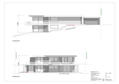
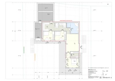
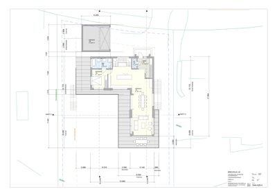
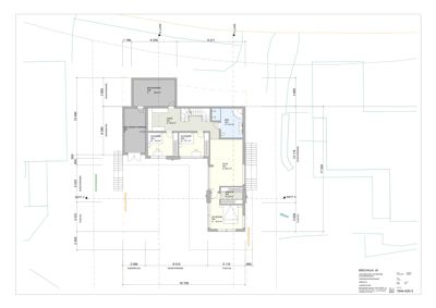
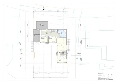
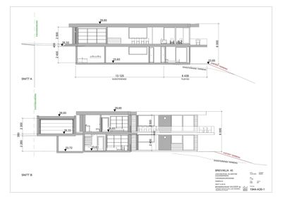
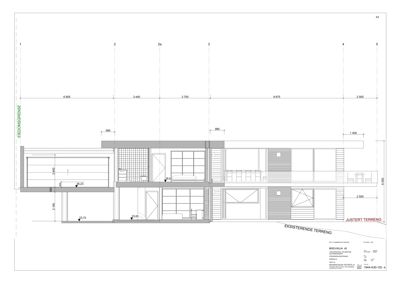
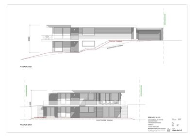
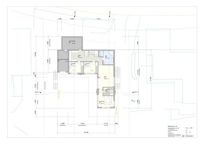
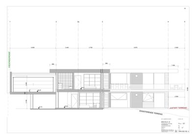
Tiltaket omfatter riving av eksisterende tak, 1. etasje og garasje på en enebolig, samt oppføring av ny frittliggende garasje, ny 1. etasje over underetasjen, og et to-etasjes tilbygg mot sør. Balkongen i 1. etasje utvides rundt boligen i vest, sør og øst. Det etableres bod under terreng ved utgraving under eksisterende terrasse, og det oppføres en støttemur mot vest i forbindelse med terrengtrapp. Garasjen sammenbygges med boligen, og tiltaket inkluderer også etterisolering av vegger for å oppnå TEK17-standard. Bygningen har flatt tak, tre som fasademateriale, og fasader med flere vinduer og balkonger. Arealet økes med ca. 20,5 m² tilbygg og 43,8 m² balkong, med samlet utnyttelsesgrad på 13,3 % BYA, noe som er dispensert fra reguleringsplanens 12,5 %.

Produkter og materialer

Mur Støttemur

Antall: 1

Støttemur mot vest, høyde 2,53 m, skrånende inn i terrenget

Oppføring av støttemur i forbindelse med terrengtrapp

Grunnarbeid Utgraving under terrasse

Antall: 1

Utgraving av areal under eksisterende terrasse for bod under terreng

Grunnarbeid for underbygging og bod under terreng

Garasje Sammenbygd garasje

Antall: 1

Ny frittliggende garasje på 36 m² BYA, sammenbygd med bolig

Garasje sammenbygd med bolig, med dispensasjon for plassering nær vei

Tilbygg To-etasjes tilbygg

Antall: 1

Tilbygg på ca. 20,5 m² BYA i to etasjer mot sør

Nytt tilbygg i to etasjer som forlenger boligens L-form

Trapper Terrengtrapp

Antall: 1

Terrengtrapp med tilhørende støttemur

Utendørs trapp i terreng

Bad Oppgradering våtrom

Oppgradering av bad i henhold til TEK17

Nye bad og våtrom i bolig

Fasade Trefasade

🧱 Tre

Fasader i tre med flatt tak, gesimshøyde 6 m

Tre som fasademateriale på alle fasader med flatt tak

VVS Sanitærinstallasjoner

Nytt sanitærabonnement må søkes pga. tiltakets omfang

VVS-installasjoner for våtrom og sanitær

Balkong Utvidet balkong

Antall: 2

Balkong på 43,8 m² BYA rundt boligen i vest, sør og øst

Utvidelse av eksisterende balkongareal

Isolasjon Etterisolering yttervegger

🧱 10 cm isolasjon

Etterisolering av yttervegger med 10 cm isolasjon for TEK17-standard

Isolasjon for å oppnå dagens energikrav

Tømrer Bygningskonstruksjoner

🧱 Tre

Tømrerarbeider for tilbygg, tak, garasje og fasade

Tømrerarbeid i hele tiltaket

Gulv Innvendige gulv

Nye gulv i tilbygg og oppgraderte rom

Gulv i bolig, inkludert bad og stue

Dører Ytterdører og balkongdører

Antall: 10

Dører i fasader og balkonger

Ytterdører og balkongdører i trehus

Vinduer Store vindusflater

Antall: 14

Store åpningsbare vindusflater i fasade mot utsikt

Vinduer i fasader, inkludert lukket østfasade med store vindusflater

Tak Flatt tak

Nytt flatt tak på bolig og garasje

Riving og gjenoppføring av tak med flatt takkonstruksjon

Maling Utvendig og innvendig maling

Maling av trefasader og innvendige overflater

Overflatebehandling av treverk og innvendige flater

Elektro Elektriske installasjoner

Oppgradering til TEK17-standard med nye elektriske installasjoner

Elektriske anlegg i bolig og garasje

Fasader

Enebolig

Nord
Materiale
Tre
Taktype
Flatt tak
Høyde
6.0 m
Vinduer
1
Dører
2
Synlige etasjer
1
Vest
Materiale
Tre
Taktype
Flatt tak
Høyde
6.0 m
Vinduer
4
Dører
0
Balkonger
1
Synlige etasjer
1
Øst
Materiale
Tre
Taktype
Flatt tak
Høyde
6.0 m
Vinduer
2
Dører
1
Balkonger
1
Synlige etasjer
2
Sør
Materiale
Tre
Taktype
Flatt tak
Vinduer
4
Dører
1
Synlige etasjer
2

Hendelser

15.04.2026 39/643 Riving og gjenoppføring av tak, 1.etasje og garasje, nytt tilbygg og støttemur - Manglende ferdigattest eller midlertidig brukstillatelse
19.12.2022 39/643 Svar på dokumenttilsyn - Riving og gjenoppføring av tak, 1. etasje og garasje, nytt tilbygg og støttemur
16.12.2022 39/643 Avslutning av tilsyn - Riving og gjenoppføring av tak, 1.etasje og garasje, nytt tilbygg og støttemur
16.12.2022 39/643 Svar vedrørende klage - Riving og gjenoppføring av tak, 1.etasje og garasje, nytt tilbygg og støttemur
15.12.2022 39/643 Naboklager - Riving og gjenoppføring av tak, 1.etasje og garasje, nytt tilbygg og støttemur
06.12.2022 39/643 Svar på varsel om dokumenttilsyn - Riving og gjenoppføring av tak, 1. etasje og garasje, nytt tilbygg og støttemur
29.11.2022 39/643 Varsel om dokumenttilsyn - Riving og gjenoppføring av tak, 1.etasje og garasje, nytt tilbygg og støttemur
23.11.2022 39/643 Mulig ulovligheter ved tiltaket - Riving og gjenoppføring av tak, 1.etasje og garasje, nytt tilbygg og støttemur
02.09.2021 39/643 Godkjent dispensasjon og endringstillatelse - Sammenbygging av garasje og bolig
13.08.2021 39/643 Ber om status i saken - Riving og gjenoppføring av tak, 1.etasje og garasje, nytt tilbygg og støttemur
21.06.2021 39/643 Søknad om endring av gitt tillatelse - Riving og gjenoppføring av tak, 1.etasje og garasje, nytt tilbygg og støttemur
24.05.2021 39/643 Ber om møte med saksbehandler for avklaringer om mulige endringer - Riving og gjenoppføring av tak, 1.etasje og garasje
19.03.2021 39/643 Kreditering av gebyr - Riving og gjenoppføring av tak, 1.etasje og garasje, nytt tilbygg og støttemur
03.02.2021 39/643 Ber om at byggesaksgebyr frafalles - Riving og gjenoppføring av tak, 1.etasje og garasje, nytt tilbygg
18.01.2021 39/643 Godkjent dispensasjon og tillatelse til tiltak - Riving og gjenoppføring av tak og garasje
16.12.2020 39/643 Tilbakemelding om sanitærmelding - Riving og gjenoppføring av tak, 1.etasje og garasje, nytt tilbygg og støttemur
15.12.2020 39/643 Spørsmål til krav om søknad om nytt sanitæabonnement
07.12.2020 39/643 Avstandsberegninger - Riving og gjenoppføring av tak, 1.etasje og garasje, nytt tilbygg
07.12.2020 39/643 Ønsker samtale med saksbehandler - Riving og gjenoppføring av tak, 1.etasje og garasje, nytt tilbygg
04.12.2020 39/643 Mangelbrev - Riving og gjenoppføring av tak, 1.etasje og garasje, nytt tilbygg og støttemur
06.10.2020 39/643 Søknad om riving og gjenoppføring av tak, 1 etasje og garasje, nytt tilbygg og støttemur
06.10.2020 39/643 Kvitteringsbrev - Riving og gjenoppføring av tak, 1 etasje og garasje, nytt tilbygg og støttemur