Extension Rammetillatelse Enebolig

Ombygging av bolig og dobbelgarasje på Brekka 51, Porsgrunn

📍 Brekka 51 , 3917 PORSGRUNN

Nøkkelinfo

Sakstype
Tilbygg
Bygningstype
Enebolig
Bruksareal
186 m²
Boenheter
1
Kommune
Porsgrunn
Fylke
Telemark
Gnr / Bnr
46 / 670
Saksnummer
2023/19185
Fase
Rammetillatelse

Om byggesaken

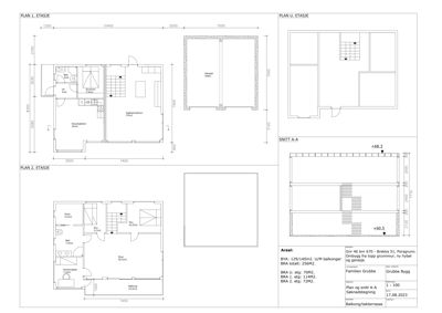
Eksisterende enebolig på Brekka 51 gjennomgår omfattende ombygging hvor 2. etasje demonteres og bygges opp igjen etter dagens krav til konstruksjon og isolasjon. Første etasje etterisoleres både innvendig og utvendig, og alle vinduer byttes til dagens standard. I tillegg oppføres en ny dobbelgarasje på 49 m² med betongfasade og flatt tak. Boligen har totalt 186 m² BRA fordelt på to etasjer med flere rom, inkludert stue, kjøkken, bad, soverom, kontor og balkong. Fasaden er i tre med flatt tak. Det er også planlagt grunnarbeider, VA-tilkobling og støttemur i forbindelse med tomtearbeidene. Nabomerknader gjelder i hovedsak privatrettslige forhold knyttet til tomtegrenser og terrengendringer.

Produkter og materialer

Isolasjon Etterisolering innvendig og utvendig

🧱 Ikke spesifisert

Etterisolering av 1. etasje både innvendig og utvendig

Isolasjon for bedre energistandard i bolig

Maling Utvendig og innvendig maling

Maling av trepanel og innvendige flater

Overflatebehandling av fasade og innvendige vegger

Fasade Betongfasade på garasje

🧱 Betong

Betongfasade på ny dobbelgarasje

Fasadebekledning i betong på garasje

Dører Ytterdører og balkongdører

🧱 Tre/isolert

Antall: 7

Dører i bolig og balkongdør til balkong på 19,5 m²

Nye dører i bolig og til balkong

Grunnarbeid Grunnarbeider og VA-tilkobling

Grunnarbeider, VA-grøft, kloakktilkobling og støttemur i skråning

Grunnarbeid og infrastruktur for bolig og garasje

Vinduer Utskifting av vinduer i bolig

🧱 Dagens standard isolerglass

Antall: 14

Vinduer i 1. og 2. etasje byttes til dagens standard

Nye energieffektive vinduer for bolig etter dagens krav

Betong Fundament og støttemur

🧱 Betong

Støttemur langs adkomst og fundamentering for garasje

Betongarbeider for støttemur og fundament

VVS Rørleggerarbeid for bolig og VA

Rørleggerarbeid utføres av Rørlegger Gulliksen

VVS-installasjoner og VA-tilkobling

Tak Flatt tak på bolig og garasje

🧱 Ikke spesifisert

Antall: 2

Flatt tak på bolig og garasje

Taktekking og isolasjon for flate tak

Elektro Elektriske installasjoner

Elektriske arbeider i bolig og garasje

Elektroinstallasjoner iht. dagens krav

Tømrer Ombygging 2. etasje og ny garasje

🧱 Treverk og konstruksjonsmaterialer

Demontering og oppbygging av 2. etasje, oppføring av garasje

Tømrerarbeid for boligombygging og garasje

Garasjeport Dobbel garasjeport

🧱 Ikke spesifisert

Antall: 1

Garasje med betongfasade og flatt tak, dobbel garasjeport

Garasjeport til ny dobbelgarasje på 49 m²

Fasade Trepanel på bolig

🧱 Tre

Trepanel på boligfasader øst, nord, sør og vest

Fasadebekledning i tre på bolig

Plantegning

Enebolig 186.0 m²

Etasje 1 114.0 m²

Rom Areal Vinduer Dører
Stue/kjøkken 101 24.0 m² 1 1
Kjøkken/allrom 102 37.0 m² 1 1
Soverom 103 7.5 m² 1 1
Bad 104 3.0 m² 0 1
VF 105 3.0 m² 0 1
Garasje 106 42.0 m² 1 1

Etasje 2 72.0 m²

Rom Areal Vinduer Dører
Stue 201 30.5 m² 1 1
Sov. (venstre) 202 5.7 m² 1 1
Sov. (høyre) 203 10.5 m² 1 1
Bad 204 7.5 m² 0 1
Gard. 205 5.2 m² 0 1
Kontor/gjest. 206 7.3 m² 0 1
Balkong 207 19.5 m² 0 1

Fasader

Enebolig

Øst
Materiale
Tre
Taktype
Flatt tak
Vinduer
6
Dører
1
Balkonger
1
Synlige etasjer
2
Nord
Materiale
Tre
Taktype
Flatt tak
Vinduer
3
Dører
0
Balkonger
1
Synlige etasjer
2
Sør
Materiale
Tre
Taktype
Flatt tak
Vinduer
4
Dører
1
Synlige etasjer
2
Vest
Materiale
Tre
Taktype
Flatt tak
Vinduer
4
Dører
1
Synlige etasjer
2

Garasje

Øst
Materiale
Betong
Taktype
Flatt tak
Vinduer
0
Dører
1
Synlige etasjer
1

Hendelser

21.04.2026 Spørsmål fra nabo - byggesak - Gbnr. 46/670, Brekka 51
05.08.2025 Anmodning om tilbakemelding - Nabomerknad - Gbnr. 46/670, Brekka 51
07.06.2024 Tilbakemelding på redegjørelse - Gbnr. 46/670, Brekka 51 - Ombygging av eksisterende bolig og oppføring av dobbelt garasj
14.05.2024 Redegjørelse - Gbnr. 46/670, Brekka 51
24.04.2024 Purring på redegjørelse - Gbnr. 46/670, Brekka 51
22.04.2024 Nabomerknad - Gbnr. 46/670, Brekka 51
04.03.2024 Ber om redegjørelse - Gbnr. 46/670, Brekka 51
13.02.2024 Nabomerknad - Gbnr. 46/670, Brekka 51
15.09.2023 Melding om vedtak - Gbnr. 46/670, Brekka 51 - Ombygging av eksisterende bolig og oppføring av dobbelt garasje
14.09.2023 Tillatelse - Gbnr. 46/670 - Brekka 51 - Ombygging av eksisterende bolig og oppføring av dobbelt garasje
11.09.2023 Ettersendt vedlegg - Gbnr. 46/670, Brekka 51 - Ombygging av eksisterende bolig og oppføring av dobbelgarasje
07.09.2023 Tilbakemelding - Gbnr. 46/670, Brekka 51 - Ombygging av eksisterende bolig og oppføring av dobbelt garasje
28.08.2023 Søknad om tillatelse til tiltak - Gbnr. 46/670, Brekka 51