Facade
Bildet viser en fasadetegning av en gul hytte med en tilhørende fotografi av den ferdigbygde fasaden for sammenligning.
1 / 4
Extension
UnderBehandling
Enebolig
Tilbygg til enebolig i Dalslia 33, Nesbru
📍 Dalslia 33 , 1394 NESBRU
Nøkkelinfo
- Sakstype
- Tilbygg
- Bygningstype
- Enebolig
- Bruksareal
- 217 m²
- Boenheter
- 1
- Kommune
- Asker
- Fylke
- Akershus
- Gnr / Bnr
- 28 / 34
- Saksnummer
- 26/1180
- Fase
- Under behandling
Om byggesaken
Ny to-etasjes tilbygg til eksisterende enebolig på Dalslia 33 med totalt areal på 216,8 m². Tilbygget er oppført i perioden 2018–2019 med trekledning og saltak tekket med teglstein, i gul farge. Bygget har flere oppholdsrom, kjøkken, arbeidsrom, fire soverom og bad fordelt på to etasjer. Fasaden har vinduer i tre og dører, med ett ekstra vindu på østfasaden som avviker fra opprinnelig søknad. Det er en trapp innvendig og pipe på taket. Prosjektet er i sluttfasen med behov for ferdigattest etter konkurs hos entreprenør.
Produkter og materialer
Tømrer
Snekker- og tømrerarbeid
Tømrerarbeid inkludert taktekking og malearbeid
Tak
Saltak med teglstein
🧱 Teglstein
Saltak tekket med teglstein
Saltak med teglstein som takmateriale
Vinduer
Fasadevindu i tre
🧱 Tre
Antall: 21
Vinduer i tre, inkludert ett ekstra vindu på østfasaden som ikke var i opprinnelig søknad
Fasadevinduer i tre til oppholdsrom og soverom
Maling
Utvendig og innvendig maling
Maling av fasade og innvendige flater
Pipe
Pipe på tak
Antall: 1
Pipe på taket av eneboligen
Dører
Ytterdører og innerdører
Antall: 15
Dører fordelt på ytterdører og innerdører i bolig
Ytterdører og innerdører til rom og innganger
Grunnarbeid
Fundamentering og murarbeid
Fundamentering og murarbeid for tilbygg
Fasade
Trekledning
🧱 Tre
Gul farge
Trekledning i gul farge på fasader
Trapper
Innvendig trapp
Antall: 1
Innvendig trapp mellom etasjer
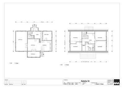
Plantegning
Dalslia 33 216.8 m²
Etasje 1 108.4 m²
| Rom | Areal | Vinduer | Dører |
|---|---|---|---|
| Opphold 101 | 38.4 m² | 3 | 1 |
| Opphold 102 | 21.6 m² | 2 | 2 |
| Opphold 103 | 14.4 m² | 3 | 1 |
| Kjøkken 104 | 12.0 m² | 1 | 1 |
| Gang 105 | 6.0 m² | 0 | 2 |
| ARB. ROM 106 | 12.0 m² | 1 | 1 |
Etasje 2 108.4 m²
| Rom | Areal | Vinduer | Dører |
|---|---|---|---|
| Soverom 201 | 21.6 m² | 2 | 1 |
| Soverom 202 | 21.6 m² | 2 | 1 |
| Soverom 203 | 21.6 m² | 2 | 1 |
| Soverom 204 | 21.6 m² | 2 | 1 |
| Gang 205 | 6.0 m² | 0 | 2 |
| Bad 206 | 6.0 m² | 0 | 1 |
Fasader
Enebolig
Øst
- Materiale
- Tre
- Taktype
- Saltak
- Takmat.
- Tegl
- Vinduer
- 6
- Dører
- 1
- Synlige etasjer
- 2
Nord
- Materiale
- Tre
- Taktype
- Saltak
- Takmat.
- Tegl
- Vinduer
- 5
- Dører
- 1
- Synlige etasjer
- 2
Sør
- Materiale
- Tre
- Taktype
- Saltak
- Takmat.
- Tegl
- Vinduer
- 4
- Dører
- 0
- Synlige etasjer
- 2
Vest
- Materiale
- Tre
- Taktype
- Saltak
- Takmat.
- Tegl
- Vinduer
- 4
- Dører
- 1
- Synlige etasjer
- 2
Hendelser
13.04.2026
28/34 Dalslia 33 - Ettersendelse gjennomføringsplan
13.04.2026
28/34 Dalslia 33 - Ønsker veiledning – ferdigattest for tilbygg etter konkurs hos entreprenør