Facade
Fasadetegning som viser bygningens utseende sett fra nord-øst og sør-øst, inkludert mål og detaljer som terrasser.
1 / 34
Extension
Rammetillatelse
Enebolig
Tilbygg og påbygg med balkong i Dalslia 35, Nesbru
📍 Dalslia 35 , 1394 NESBRU
Nøkkelinfo
- Sakstype
- Tilbygg
- Bygningstype
- Enebolig
- Bruksareal
- 24 m²
- Boenheter
- 1
- Kommune
- Asker
- Fylke
- Akershus
- Gnr / Bnr
- 28 / 35
- Saksnummer
- 22/1813
- Fase
- Rammetillatelse
Om byggesaken
Prosjektet omfatter et tilbygg og påbygg på en eksisterende enebolig. Det planlegges en ny balkong på byggets sør-østre fasade, samt innbygging av eksisterende balkong på deler av den nord-vestre fasaden i første etasje. I andre etasje vil det bli påbygd over deler av eksisterende første etasje. Det er ingen endringer i kotehøyder eller terreng. Bygget vil ha fasader med pussede overflater og vinduer som matcher eksisterende stil.
Produkter og materialer
Tak
Saltak
🧱 Tegl
Antall: 1
Takarbeid for tilbygg
Grunnarbeid
Antall: 1
Grunnarbeid for tilbygg
Terrasse
Antall: 1
Ny terrasse på 25 m²
Bygging av ny terrasse
Dører
Ytterdør
Antall: 2
Nye dører for tilbygg
Vinduer
Fasadevindu
🧱 Trebetrukket
Antall: 6
Vinduer i samme stil som eksisterende
Nye vinduer for tilbygg
Fasade
Pusset fasade
Antall: 1
Pusset fasade i samme stil som eksisterende bygg
Fasadearbeid for tilbygg og påbygg
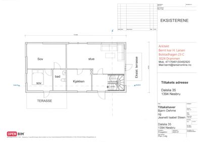
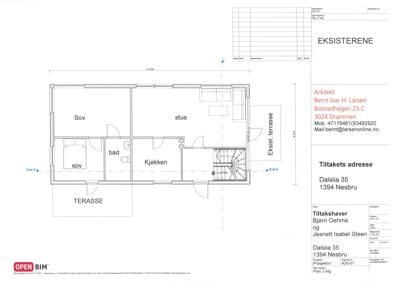
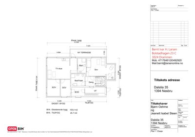
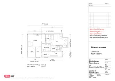
Plantegning
Enebolig 195.5 m²
Etasje 2 87.1 m²
| Rom | Areal | Vinduer | Dører |
|---|---|---|---|
| Stue 201 | 28.0 m² | 1 | 1 |
| Kjøkken 202 | 12.0 m² | 0 | 1 |
| Sov 203 | 10.0 m² | 1 | 1 |
| Sov 204 | 10.0 m² | 1 | 1 |
| Bad 205 | 6.0 m² | 0 | 1 |
| WC 206 | 2.0 m² | 0 | 1 |
| Walk in 207 | 4.0 m² | 0 | 1 |
| Ny terrasse 208 | 25.0 m² | 0 | 1 |
Etasje 0 108.4 m²
| Rom | Areal | Vinduer | Dører |
|---|---|---|---|
| Kjellerstue 001 | 10.7 m² | 1 | 1 |
| HALL 002 | 10.7 m² | 0 | 2 |
| BOD 003 | 10.7 m² | 0 | 2 |
| BAD 004 | 10.7 m² | 0 | 2 |
| SOV 005 | 10.7 m² | 1 | 1 |
| SOV 006 | 10.7 m² | 1 | 1 |
| GYM 007 | 10.7 m² | 1 | 1 |
| TRAPP 008 | 10.7 m² | 0 | 1 |
Eksisterende bygg 105.4 m²
Etasje 1 105.4 m²
| Rom | Areal | Vinduer | Dører |
|---|---|---|---|
| SOV 101 | 0.0 m² | 0 | 1 |
| Bad/Vask 102 | 0.0 m² | 0 | 1 |
| Gang 103 | 0.0 m² | 0 | 2 |
| Terasse 104 | 0.0 m² | 0 | 1 |
| Bad/Vask 105 | 0.0 m² | 0 | 1 |
| Sov 106 | 0.0 m² | 1 | 1 |
| Gang 107 | 0.0 m² | 0 | 2 |
| BOD 108 | 0.0 m² | 0 | 1 |
| VF 109 | 0.0 m² | 0 | 1 |
Fasader
Enebolig
Nord-Øst
- Materiale
- Betong
- Taktype
- Saltak
- Takmat.
- Tegl
- Høyde
- 7.4 m
- Mønehøyde
- 8.5 m
- Vinduer
- 4
- Dører
- 0
- Balkonger
- 1
- Synlige etasjer
- 2
Sør-Øst
- Materiale
- Betong
- Taktype
- Flatt tak
- Takmat.
- Tegl
- Høyde
- 7.4 m
- Mønehøyde
- 8.6 m
- Vinduer
- 6
- Dører
- 1
- Balkonger
- 1
- Synlige etasjer
- 2
Sør-Vest
- Materiale
- Tre
- Taktype
- Saltak
- Takmat.
- Tegl
- Høyde
- 3.0 m
- Mønehøyde
- 7.4 m
- Vinduer
- 3
- Dører
- 1
- Balkonger
- 1
- Synlige etasjer
- 2
Nord-Vest
- Materiale
- Tre
- Taktype
- Saltak
- Takmat.
- Tegl
- Høyde
- 2.9 m
- Mønehøyde
- 7.4 m
- Vinduer
- 5
- Dører
- 1
- Balkonger
- 1
- Synlige etasjer
- 2
Hendelser
08.04.2026
28/35 Dalslia 35 - Purring på svar
08.12.2025
28/35 Dalslia 35 - Oppdatert gjennomføringsplan
02.12.2025
28/35 Dalslia 35 - Svar på endring av foretak
29.10.2025
28/35 Dalslia 35 - Supplerende dokumentasjon
29.09.2025
28/35 Dalslia 35 - Supplerende dokumentasjon
28.09.2022
28/35 Godkjent tillatelse til tilbygg / påbygg - Balkong og tiltak på eksisterende bolig
21.09.2022
28/35 Innsending av manglende dokumentasjon - Tilbygg / påbygg - Balkong og tiltak på eksisterende bolig
15.07.2022
28/35 Ufullstendig søknad - tilbygg / påbygg - Balkong og tiltak på eksisterende bolig
23.05.2022
28/35 Kvitteringsbrev - Tilbygg / påbygg - Balkong og tiltak på eksisterende bolig
20.05.2022
28/35 Søknad om tilbygg / påbygg - Balkong og tiltak på eksisterende bolig