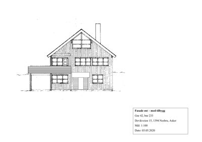
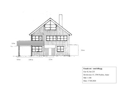
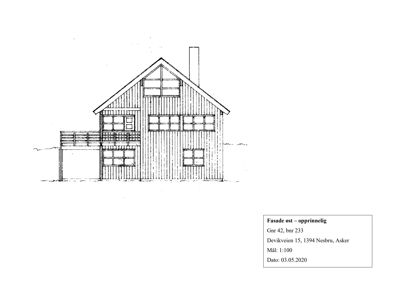
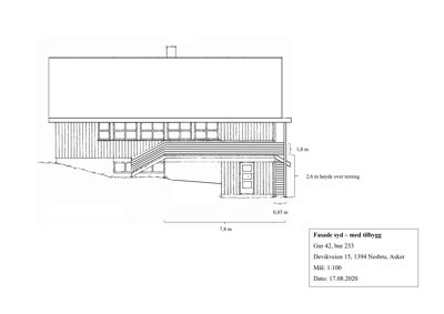
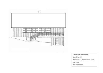
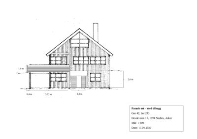
Facade
Tegning som viser fasaden mot øst for en bygning med et tilbygg, inkludert mål og adresse.
1 / 35
Extension
Unknown
Enebolig
Tilbygg carport/veranda og innvendig bruksendring
📍 Devikveien 15 , 1394 NESBRU
Nøkkelinfo
- Sakstype
- Tilbygg
- Bygningstype
- Enebolig
- Kommune
- Asker
- Fylke
- Akershus
- Gnr / Bnr
- 42 / 233
- Saksnummer
- 20/4817
- Fase
- Unknown
Om byggesaken
Søknad om tillatelse og dispensasjon for oppføring av carport/veranda samt innvendig bruksendring i enebolig.
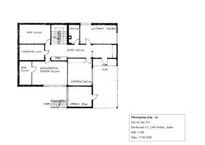
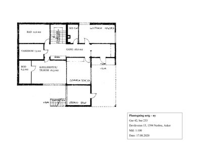
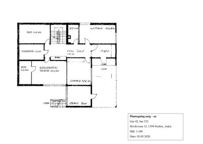
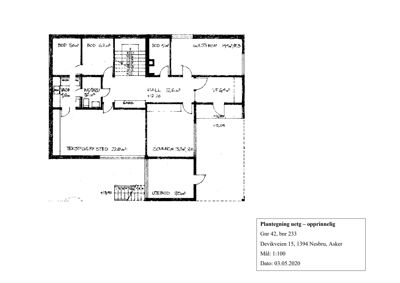
Plantegning
Uetg 117.3 m²
Etasje 0 117.3 m²
| Rom | Areal | Vinduer | Dører |
|---|---|---|---|
| BAD 001 | 11.6 m² | 0 | 1 |
| VASKEROM 002 | 7.5 m² | 0 | 1 |
| BOD 003 | 6.5 m² | 0 | 1 |
| KJELLERSTUE/TR.ROM 004 | 16.3 m² | 0 | 1 |
| GANG 005 | 18.6 m² | 0 | 4 |
| BOD 006 | 4.1 m² | 0 | 1 |
| GUESTEROM 007 | 14.4 m² | 1 | 1 |
| SOVEROM 008 | 13.3 m² | 1 | 1 |
| GARD. 009 | 0.0 m² | 0 | 0 |
| UTEBOD 010 | 9.5 m² | 0 | 1 |
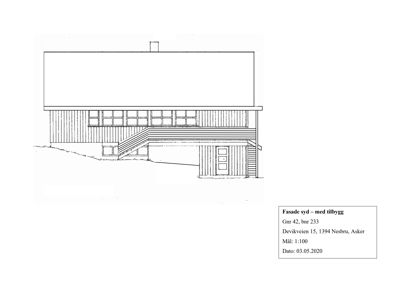
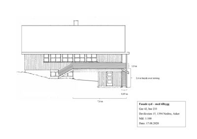
Fasader
Enebolig
Sør
- Materiale
- Tre
- Taktype
- Flatt tak
- Høyde
- 2.6 m
- Vinduer
- 10
- Dører
- 1
- Balkonger
- 1
- Synlige etasjer
- 2
Øst
- Materiale
- Tre
- Taktype
- Saltak
- Høyde
- 2.6 m
- Vinduer
- 7
- Dører
- 0
- Balkonger
- 1
- Synlige etasjer
- 2
Nord
- Materiale
- Tre
- Taktype
- Flatt tak
- Høyde
- 3.6 m
- Vinduer
- 4
- Dører
- 1
- Synlige etasjer
- 2
Vest
- Materiale
- Tre
- Taktype
- Saltak
- Vinduer
- 4
- Dører
- 0
- Synlige etasjer
- 2
Hendelser
13.04.2026
42/233 Devikveien 15 - Tilbakemelding på mangelbrev og søknad om ferdigattest
09.04.2026
42/233 Tilbygg carport / veranda og oppføring av vedskjul og bruksendring fra tilleggsdel til hoveddel - Manglende ferdigattest eller midlertidig brukstillatelse
20.08.2020
42/233 Godkjent dispensasjon og tillatelse til tiltak - Tilbygg carport/veranda og innvendig bruksendring
17.08.2020
42/233 Tilsvar og manglende dokumentasjon - Tilbygg carport / veranda og oppføring av vedskjul og bruksendring
10.08.2020
42/233 Ufullstendig søknad - Tilbygg og bruksendring
14.07.2020
42/233 Mottatt søknad - Tilbygg carport / veranda og oppføring av vedskjul og bruksendring fra tilleggsdel til hoveddel
07.07.2020
42/233 Søknad om tilbygg carport / veranda og oppføring av vedskjul og søknad om bruksendring