Extension Igangsettingstillatelse Enebolig

Tilbygg med veranda og vinterhage på Dverbergveien 405

📍 Dverbergveien 405 , 8485 DVERBERG

Nøkkelinfo

Sakstype
Tilbygg
Bygningstype
Enebolig
Bruksareal
64 m²
Boenheter
1
Kommune
Andøy
Fylke
Nordland - Nordlánnda
Gnr / Bnr
26 / 55
Saksnummer
2023/2009
Fase
Igangsettingstillatelse

Om byggesaken

Ny tilbygg på totalt 64 m² inkludert overbygg ved inngangsparti på 14 m², vinterhage på 15 m² og veranda på 28 m² på en eksisterende enebolig i Dverbergveien 405. Tilbygget har saltak med tegl takmateriale og trekledning på fasadene. Bygget har to etasjer med flere soverom, bad, kontor, gang og trapperom. Det er planlagt veranda og platting mot sør og nord. Bygget er tilpasset eksisterende bolig med moderne oppgraderinger som nye vinduer og isolasjon.

Produkter og materialer

Vinduer Fasadevindu

Antall: 23

Vinduer i fasader nord (5), sør (6), øst (6), vest (6)

Fasadevinduer i tilbygget og eksisterende bolig

Tømrer Bygningskonstruksjon

🧱 Tre

Tømrerarbeid for oppføring av tilbygget

Elektro Ny elektrisk installasjon

Ny elektrisk installasjon i tilbygget og eksisterende bolig

Oppgradering av elektriske anlegg i tilbygget

Terrasse Veranda og platting

Veranda på 28 m², platting på 17 m²

Utendørs veranda og platting på sørsiden og nordside av tilbygget

VVS Oppgradert VVS-installasjon

Ny VVS installasjon i tilbygget og eksisterende bolig

Oppgradering av vann- og avløpsinstallasjoner i tilbygget

Fasade Trekledning

🧱 Tre

Trekledning på alle fasader

Fasade med trekledning på alle sider av tilbygget

Gulv Innvendige gulvflater

Innvendige gulv i tilbygget og eksisterende bolig

Dører Ytterdører

Antall: 5

Dører i fasader nord (1), sør (1), øst (2), vest (1)

Ytterdører til tilbygget og eksisterende bolig

Mur Grunnmur

Grunnmur for tilbygget

Tak Saltak med tegl takstein

🧱 Tegl

Saltak med tegl takmateriale

Saltak med tegl takstein på tilbygget

Isolasjon Vegger og tak

Isolasjon i vegger og tak i tilbygget

Isolasjon for energieffektivitet og komfort

Trapper Innvendig trapp

Antall: 1

Innvendig trapp mellom etasjer i tilbygget

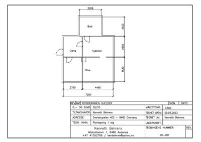
Plantegning

Enebolig 38.4 m²

Etasje 1 38.4 m²

Rom Areal Vinduer Dører
Gang 101 6.8 m² 0 2
Kjøkken 102 10.4 m² 0 1
Stue 103 15.2 m² 0 0
Bad 104 6.0 m² 0 1
Vaskerom 105 0.0 m² 1 1
Bad 106 0.0 m² 0 1
Gang 107 0.0 m² 0 1
Trapp 108 0.0 m² 0 0

Etasje 2 0.0 m²

Rom Areal Vinduer Dører
Soverom 201 13.7 m² 1 1
Soverom 202 13.7 m² 1 1
Kontor 203 7.0 m² 1 1
Trapperom/Gang 204 0.0 m² 0 1
Bad 205 9.7 m² 0 1
Soverom 206 13.8 m² 1 1
Walk in 207 11.2 m² 0 1
Soverom 208 13.7 m² 1 1
Soverom 209 9.1 m² 0 1

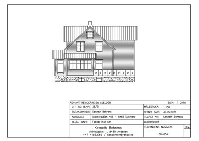
Fasader

Enebolig

Nord
Materiale
Tre
Taktype
Saltak
Vinduer
5
Dører
1
Synlige etasjer
2
Sør
Materiale
Tre
Taktype
Saltak
Vinduer
6
Dører
1
Synlige etasjer
2
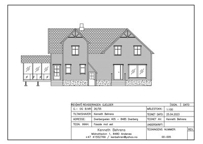
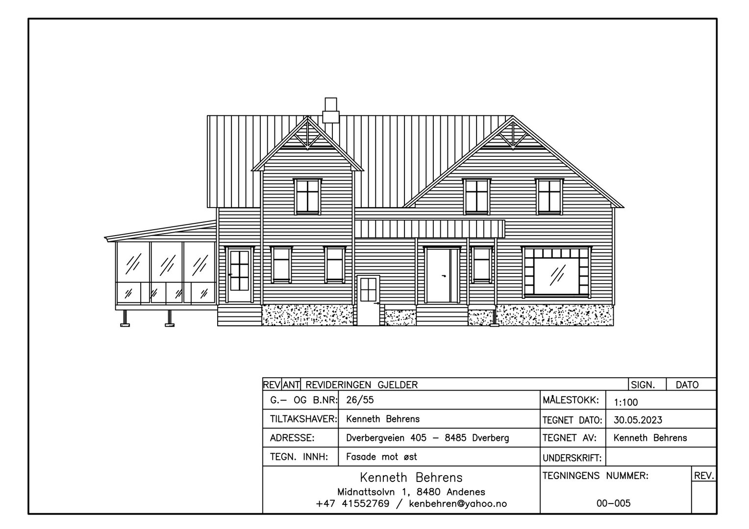
Øst
Materiale
Tre
Taktype
Saltak
Takmat.
Tegl
Vinduer
6
Dører
2
Synlige etasjer
2
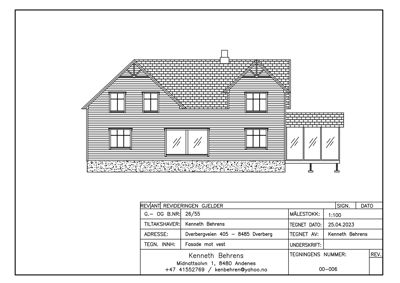
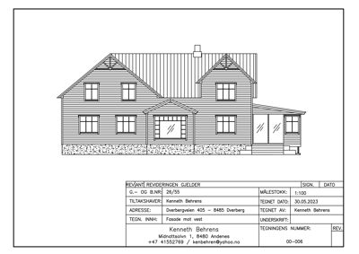
Vest
Materiale
Tre
Taktype
Saltak
Takmat.
Tegl
Vinduer
6
Dører
1
Synlige etasjer
2

Hendelser

16.04.2026 Tiltaket er igangsatt
16.04.2026 Varsel om at vi avslutter byggesaken
26.03.2026 Vi minner om at dere må søke om ferdigattest
09.11.2023 Tillatelse til tiltak - gnr 26 bnr 55 - Dverbergveien 405 - Tilbygg
01.06.2023 Endring i søknad - Tilbygg Dverbergveien 405
26.05.2023 Dverbergveien 405 Søknad om tillatelse til tiltak uten ansvarsrett 26/55