Extension UnderBehandling Enebolig

Tilbygg, fasade- og bruksendring på enebolig i Dyreveien 43, Moss

📍 Dyreveien 43 , 1524 MOSS

Nøkkelinfo

Sakstype
Tilbygg
Bygningstype
Enebolig
Bruksareal
276 m²
Boenheter
1
Kommune
Moss
Fylke
Østfold
Gnr / Bnr
2 / 731
Saksnummer
2023/13198
Fase
Under behandling

Om byggesaken

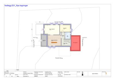
Prosjektet omfatter tilbygg og fasadeendringer på en eksisterende enebolig i byggmesterfunkis-stil fra 1939, beliggende i Dyreveien 43, Moss. Det inkluderer delvis utvidelse av verandaer i 1. og 2. etasje på vestfasaden, endring av vinduer og dører på sør- og vestfasade, samt endring av saltaksform på garasjen. Garasjen er bruksendret til soverom, og kjelleretasjen er omgjort fra tilleggsdel til hoveddel med rom for varig opphold. Det er etablert ny terrasse med trapp til 2. etasje på sørfasaden. Totalt bruksareal er ca. 275,8 m² fordelt på kjeller, 1. og 2. etasje. Tiltaket inkluderer også støytiltak for å tilfredsstille krav i gul støysone, med lydisolerende vinduer og balansert ventilasjon. Prosjektet er godkjent med vilkår om dokumentasjon av gjennomførte støytiltak før ferdigattest kan gis.

Produkter og materialer

Trapper Utvendig trapp til terrasse 2. etasje

🧱 Tre

Antall: 1

Ny utvendig trapp til terrasse på sørfasade

Trapp for adkomst til ny terrasse i 2. etasje

Ventilasjon Balansert ventilasjon

Balansert ventilasjon for å oppnå krav til innendørs støynivå i bruksendret garasje

Ventilasjonsanlegg for støyreduksjon og frisklufttilførsel

Vinduer Lydisolerende vinduer

🧱 Tre/Aluminium med 3-lags energiglass

Antall: 19

Vinduer med lydreduksjon Rw+Ctr = 37 dB for fasade øst og sør, inkludert luftevindu på vestfasade

Vinduer for å oppnå tilfredsstillende innendørs støynivå i bruksendret garasje og soverom

Tak Saltak og pulttak

🧱 Taktekking i henhold til eksisterende og nye takformer

Endring av saltaksform på garasje, pulttak på tilbygg

Takendringer i forbindelse med tilbygg og fasadeendringer

Dører Lydisolerende ytterdør

🧱 Tre/Aluminium

Antall: 3

Dør med lydreduksjon Rw+Ctr = 37 dB i fasade øst og sør

Dører for å oppnå tilfredsstillende innendørs støynivå i bruksendret garasje og soverom

Terrasse Terrasse med rekkverk

🧱 Tre

Antall: 3

Ny terrasse over eksisterende terrasse, utvidelse av verandaer på fasade vest, terrasse med trapp til 2. etasje

Uteoppholdsareal i tilknytning til bolig

Maling Utvendig maling av trepanel

🧱 Maling

Maling av fasade og treverk på verandaer og balkonger

Overflatebehandling for fasade og utearealer

Isolasjon Mineralull isolasjon i vegger og himling

🧱 Mineralull

Minst 150 mm isolasjon i vegger, 2 lag 13 mm gips innvendig på vegger og himling

Isolasjon for lydreduksjon i bruksendret garasje

Rekkverk Rekkverk på verandaer og balkonger

🧱 Tre

Rekkverk på utvidede verandaer og balkonger i 1. og 2. etasje

Sikkerhetsrekkverk på utearealer

Grunnarbeid Fundamentering for verandaer og trapp

🧱 Betong

Fundamentering for utvidede verandaer og ny trapp over eksisterende betongdekke

Grunnarbeid for tilbygg og utearealer

Gulv Innvendige gulv i kjeller og garasje omgjort til oppholdsrom

🧱 Standard gulv med isolasjon og overflate

Oppgradering av gulv i kjeller og garasje for varig opphold

Gulvtilpasning i bruksendret garasje og kjeller

Fasade Trepanel kledning

🧱 Tre

Oppgradering og endring av fasade med ny kledning og endret takutforming på garasje

Fasadeendringer og tilbygg med verandaer og balkonger

VVS Rørleggerarbeider i kjeller

Rørarbeider i kjeller utført, tiltakshaver ansvarlig

VVS-arbeider i kjeller i forbindelse med bruksendring

Plantegning

Enebolig 275.8 m²

Etasje 2 100.8 m²

Rom Areal Vinduer Dører
Soverom 201 20.0 m² 1 1
Stue 202 21.8 m² 1 1
Gang 203 13.4 m² 0 1
Kjøkken 204 8.1 m² 1 1
Bad 205 4.5 m² 0 1
Bod 206 0.5 m² 0 1

Etasje 0 75.0 m²

Rom Areal Vinduer Dører
Stue / Opphold 001 18.5 m² 3 1
Soverom 002 9.2 m² 1 1
Gang 003 2.8 m² 0 2
Bad 004 4.5 m² 0 1
Kjøkken/spisestue 005 18.3 m² 2 1
Trapp / Bod 006 7.6 m² 0 0
Ute bod 007 7.7 m² 0 1
Kott 008 7.5 m² 0 1

Etasje 1 100.0 m²

Rom Areal Vinduer Dører
Stue 101 45.0 m² 2 1
Soverom 102 25.0 m² 1 1
Kjøkken 103 15.0 m² 1 1
Entré 104 5.0 m² 0 1
Vindfang 105 5.0 m² 1 1
W.O. 106 5.0 m² 0 1
Garasje 107 19.0 m² 1 1

Fasader

Enebolig

Vest
Materiale
Tre
Taktype
Saltak
Høyde
3.5 m
Vinduer
3
Dører
2
Balkonger
2
Synlige etasjer
2
Nord
Materiale
Tre
Taktype
Saltak
Vinduer
4
Dører
0
Balkonger
1
Synlige etasjer
2
Øst
Materiale
Tre
Taktype
Saltak
Vinduer
3
Dører
0
Synlige etasjer
2
Sør
Materiale
Tre
Taktype
Saltak
Vinduer
4
Dører
1
Balkonger
1
Synlige etasjer
2

Hendelser

14.04.2026 Dyreveien 43 - 2/731 - gjennomføring av tiltak som er beskrevet i støyrapporten
14.04.2026 Dyreveien 43 - 2/731 - vedrørende vilkår i tillatelsen - tilbygg, fasade- og bruksendring
09.04.2026 Dyreveien 43 - 2/731 - dokumentasjon støynivå - tilbygg, fasade- og bruksendring
09.04.2026 Dyreveien 43 - 2/731 - oversendelse av bekreftelse på støyrapport - tilbygg, fasade- og bruksendring
09.04.2026 Dyreveien 43 - 2/731 - tilbakemelding om mangler - tilbygg, fasade- og bruksendring
31.03.2026 Dyreveien 43 - 2/731 - søknad om ferdigattest
21.01.2026 Dyreveien 43 - 2/731 - ferdigstillelse av tiltak - tilbygg, fasade- og bruksendring
19.03.2024 Dyreveien 43 - 2/731 - underretning om vedtak - tilbygg, fasade- og bruksendring
05.03.2024 Dyreveien 43 - 2/731 - informasjon om befaring
07.02.2024 Dyreveien 43 - 2/731 - orientering om videre saksgang
29.11.2023 Dyreveien 43 - 2/731 - foreløpig svar - mottatt klage på vedtak - 09.11.2023 - tilbygg, fasade- og bruksendring
28.11.2023 Dyreveien 43 - 2/731 - klage på deler av vedtak
13.11.2023 Dyreveien 43 - 2/731 - delvis avslag og tillatelse til tiltak - tilbygg, fasade- og bruksendring
10.11.2023 Dyreveien 43 - 2/731 - endring av bygg
27.10.2023 Dyreveien 43 - 2/731 - supplering, nabovarsel
24.10.2023 Dyreveien 43 - 2/731 - ettersendelse av dokumentasjon
12.10.2023 Dyreveien 43 - 2/731 - Fortsatt mangler ved søknaden - tilbygg, fasade- og bruksendring
09.10.2023 Dyreveien 43 - 2/731 - ettersendelse av dokumentasjon
05.09.2023 Dyreveien 43 - 2/731 - tilbakemelding om mangler - tilbygg, fasade- og bruksendring
30.08.2023 Dyreveien 43 - 2/731 - bekreftelse på mottatt søknad etter plan- og bygningsloven
28.08.2023 Dyreveien 43 - 2/731 - ett-trinnssøknad - tilbygg, påbygg, fasade- og bruksendring