Extension Soeknad Enebolig

Tilbygg under 50 m² på enebolig i Eidet 2, Bodø

📍 Eidet 2 , 8093 KJERRINGØY

Nøkkelinfo

Sakstype
Tilbygg
Bygningstype
Enebolig
Bruksareal
50 m²
Boenheter
1
Kommune
Bodø
Fylke
Nordland - Nordlánnda
Gnr / Bnr
2013 / 4099
Saksnummer
2026/13547
Fase
Søknad

Om byggesaken

Ny tilbygg på under 50 m² til eksisterende enebolig på Eidet 2 i Bodø. Tilbygget er en fysisk utvidelse av boligen med tilhørende terrengarbeider for å tilpasse terrassen slik at den ligger maksimalt 0,5 meter over terreng. Eksisterende enebolig har et areal på 108,4 m² med flere rom som stue, kjøkken, spisestue, fire soverom, bad og entré. Prosjektet inkluderer også oppfylling og komprimering av jordmasser rundt terrassen for å oppfylle vilkår i byggetillatelsen.

Produkter og materialer

Grunnarbeid Terrengarbeid og jordmasser

🧱 Jordmasser

Oppfylling og komprimering av jordmasser rundt terrasse for å sikre maksimal høyde på 0,5 meter over terreng

Terrengarbeid for å heve terreng rundt terrasse i henhold til vilkår i byggetillatelsen

Tømrer Tilbygg konstruksjon

Bygging av tilbygg under 50 m² til eksisterende enebolig

Maling Innvendig og utvendig maling

Maling av innvendige og utvendige flater i tilbygget

Gulv Innvendig gulvbelegg

Gulvbelegg i tilbygget, tilpasset eksisterende boligstandard

Vinduer Fasadevindu

Vinduer til tilbygget i samsvar med eksisterende boligstandard

VVS Varme og vann

VVS-installasjoner i tilbygget, eventuelt varme og vanninstallasjoner

Isolasjon Vegger og tak

Isolasjon for vegger og tak i tilbygget for å sikre energikrav

Elektro Elektrisk installasjon

Elektriske installasjoner i tilbygget, inkludert belysning og stikkontakter

Dører Ytterdør og innerdører

Dører til tilbygget, inkludert ytterdør og eventuelle innerdører

Tak Taktekking

Taktekking for tilbygget, tilpasset eksisterende bygg

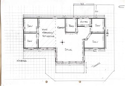
Plantegning

Enebolig 108.4 m²

Etasje 1 108.4 m²

Rom Areal Vinduer Dører
Stue 101 35.0 m² 3 1
Kjøkken 102 14.1 m² 0 1
Spisestue 103 14.5 m² 0 0
Sov 104 12.4 m² 1 1
Sov 105 12.4 m² 1 1
Sov 106 12.4 m² 1 1
Sov 107 12.4 m² 1 1
Bad 108 4.5 m² 0 1
Entré 109 3.7 m² 0 1

Hendelser

21.04.2026 Tilbakemelding vilkår i gitt tillatelse - Sak 2026/13574 - Søknad om ferdigattest Eidet 2
10.04.2026 Ber om bekreftelse på om vilkår i gitt tillatelse er oppfylt
04.03.2026 Søknad om ferdigattest - Eidet 2