Extension Ferdigattest Enebolig

Innbygging av terrasse og fasadeendringer i Ekornveien 35, Hokksund

📍 Ekornveien 35 , 3300 HOKKSUND

Nøkkelinfo

Sakstype
Tilbygg
Bygningstype
Enebolig
Bruksareal
4 m²
Boenheter
1
Kommune
Øvre Eiker
Fylke
Buskerud
Gnr / Bnr
17 / 117
Saksnummer
2025/10333
Fase
Ferdigattest

Om byggesaken

Prosjektet omfatter innbygging av en innhuk på terrasse på 4,4 m² som en del av eksisterende enebolig, med tilhørende fasadeendringer som ny balkongdør/foldedør på sørfasade og nye større vinduer på østfasade. To utvendige boder skal rives, hvorav en er integrert i boligen og erstattes med bod inne i garasje. Bygget er en to-etasjes trehus med saltak og tegl takmateriale, og tiltaket medfører ingen økning i bebygd areal (BYA). Grunnforholdene er dokumentert som stabile med god bæreevne, og tiltaket er i tråd med reguleringsplan og byggegrenser. Det er én trapp i bygget, og fasadene består av tre med flere vinduer og dører som endres i forbindelse med tiltaket.

Produkter og materialer

Grunnarbeid Ringmur/fundament

🧱 Betong og armering

Fundamentering for tiltak innen kvikkleireområde, dokumentert bæreevne

Grunnarbeider for ringmur og fundamentering i henhold til geoteknisk rapport

Tak Saltak

🧱 Tegl

Eksisterende saltak med tegl takmateriale opprettholdes

Taktype og materiale for eksisterende bolig

Fasade Balkongdør/foldedør

🧱 Tre/Glass

Antall: 1

Ny balkongdør/foldedør på fasade syd

Ny balkongdør/foldedør som del av fasadeendring på sørfasade

Tømrer Tre- og stålkonstruksjoner

🧱 Tre og stål

Montering av tre- og stålkonstruksjoner for innbygging og fasadeendringer

Utførelse av konstruksjonsarbeid for tiltaket

Fasade Vegger

🧱 Tre

Innbygging av innhuk på terrasse, ny vegg for større stue

Innbygging av terrasseinnhuk som ny vegg i stue, med tilhørende fasadeendringer

Riving Boder

Antall: 2

Riving av to utvendige boder, hvorav en er del av boligen

Riving av to boder, en frittstående og en integrert i boligen

Vinduer Fasadevindu

🧱 Tre/Glass

Antall: 2

To nye større vinduer på fasade øst

Nye større vinduer som del av fasadeendring på østfasade

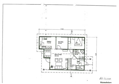
Plantegning

Enebolig 153.2 m²

Etasje 1 85.1 m²

Rom Areal Vinduer Dører
Kjøkken Kjøkken 11.5 m² 0 2
Sov/Disp. Sov/Disp. 8.4 m² 1 1
Sov Sov 11.3 m² 0 1
Stue Stue m/ trapp 35.4 m² 2 2
Bad/Vask Bad/Vask 5.6 m² 0 1
Entre Entre 3.1 m² 1 2
Bod Bod 1.8 m² 0 1
Stue/eks 101 29.0 m² 3 2
Kjøkken/eks 102 11.8 m² 1 1
Sov/eks 103 8.5 m² 2 1
Sov/eks 104 11.9 m² 2 1
Bad/eks 105 5.7 m² 1 1
Entre/eks 106 8.3 m² 0 2
TEK/BOD 107 1.9 m² 0 1
Vf/eks 108 4.0 m² 1 1
Ute rom 109 10.2 m² 1 1
Platting på terreng 110 46.8 m² 0 0
Platting på terreng 111 46.8 m² 0 0
Platting på terreng 112 2.8 m² 0 0

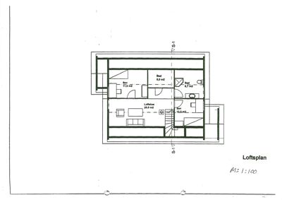
Etasje 3 68.1 m²

Rom Areal Vinduer Dører
Loftstue 301 25.5 m² 0 1
Sov 302 12.5 m² 0 1
Bad 303 8.7 m² 0 1
Bod 304 8.0 m² 0 1
Sov 305 11.9 m² 0 1

Fasader

Enebolig

Ukjent
Taktype
Saltak
Vinduer
5
Dører
1
Synlige etasjer
2
Øst
Materiale
Tre
Taktype
Saltak
Høyde
2.7 m
Mønehøyde
8.2 m
Vinduer
5
Dører
1
Synlige etasjer
2
Nord
Materiale
Tre
Taktype
Saltak
Takmat.
Tegl
Høyde
2.7 m
Mønehøyde
8.3 m
Vinduer
2
Dører
1
Synlige etasjer
2
Vest
Materiale
Tre
Taktype
Saltak
Høyde
2.8 m
Mønehøyde
5.6 m
Vinduer
4
Dører
1
Synlige etasjer
2
Sør
Materiale
Tre
Taktype
Saltak
Takmat.
Tegl
Høyde
3.1 m
Mønehøyde
5.0 m
Vinduer
2
Dører
0
Synlige etasjer
2
Syd
Materiale
Tre
Taktype
Saltak
Vinduer
2
Dører
1
Synlige etasjer
2

Hendelser

14.04.2026 Søknad om ferdigattest - innbygging av terrasse og fasadeendringer - gbnr 17/117 - Ekornveien 35, Hokksund
05.11.2025 Godkjenning - Ett-trinns søknad - Innbygging av terrasse og fasadeendringer - gbnr 17/117 - Ekornveien 35, Hokksund
30.10.2025 Oppdaterte tegninger - Fasadeendring - tilbygg og riving av boder - gbnr 17/117
30.10.2025 Svar på nytt mangelbrev - Fasadeendring - tilbygg og riving av boder - gbnr 17/117
23.10.2025 Søknaden er fremdeles mangelfull - Innbygging av terrasse og fasadeendringer - gbnr 17/117 - Ekornveien 35, Hokksund
21.10.2025 Svar på mangelbrev - Fasadeendring - tilbygg og riving av boder - gbnr 17/117
17.10.2025 Mangelbrev - Innbygging av terrasse og fasadeendringer - gbnr 17/117 - Ekornveien 35, Hokksund
14.10.2025 Ett-trinns søknad - fasadeendring - tilbygg og riving av boder - gbnr 17/117 - Ekornveien 35, Hokksund