Extension Soeknad Enebolig

Tilbygg og fasadeendring på enebolig, Evenrudvegen 9

📍 Evenrudvegen 9 , 2849 KAPP

Nøkkelinfo

Sakstype
Tilbygg
Bygningstype
Enebolig
Bruksareal
120 m²
Boenheter
1
Kommune
Østre Toten
Fylke
Innlandet
Gnr / Bnr
100 / 72
Saksnummer
2026/1891
Fase
Søknad

Om byggesaken

Ny tilbygg med garasje på plan 1 og boligdel i kjeller på østsiden av eksisterende enebolig. Heving av tak på eksisterende bolig på vestsiden og utvidelse av terrasse. Fasadeendring med ny trekledning og endring av vinduer i flere fasader. Garasje på 24 m² med to vinduer og en dør. Totalt areal på 120,5 m² i første etasje med rom som stue, kjøkken, soverom, kontor, bad, vaskerom og gang. Bygget har saltak og pipe, og fasadene er i tre med flere balkonger og dører.

Produkter og materialer

Tak Saltak

🧱 Tre/standard takmaterialer

Heving av tak på eksisterende bolig, saltak på tilbygg

Takarbeid med heving og ny saltaksløsning

Trapper Innvendig trapp

Antall: 1

Innvendig trapp til kjeller og etasje

Trapp mellom etasjer i bolig

Dører Ytterdører og garasjedør

Antall: 7

Dører i fasader og garasje, inkludert garasjeport

Ytterdører til bolig og garasjeport

Terrasse Utvidet terrasse

Utvidelse av eksisterende terrasse

Terrasseutvidelse på bolig

Garasjeport Garasjeport

Antall: 1

Garasjeport på tilbyggs garasje

Port til garasje på 24 m²

Tømrer Bygningskonstruksjon

🧱 Tre

Bæring og konstruksjon av tilbygg og takheving

Tømrerarbeid for tilbygg, takheving og fasadeendring

Grunnarbeid Fundamentering og grunnmur

Grunnarbeid for tilbygg og garasje

Fundamentering og grunnmur for tilbygg og garasje

Vinduer Fasadevindu

Antall: 14

Endring av vinduer i fasader, totalt 14 vinduer i ulike rom og fasader

Nye og endrede fasadevinduer i tre og tilbygg

Pipe Eksisterende pipe

Antall: 1

Pipe beholdes og påvirker plassering av kjøkken

Eksisterende pipe i bolig

Fasade Trekledning

🧱 Tre

Ny trekledning på fasader øst, vest, sør og nord

Trekledning for fasadeendring på eksisterende bolig og tilbygg

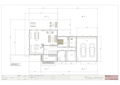
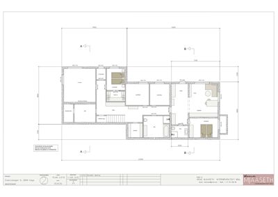
Plantegning

Enebolig 120.5 m²

Etasje 1 120.5 m²

Rom Areal Vinduer Dører
Stue 101 35.2 m² 3 2
Kjøkken 102 12.8 m² 1 1
Soverom 103 14.5 m² 1 1
Kontor 104 9.2 m² 1 1
Gang 105 8.5 m² 0 3
Bad 106 6.4 m² 0 1
Vaskerom 107 7.8 m² 1 1
Garasje 108 24.0 m² 2 1

Etasje 0 0.0 m²

Rom Areal Vinduer Dører
Teknisk rom 001 0.0 m² 0 1
Bod 002 0.0 m² 0 1
Gang 003 0.0 m² 0 2
Vinrom 004 0.0 m² 0 1
Matbod 005 0.0 m² 0 1
Bad 006 0.0 m² 0 1
Bad 007 0.0 m² 0 1

Fasader

Enebolig

Øst
Materiale
Tre
Taktype
Saltak
Vinduer
2
Dører
0
Balkonger
1
Synlige etasjer
2
Vest
Materiale
Tre
Taktype
Saltak
Vinduer
3
Dører
0
Balkonger
1
Synlige etasjer
2
Sør
Materiale
Tre
Taktype
Saltak
Vinduer
4
Dører
1
Synlige etasjer
1
Nord
Materiale
Tre
Taktype
Saltak
Vinduer
8
Dører
2
Balkonger
1
Synlige etasjer
2

Hendelser

20.04.2026 Gbnr 100/72 - Evenrudvegen 9 - Bestilling av forhåndskonferanse