Extension Ferdigattest Enebolig

Tilbygg med bi-leilighet og bruksendring i Fembøringveien 3, Bodø

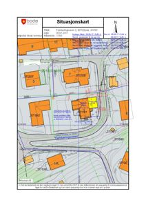
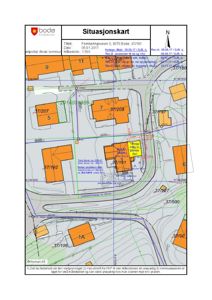
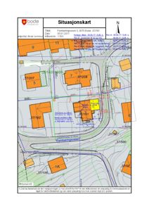
📍 Fembøringsveien 3 , 8070 BODØ

Nøkkelinfo

Sakstype
Tilbygg
Bygningstype
Enebolig
Bruksareal
221 m²
Boenheter
2
Kommune
Bodø
Fylke
Nordland - Nordlánnda
Gnr / Bnr
37 / 191
Saksnummer
2018/778
Fase
Ferdigattest

Om byggesaken

Ny bolig med tilbygg og bi-leilighet i kjeller på eiendommen Fembøringveien 3 i Bodø. Tilbygget omfatter garasje, vaskerom og entre på hovedplan med et samlet bruksareal på ca. 60,5 m², mens bi-leiligheten i kjeller har et bruksareal på 64,5 m². Kjelleren er delvis utgravd og tilpasses med isolerte vegger, nye vinduer og lydhimling. Det er etablert utvendig trapp som adkomst til bi-leiligheten. Bygget har saltak og trepanel som fasademateriale. Det er også etablert balkong/terrasse på hovedplan. Prosjektet inkluderer universell utformingstiltak i hovedleiligheten, men bi-leiligheten har unntak fra krav til trinnfri adkomst og full etasjehøyde på grunn av uforholdsmessige kostnader. Det foreligger dispensasjoner for byggegrenser mot vei og VA-ledninger. Prosjektet har gjennomgått full byggesaksbehandling med tillatelse, midlertidig brukstillatelse og søknad om ferdigattest, men ferdigattest er foreløpig ikke gitt pga. manglende dokumentasjon.

Produkter og materialer

Vinduer Fasadevindu

🧱 Tre

Antall: 14

Vinduer tilpasset for lys og rømningskrav, glassmål uten karm, inkludert større vinduer i stue bi-leilighet med terrengjustering

Nye og større vinduer i bi-leilighet og hovedleilighet, tilpasset dagslysfaktor og rømningskrav

Elektro Elektrisk anlegg

Elektrisk anlegg i tilbygg og bi-leilighet, inkludert varmekabler i gulv

Elektrisk installasjon og varmekabler i nye rom

Fasade Trepanel

🧱 Tre

Trepanel på fasader mot vest, sør og nord, med saltak

Trepanel som fasademateriale på tilbygget og eksisterende bolig

Rekkverk Rekkverk på terrengtrapp

🧱 Impregnert tre

Rekkverk på utvendig terrengtrapp, høyde ca. 1000 mm

Sikkerhetsrekkverk på utvendig trapp til bi-leilighet

Gulv Betonggulv med isolasjon

🧱 Betong, isolasjon 100 mm

Nytt betonggulv med isolasjon i kjeller og tilbygg, inkl. finavretting og brettskuring

Isolert betonggulv i kjellerleilighet og tilbygg

Garasjeport Garasjeport

Antall: 1

Garasjeport i tilbygg, tilpasset garasje på 26,5 m²

Garasjeport for ny garasje i tilbygget

Dører Ytterdør

🧱 Tre

Antall: 6

Ytterdører til hovedleilighet, bi-leilighet, garasje og bod, inkludert dør til balkong/terrasse

Ytterdører for adkomst til hoved- og bi-leilighet, samt garasje og bod

Betong Fundament og plate på mark

🧱 Betong

Plate på mark for garasje og fundamentering nær vann- og avløpsledninger, stripefundamenter for terrengtrapp

Betongfundamentering for garasje og utvendig trapp

Terrasse Balkong/terrasse

Antall: 1

Balkong/terrasse på ca. 20 m² på hovedplan

Utendørs balkong/terrasse tilknyttet hovedleilighet

Isolasjon Ytterveggsisolasjon

🧱 Isolasjon 20 cm tykkelse

Tilleggsisolering av yttervegger i tilbygg og bi-leilighet

Isolasjon for yttervegger i tilbygget og kjellerleilighet

VVS Våtrom

Nye våtrom i tilbygg og bi-leilighet, inkludert bad, wc og vaskerom

Våtromsanlegg i tilbygg og bi-leilighet

Trapper Utvendig terrengtrapp

🧱 Tre og betong

Antall: 1

Terrengtrapp med betong stripefundamenter, forstøtningsmurer, impregnert tretrapp med rekkverk, bredde ca. 1,1 m

Utvendig trapp som adkomst til bi-leilighet i kjeller

Tak Saltak

Saltak på eksisterende bolig og tilbygget

Saltak på hele bygningsmassen

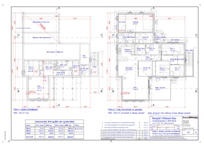
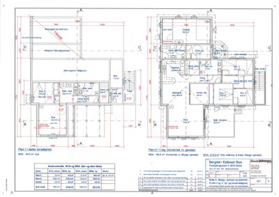
Plantegning

Enebolig 285.5 m²

Etasje 0 64.5 m²

Rom Areal Vinduer Dører
Stue 101 18.0 m² 3 1
Sov. 1 102 10.5 m² 1 1
Kjøk., spis. 103 5.5 m² 0 0
Bad, vask 104 4.1 m² 0 0
Gang, entré 105 7.0 m² 0 2
Gard. (vf) 106 3.8 m² 0 0
Adk. leil. 107 4.0 m² 0 1
Bod 108 7.5 m² 0 1

Etasje 1 156.5 m²

Rom Areal Vinduer Dører
Stue 201 24.5 m² 3 1
Spisesjue 202 13.6 m² 0 0
Kontor, div. 203 8.6 m² 1 1
Sov. 1 204 10.8 m² 1 1
Sov. 2 205 10.2 m² 1 1
Sov. 3 206 6.6 m² 1 1
Gang 207 7.3 m² 0 4
Gang, lek 208 7.2 m² 0 1
Gang, gard. 209 4.7 m² 0 1
Kjøkken 210 9.6 m² 0 0
Vask, bad 211 7.2 m² 0 0
Entré, vf. 212 7.4 m² 0 1
Bad, wc. 213 7.1 m² 0 0
Garasje 214 26.5 m² 0 1
Repo 215 3.3 m² 0 0
Balk., terrasse 216 20.0 m² 0 0
Stue Stue 24.5 m² 4 1
Spisestue Spisesjue 13.6 m² 0 1
Kontor/divisjon Kontor, div. 8.6 m² 0 1
Soverom 1 Sov. 1 10.8 m² 1 1
Soverom 2 Sov. 2 10.2 m² 1 1
Soverom 3 Sov. 3 6.6 m² 1 1
Gang Gang 7.3 m² 0 2
Gang/garderobe Gang, gard. 4.7 m² 0 1
Kjøkken Kjøkken 9.6 m² 0 1
Bad/toalett Bad, wc. 7.1 m² 0 1
Entré/vaskerom Entré, vf. 7.4 m² 0 1
Vaskerom/bad sluse Vask, bad (sluse) 7.2 m² 0 1
Gang/lekerom Gang, lek 7.2 m² 0 1
Balcony/Terrasse Balk., terrasse 20.0 m² 0 1
Garasje Garasje 26.5 m² 0 1
Bod (eventuelt) (evt. bod) 3.3 m² 0 1
Reposisjon/oppbevaring Repo 3.3 m² 0 1

Etasje -1 64.5 m²

Rom Areal Vinduer Dører
Stue Stue 18.0 m² 3 1
Soverom 1 Sov. 1 10.5 m² 1 1
Kjøkken/spisestue Kjøk., spis. 5.5 m² 0 1
Bad/vaskerom Bad, vask 4.1 m² 0 1
Gang/Entré Gang, entré 7.0 m² 0 2
Bod Bod 7.5 m² 1 1
Garderobe Gard. 3.8 m² 0 1
Aldersleilighet Adk. leil. 4.0 m² 0 1

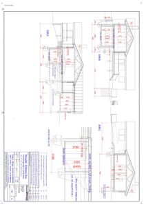
Fasader

Enebolig

Vest
Materiale
Tre
Taktype
Saltak
Vinduer
6
Dører
1
Balkonger
1
Synlige etasjer
2
Sør
Materiale
Tre
Taktype
Saltak
Vinduer
3
Dører
1
Balkonger
1
Synlige etasjer
2
Nord
Materiale
Tre
Taktype
Saltak
Vinduer
3
Dører
1
Synlige etasjer
1

Hendelser

16.06.2025 Avvisning av søknad om ferdigattest
26.02.2025 Klage på byggherre Gunnvald Johansen på grunn av manglende ferdigattest på ferdig bygg.
14.01.2025 Forespørsel om hjelp for å få ferdigattest
22.10.2024 Foreløpig svar - dere må sende inn flere opplysninger
29.05.2024 Ettersendte dokumenter - Søknad om ferdigattest
22.04.2024 Foreløpig svar - 2018/778
11.04.2024 Behov for søknad om ferdigattest - Fembøringveien 3, 8070 Bodø - gbnr. 37/191
11.04.2024 Søknad om ferdigattest
31.01.2022 Purring på ferdig stillelse av tiltaket
15.11.2021 Manglende ferdigstillelse
26.11.2020 Midlertidig brukstillatelse
12.11.2020 Søknad om midlertidig brukstillatelse
07.05.2020 Midlertidig brukstillatelse
20.12.2019 Kontrollerklæring
09.12.2019 Foreløpig svar
06.12.2019 Søknad om midlertidig brukstillatelse
15.03.2018 Tillatelse
15.03.2018 Søknad om unntak fra Byggeteknisk forskrift iht. Pbl. § 31-2 - for ny bileilighet
15.03.2018 Bygningsspesifikasjon matrikkel
12.02.2018 Foreløpig svar
09.02.2018 Supplering av søknad
24.01.2018 Søknad om tillatelse i ett trinn