Extension Soeknad Enebolig

Tilbygg til enebolig i Fredbo alle 20, Porsgrunn

📍 Fredbo alle 20 , 3919 PORSGRUNN

Nøkkelinfo

Sakstype
Tilbygg
Bygningstype
Enebolig
Bruksareal
32 m²
Boenheter
1
Kommune
Porsgrunn
Fylke
Telemark
Gnr / Bnr
121 / 651
Saksnummer
2026/4481
Fase
Søknad

Om byggesaken

Ny tilbygg på 32 m² til eksisterende enebolig i Fredbo alle 20, Porsgrunn, med to nye rom som skal benyttes til stue/kjøkken og soverom. Tilbygget får samme byggehøyde som eksisterende bolig og er plassert med 2,5 meters avstand til nabogrense. Bygget oppføres i trekonstruksjon med flatt og saltak, og inkluderer nødvendige branntekniske tiltak. Eiendommene Gnr 121 Bnr 651 og 835 er sammenslått for å muliggjøre tiltaket. Det eksisterer flere vinduer og dører i fasadene, og det er pipe i bygget. Arealet på tomten er 771 m², og samlet bebygd areal etter tilbygg blir 196 m².

Produkter og materialer

Dører Ytterdører

Antall: 4

Dører i fasader vest (1), sør (1), nord (1), øst (1)

Ytterdører til tilbygg og eksisterende bygg

VVS Vann og avløp

Tilknytning til offentlig vann og avløp, ingen konflikt med eksisterende ledninger

VVS-installasjoner for tilbygg

Grunnarbeid Grunn- og terrengarbeider

Utføres av JIH Graveservice AS, inkludert grunnarbeid for tilbygg

Grunnarbeid og terrengarbeid for tilbygg

Gulv Innvendige gulv

Ikke spesifisert, men nødvendig for tilbyggets innvendige rom

Gulvbelegg og underlag i tilbygg

Tømrer Bygging av tilbygg

Oppføring av tilbygg med stue/kjøkken og soverom, inkludert bjelker, isolasjon og kledning

Tømrerarbeid for tilbygg

Tak Flatt tak og saltak

Tilbygg har flatt tak og saltak i henhold til fasadetegninger

Taktekking for tilbygg med flatt tak og saltak

Pipe Murt pipe

🧱 Mur

Antall: 1

Eksisterende pipe i bygget, også berørt av tilbygg

Pipe i tilknytning til tilbygg

Vinduer Fasadevindu

🧱 Tre eller aluminium (ikke spesifisert)

Antall: 7

Vinduer i fasader vest (3), sør (3), nord (4), øst (1) - totalt 11 vinduer i eksisterende og tilbygg

Vinduer til tilbygg og eksisterende fasade

Elektro Elektrisk installasjon

Elektriske installasjoner i tilbygg, ikke detaljert spesifisert

Elektroarbeid for tilbygg

Brannvern Branntekniske tiltak

Branntekniske tiltak for å sikre at tilbygg ikke begrenser naboeiendommens utnyttelse

Branntekniske tiltak i tilbygg

Fasade Trekledning

🧱 Tre

Tilbygg i trekonstruksjon med samme materialbruk som eksisterende fasade

Trekledning for tilbyggets yttervegger

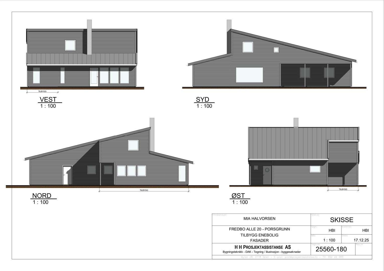
Fasader

Enebolig

Vest
Materiale
Tre
Taktype
Flatt tak
Vinduer
3
Dører
1
Balkonger
1
Synlige etasjer
2
Sør
Materiale
Tre
Taktype
Saltak
Vinduer
3
Dører
1
Synlige etasjer
1
Nord
Materiale
Tre
Taktype
Saltak
Vinduer
4
Dører
1
Synlige etasjer
1
Øst
Materiale
Tre
Taktype
Flatt tak
Vinduer
1
Dører
1
Synlige etasjer
2

Hendelser

21.04.2026 Gbnr. 121/651 og 121/835, Fredbo alle 20 - Søknad om oppføring av tilbygg
21.04.2026 Svar angående søknad om oppføring av tilbygg - gbnr. 121/651 og 121/835, Fredbo alle 20
16.04.2026 Søknad om tillatelse i ett trinn - Gbnr. 121/651, Fredbo alle 20