Extension Soeknad Enebolig

Tilbygg med garasje til enebolig i Friheimvegen 1, Bø

📍 Friheimvegen 1 , 3803 BØ I TELEMARK

Nøkkelinfo

Sakstype
Tilbygg
Bygningstype
Enebolig
Bruksareal
76 m²
Boenheter
1
Kommune
Midt-Telemark
Fylke
Telemark
Gnr / Bnr
28 / 19
Saksnummer
26/6928
Fase
Søknad

Om byggesaken

Ny tilbygg på 76,25 m² med garasje på eiendommen Friheimvegen 1 i Bø. Tilbygget er planlagt som en forlengelse av eksisterende enebolig, med arkitektur tilpasset eksisterende bebyggelse. Garasjen har pulttak med teglstein, og tilbygget har saltak med teglstein. Bygget er i tre og inkluderer blant annet carport og bodarealer. Prosjektet omfatter grunnarbeider, plasstøpte konstruksjoner og tømrerarbeid. Det er registrert en automatisk fredet gravhaug på eiendommen, men tilbygget berører ikke denne eller sikringssonen rundt. Det er etablert ansvarlige foretak for prosjektering og utførelse, og tiltaket er under søknadsbehandling.

Produkter og materialer

Dører Ytterdører og garasjeport

🧱 Tre og metall

Antall: 9

Ytterdører og garasjeport i tre og metall, inkludert carportdør

Dører til tilbygget, garasje og carport

Tømrer Trekonstruksjoner for tilbygg og garasje

🧱 Tre

Tømrerarbeid og montering av trekonstruksjoner utført av MIDT-TELEMARK BYGG AS

Bygging av tilbygg og garasje i trekonstruksjoner

Elektro Elektriske installasjoner

Elektriske installasjoner for belysning og strøm i tilbygget og garasje

Grunnarbeid Drenering

Drenering rundt tilbygget og garasje for å sikre god grunnforhold

Grunnarbeid med drenering

Vinduer Fasadevindu i tre

🧱 Tre

Antall: 25

Totalt 25 vinduer fordelt på eksisterende bygg og tilbygg, trevinduer i ulike fasader

Vinduer til tilbygget og eksisterende bygg

VVS Ingen innlagt vann

Bygningen skal ikke ha innlagt vann, ingen VVS-installasjoner planlagt

Ingen vann- eller avløpsinstallasjoner i tilbygget

Fasade Trepanel

🧱 Tre

Fasade i trepanel som matcher eksisterende bygg

Utvendig kledning på tilbygget og garasje

Gulv Innvendige gulvflater

Innvendige gulv i tilbygget og eksisterende bygg, antatt standard boligmaterialer

Overflater Innvendige vegg- og takflater

Innvendige overflater i tilbygget, antatt standard boligmaterialer

Tak Saltak og pulttak med teglstein

🧱 Teglstein

Saltak på tilbygget og pulttak på garasje med teglstein som takmateriale

Taktekking for tilbygget og garasjen

Betong Plasstøpte konstruksjoner

🧱 Betong

Plasstøpte konstruksjoner utført av GROVEN OG KARLSEN AS

Fundamenter og bærende konstruksjoner i betong

Garasjeport Garasjeport i tre/metall

🧱 Tre/metall

Antall: 1

Garasjeport på tilbygget garasje

Port for biloppstilling i garasje

Grunnarbeid Grunnarbeider og oppmåling

Oppmåling av grenser, grunnarbeider utført av GROVEN OG KARLSEN AS

Grunnarbeid for fundamentering og oppmåling av tomt

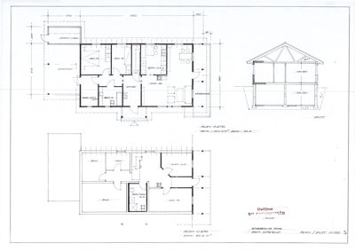
Plantegning

Enebolig 180.0 m²

Etasje 1 94.4 m²

Rom Areal Vinduer Dører
Stue 101 32.0 m² 2 1
Kjøkken 102 10.5 m² 0 1
Sov. 1 103 12.0 m² 1 1
Sov. 2 104 12.0 m² 1 1
Sov. 3 105 12.0 m² 1 1
Bad 106 6.0 m² 0 1
Entré 107 4.0 m² 0 1
Gang 108 4.0 m² 0 0
Veranda 109 0.0 m² 0 1
Carport 110 0.0 m² 0 1

Etasje 0 85.6 m²

Rom Areal Vinduer Dører
Bod 001 15.0 m² 0 1
Bod 002 15.0 m² 0 1
Bod 003 15.0 m² 0 1
Bod 004 15.0 m² 0 1
Bad/Vask 005 6.5 m² 0 1
Disp. 006 9.5 m² 0 1
Sov. 1 007 14.0 m² 1 1

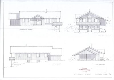
Fasader

Enebolig

Nord
Materiale
Tre
Taktype
Saltak
Takmat.
Tegl
Vinduer
5
Dører
1
Balkonger
1
Synlige etasjer
1
Vest
Materiale
Tre
Taktype
Flatt tak
Vinduer
4
Dører
1
Balkonger
1
Synlige etasjer
1
Sødvest
Materiale
Tre
Taktype
Saltak
Vinduer
4
Dører
1
Balkonger
1
Synlige etasjer
1
Sørdøst
Materiale
Tre
Taktype
Saltak
Vinduer
6
Dører
1
Balkonger
1
Synlige etasjer
2
Nordøst
Materiale
Tre
Taktype
Saltak
Vinduer
4
Dører
0
Balkonger
1
Synlige etasjer
1
Nordvest
Materiale
Tre
Taktype
Saltak
Vinduer
2
Dører
1
Synlige etasjer
1

Garasje

Vest
Materiale
Tre
Taktype
Pulttak
Takmat.
Tegl
Vinduer
0
Dører
1
Synlige etasjer
1

Hendelser

17.04.2026 Bevaring av anlegg
17.04.2026 Oversender søknad til uttalelse - gbnr. 28/19 - Friheimvegen 1 - Tilbygg til bolig
13.04.2026 Tilbygg i forhold til vassledning
16.03.2026 Søknad om tillatelse i ett trinn 28/19 Friheimvegen 1