Extension Igangsettingstillatelse Enebolig

Tilbygg, støttemurer og bruksendring på Gamle Foldnesvegen 96, Øygarden

📍 Gamle Foldnesvegen 96 , 5354 STRAUME

Nøkkelinfo

Sakstype
Tilbygg
Bygningstype
Enebolig
Bruksareal
274 m²
Boenheter
1
Kommune
Øygarden
Fylke
Vestland
Gnr / Bnr
36 / 435
Saksnummer
24/9197
Fase
Igangsettingstillatelse

Om byggesaken

Prosjektet omfatter oppføring av et tilbygg på 92 m² BYA til en eksisterende enebolig på Gamle Foldnesvegen 96, med samlet bruksarealøkning på 94 m². Det inkluderer også oppføring av støttemurer med høyder mellom 2 og 4 meter, opparbeidelse av uteareal, bruksendring fra tilleggsdel til hoveddel i underetasje og på loft, samt fasadeendringer med endret vindus- og dørplassering, innsetting av takvinduer, utskifting av kledning og fjerning av pipe. Bygningen har 1 trapp og består av kjeller, 1. etasje og loft med flere soverom, bad, bod og stue/kjøkken. Tiltaket innebærer også oppgradering av uteareal med tilpassede støttemurer i et skrånende terreng, og tilrettelegging for parkering med 2 biloppstillingsplasser. Det er gitt dispensasjoner for plankrav, utnyttelsesgrad og murhøyder, med vilkår om branntekniske løsninger og sikring av siktsoner ved avkjørsel. Prosjektet har gjennomgått omfattende saksbehandling med flere suppleringer og godkjennelser, og er i igangsettingsfase.

Produkter og materialer

VVS Vann og avløp

Tilknytning til offentlig vann og avløp, avtale om privat pumpeanlegg

Tilknytning til offentlig vann- og avløpsnett med privat pumpeanlegg for økt belastning

Fasade Kledning

🧱 Tre

Utskifting av kledning på fasade

Ny kledning på fasade i forbindelse med fasadeendring

Grunnarbeid Drenering

Drensrør, knotteplast og etterisolering av grunnmur

Drenering og fuktsikring av grunnmur med drensrør og knotteplast

Maling Innvendig og utvendig maling

Maling av fasade og innvendige flater i forbindelse med fasadeendring og oppgradering

Maling av nye og eksisterende flater

Terrasse Opparbeidet uteareal

🧱 Skiferheller og planert uteareal

Opparbeidet uteareal med planering og skiferheller, ikke markterrasse

Opparbeidelse av uteareal med planering og belegning

Mur Støttemurer

🧱 Betong

Antall: 4

Støttemurer med høyde opptil 4 meter, delvis under terreng

Oppføring av støttemurer for opparbeidelse av uteareal i skrånende terreng

Vinduer Fasadevindu

🧱 Tre

Antall: 17

Endret plassering og utskifting av fasadevindu

Nye og flyttede fasadevindu i tilbygg og eksisterende fasade

Gulv Innvendige gulv

Oppgradering og etterisolering i tilbygg og eksisterende bygg

Nye gulvflater i tilbygg og oppgraderte gulv i eksisterende bygg

Fasade Pipe

Antall: 1

Fjerning av pipe

Fjerning av eksisterende pipe i fasadeendring

Vinduer Takvinduer

🧱 Tre/aluminium

Antall: 4

Innsetting av takvinduer i loftsetasje

Nye takvinduer for økt lysinnslipp i loftsetasje

Dører Ytterdører

🧱 Tre

Antall: 6

Endret plassering av ytterdører i fasadeendring

Nye ytterdører i fasadeendring og tilbygg

Trapper Innvendig trapp

🧱 Tre

Antall: 1

Intern trapp mellom 1. og 2. etasje

Ny intern trapp for tilkomst mellom etasjer etter endring fra to boenheter til en boenhet

Tømrer Bygningskonstruksjon

🧱 Tre

Oppføring av tilbygg, fasadeendring og innvendige endringer

Tømrerarbeider for tilbygg, fasade og innvendige konstruksjoner

Garasjeport Mulig fremtidig garasje

Antall: 1

Mulig plassering av fremtidig garasje på 50 m² vist på situasjonskart

Planlagt parkeringsareal for fremtidig garasje

Elektro Belysning og el-installasjon

Oppgradering i forbindelse med tilbygg og bruksendring

Elektriske installasjoner i tilbygg og eksisterende bygg

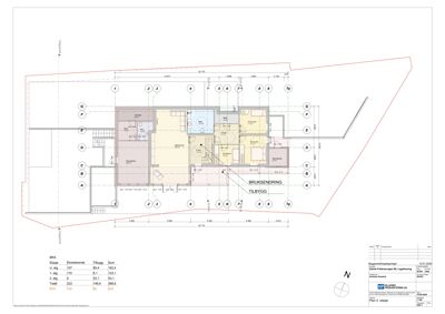
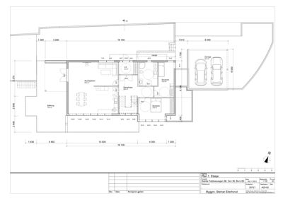
Plantegning

Enebolig 273.1 m²

Etasje 0 220.0 m²

Rom Areal Vinduer Dører
Sport/redskap 001 22.9 m² 3 1
Bod 002 6.3 m² 0 1
Bod 003 6.8 m² 0 1
WC 004 4.3 m² 0 1
Stue/kjøkken 005 46.0 m² 3 1
V.F. 006 10.2 m² 1 1
Bad 007 11.1 m² 0 1
WC 008 1.5 m² 0 1
Gang 009 8.8 m² 0 4
Bod 010 4.4 m² 0 1
Soverom 011 8.3 m² 1 1
Soverom 012 21.4 m² 1 1
Soverom 013 11.0 m² 1 1
Bod 014 5.4 m² 0 1

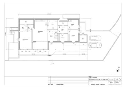
Etasje 2 53.1 m²

Rom Areal Vinduer Dører
Soverom 201 15.0 m² 1 1
Bad 202 3.7 m² 0 1
Bod 203 4.1 m² 0 1
Lofthus 204 14.2 m² 0 0
Soverom 205 10.5 m² 1 1

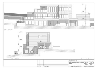
Fasader

Enebolig

Nord
Materiale
Tre
Taktype
Flatt tak
Takmat.
Tegl
Høyde
2.5 m
Mønehøyde
3.2 m
Vinduer
4
Dører
1
Synlige etasjer
1
Vest
Materiale
Tre
Taktype
Saltak
Takmat.
Tegl
Høyde
2.7 m
Mønehøyde
3.2 m
Vinduer
1
Dører
1
Balkonger
1
Synlige etasjer
1
Øst
Materiale
Tre
Taktype
Saltak
Takmat.
Tegl
Høyde
2.5 m
Mønehøyde
3.2 m
Vinduer
1
Dører
1
Synlige etasjer
1
Sør
Materiale
Tre
Taktype
Saltak
Høyde
4.2 m
Mønehøyde
6.0 m
Vinduer
6
Dører
0
Synlige etasjer
1

Hendelser

17.11.2025 GBNR 36/435 - Tilbakemelding om manglar
17.11.2025 GBNR 36/435 - Supplering av søknad
28.10.2025 GBNR 36/435 - Søknad om igangsetjingsløyve
09.09.2025 GBNR 36/435 - Vedtak til klagevurdering
08.09.2025 GBNR 36/435 - Rammeløyve og dispensasjon - oppføring av tilbygg og støttemurar, bruksendring og fasadeendring
28.08.2025 GBNR 36/435 - Supplering av søknad
19.08.2025 GBNR 36/435 - Supplering av søknad
08.07.2025 GBNR 36/435 - Tilbakemelding om manglar - støttemurar
26.03.2025 GBNR 36/435 - Oversender søknad til uttale
19.03.2025 GBNR 36/435 - Supplering av søknad
13.02.2025 GBNR 36/435 - Tilbakemelding om manglar og status i saka
04.02.2025 GBNR 36/435 - Søknad om rammeløyve
22.05.2024 GBNR 36/435 - Referat frå førehandskonferanse
10.05.2024 GBNR 36/435 - Tilbakemelding på innkallingsbrev
08.05.2024 GBNR 36/435 - Innkalling til førehandskonferanse
23.04.2024 GBNR 36/435 - Oppmoding om førehandskonferanse