Extension Ferdigattest Enebolig

Tilbygg og bruksendring av kjeller med terrasse, Gamle Narudveg 33

📍 Gamle Narudveg 33 , 2383 BRUMUNDDAL

Nøkkelinfo

Sakstype
Tilbygg
Bygningstype
Enebolig
Bruksareal
214 m²
Boenheter
1
Kommune
Ringsaker
Fylke
Innlandet
Gnr / Bnr
31 / 216
Saksnummer
24/13009
Fase
Ferdigattest

Om byggesaken

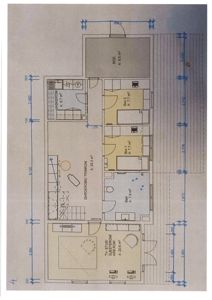
Ny terrasse på 41 m² bygges som erstatning for eksisterende terrasse med skjermtak, med full sokkel under og heving til 1. etasje. Kjelleren i eneboligen på Gamle Narudveg 33 er ombygget fra bod- og garasjeareal til oppholdsrom med garderobe, to soverom, bad og stue. Kjellerrommene er isolert og oppgradert med nye vinduer som tilfredsstiller rømningskrav, vannbåren gulvvarme og nytt bad med fliser og baderomsinnredning. Det er satt inn ny trapp mellom etasjene og foretatt nødvendige konstruksjonsforsterkninger. Utvendig er det etablert lyskasser under verandaen. Bygget har saltak og trekledning, og vinduer og dører er tilpasset eksisterende åpninger.

Produkter og materialer

Tømrer Innvendige vegger og konstruksjoner

🧱 Stenderverk

Oppføring av nye vegger, lukking av tidligere døråpninger, og tilpasning av dører i kjeller

Innvendige konstruksjoner for rominndeling i kjeller

Maling Innvendig vegg- og takmaling

🧱 Walls-2 paint plater

Maling av vegger med Walls-2 paint plater, takessplater i tak

Overflatebehandling innvendig i kjeller og tilbygg

Isolasjon Innvendig isolasjon av kjellervegger

🧱 Isoporplater

Innvendig isolasjon med isoporplater og Walls-2 paint plater på vegger, takessplater i tak

Fuktsikring og isolasjon av kjellerrom

Fasade Terrasse

🧱 tre

Antall: 1

Ny terrasse på 41 m² med full sokkel under og heving til 1. etasje, riving av eksisterende terrasse med skjermtak

Oppføring av ny terrasse med bærekonstruksjon og trapp, tilpasset eksisterende bolig

Vinduer Rømningsvinduer i kjeller

Nye vinduer som tilfredsstiller krav til rømningsvindu, inkludert doble balkongvinduer med sidevinduer i kjeller

Utskifting og utvidelse av vindusåpninger i kjeller for oppholdsrom og rømningsveier

Bad Bad i kjeller

Antall: 1

Bad med fliser på gulv, takessplater i tak, baderomsplater på vegger, veggmontert dusjhjørne, toalett, badekar og baderomsinnredning

Fullt utstyrt bad i kjeller

Gulv Vannbåren gulvvarme i kjeller og bad

Vannbåren gulvvarme installert i hele kjelleretasjen unntatt bod, og i bad i kjeller og 1. etasje

Varmefordeling i gulv for komfort og funksjon

Dører Innvendige dører i kjeller

Nye dører satt inn i eksisterende åpninger, blant annet dør fra garasje til kjellergang

Dører til soverom, bad, vaskerom og bod i kjeller

Betong Støpt grunnmur og etasjeskiller

🧱 Betong

Ny støpt grunnmur for tilbygg, støpte etasjeskillere i kjeller, utført av Strøm Entreprenør AS og Mjøs-Produkter AS

Fundament og bærende konstruksjoner for tilbygg og kjeller

VVS Vann- og avløpsinstallasjoner

Ny vannledning, oppgradert strømtilførsel, nytt avløpsrør fra bad i 1. etasje til kjellerbad, utført av Brumunddal Rør AS

Oppgradering av vann- og avløpssystem i forbindelse med bruksendring

Elektro Elektrisk anlegg og belysning

Elektrisk anlegg skjult i tak med spotter, ny strømkabel og inntakssikring, utført av KB Elektro AS

Elektrisk installasjon i kjeller og tilbygg

Trapper Innvendig trapp mellom etasjer

Antall: 1

Ny trapp installert for bedre integrasjon av kjeller som oppholdsrom, utført av Olstad Snekkerverksted AS

Trapp mellom kjeller og 1. etasje med nødvendige konstruksjonsforsterkninger

Fasader

Enebolig

Øst
Vinduer
6
Dører
1
Synlige etasjer
2
Nord
Materiale
Tre
Taktype
Saltak
Vinduer
3
Dører
1
Synlige etasjer
2
Sør
Materiale
Tre
Taktype
Saltak
Vinduer
0
Dører
0
Synlige etasjer
1
Vest
Materiale
Tre
Taktype
Saltak
Vinduer
0
Dører
0
Synlige etasjer
1

Hendelser

14.04.2026 Ferdigattest for bruksendring av kjeller og tilbygg terrasse - Gbnr. 31/216 - Gamle Narudveg 33 - Brumunddal
10.04.2026 Søknad om ferdigattest - Tilbygg og bruksendring, Gbnr 31/216, Gamle Narudveg 33, Brumunddal
03.09.2024 Tillatelse til bruksendring av kjeller til oppholdsrom samt rivning og nybygg terrasse - Gbnr. 31/216 - Gamle Narudveg 33 - Brumunddal
29.08.2024 Supplering av søknad, tegninger - Tilbygg og bruksendring, Gbnr 31/216, Gamle Narudveg 33, Brumunddal
19.08.2024 Søknad om tillatelse - Tilbygg og bruksendring, Gbnr 31/216, Gamle Narudveg 33, Brumunddal
16.08.2024 Søknad om tillatelse - Tilbygg og bruksendring, Gbnr 31/216, Gamle Narudveg 33, Brumunddal