Extension UnderBehandling Enebolig

Bruksendring og tilbygg på enebolig, Gjerivegen 27

📍 Gjerivegen 27 , 2022 GJERDRUM

Nøkkelinfo

Sakstype
Tilbygg
Bygningstype
Enebolig
Bruksareal
248 m²
Boenheter
1
Kommune
Gjerdrum
Fylke
Akershus
Gnr / Bnr
41 / 59
Saksnummer
2021/286
Fase
Under behandling

Om byggesaken

Prosjektet omfatter bruksendring av kjelleretasjen i en eksisterende enebolig samt oppføring av et tilbygg og terrasse. Kjelleretasjen på ca. 89,8 m² har fått endret planløsning med blant annet hobbyrom, soverom, bod, kjellerstue og bad. Tilbygget og terrassen er oppført med tilhørende terrengtilpasninger, inkludert levegg som fungerer som rekkverk og benk. Terrengarbeidene innebærer oppfylling og planering i et skrånende terreng med kvikkleirefare, noe som krever geoteknisk dokumentasjon og dispensasjon fra byggeforbud i LNF-område. Det er dokumentert at terrenget er delvis tilbakeført etter ulovlige inngrep, og det pågår behandling av søknader om endring av tillatelse og dispensasjon. Prosjektet har vært gjenstand for tilsyn, pålegg om retting og tvangsmulkt, men tiltakshaver har igangsatt tiltak for å bringe forholdene i orden. Bygget har saltak med tegl, trefasader og flere vinduer og dører fordelt på to etasjer med totalt ca. 248 m² BRA.

Produkter og materialer

Grunnarbeid Terrengfylling og tilbakeføring

Terrengfylling opp til 1,7 m høyde, delvis tilbakeført etter ulovlig oppfylling, geoteknisk vurdering kreves

Terrengarbeider i skrånende leirterreng med kvikkleirefare

Gulv Innvendige gulv

Innvendige gulv i kjeller og tilbygg

Elektro Elektriske installasjoner

Elektriske installasjoner i bolig

VVS Sanitærinstallasjoner

Sanitærinstallasjoner i kjeller og tilbygg

Fasade Trepanel

🧱 Tre

Antall: 4

Trepanel på alle fasader

Trepanel på fasader sør, vest, øst og nord

Dører Ytterdør og terrassedør

🧱 Tre

Antall: 9

Ytterdører og terrassedører i tre til kjeller og 1. etasje

Rekkverk Levegg på terrasse

🧱 Tre

Antall: 1

Levegg høyde 1,56 m, fungerer som benk og rekkverk

Rekkverk/levegger på terrasse for skjerming og sikkerhet

Tak Saltak med tegl

🧱 Tegl

Antall: 1

Saltak med teglstein, grå farge

Saltak med teglstein på eneboligen

Betong Fundamentering og avrettingslag

🧱 Betong

Ca. 50 tonn betong til fundamentering og avrettingslag under kjeller

Betongfundamentering for kjeller og tilbygg

Vinduer Fasadevindu

🧱 Tre

Antall: 14

Fasadevinduer i tre fordelt på kjeller og 1. etasje

Isolasjon Vegger og tak

Isolasjon i vegger og tak i tilbygg og kjeller

Tømrer Bindingsverk og murvegger uten puss

🧱 Tre og mur

Bindingsverk og murvegger uten puss i kjeller og tilbygg

Bærekonstruksjon for tilbygg og kjeller

Terrasse Platting på terreng

🧱 Tre

Antall: 1

Platting med levegg som fungerer som benk og rekkverk

Terrasse med platting og levegg nær nabogrense

Plantegning

Enebolig 248.3 m²

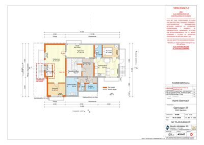
Etasje 0 89.8 m²

Rom Areal Vinduer Dører
Hobbyrom 001 27.0 m² 1 0
Soverom 002 8.7 m² 1 1
Bod m. vask 003 3.2 m² 0 1
Kjellerstue 004 14.3 m² 1 1
Tekniskrom/Bod 005 10.2 m² 0 1
Gang/Trapp 006 14.1 m² 0 1
Bad 007 3.8 m² 0 1
Soverom 008 8.3 m² 1 1
Kjøkken/Stue 009 18.0 m² 1 1
Vaskerom/Bod 010 8.6 m² 0 1
WC 011 1.9 m² 0 1
Badstu 012 3.4 m² 0 1

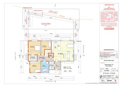
Etasje 1 158.5 m²

Rom Areal Vinduer Dører
Stue/Kjøkken 101 48.2 m² 2 1
Soverom 102 19.1 m² 1 1
Soverom 103 12.3 m² 1 1
Soverom 104 13.7 m² 1 1
Gang/Trapp 105 12.6 m² 0 4
Matbod 106 2.1 m² 0 1
Bad 107 9.8 m² 0 1
Garderobe 108 5.8 m² 0 1
Garderobe 109 4.3 m² 0 1
V.F. 110 5.3 m² 0 1

Fasader

Enebolig

Sør
Materiale
Tre
Taktype
Saltak
Takmat.
Tegl
Høyde
3.7 m
Mønehøyde
5.3 m
Vinduer
3
Dører
1
Synlige etasjer
1
Vest
Materiale
Tre
Taktype
Saltak
Takmat.
Tegl
Høyde
3.7 m
Mønehøyde
5.3 m
Vinduer
2
Dører
1
Synlige etasjer
1
Øst
Materiale
Tre
Taktype
Saltak
Høyde
5.3 m
Vinduer
5
Dører
1
Balkonger
1
Synlige etasjer
1
Nord
Materiale
Tre
Taktype
Saltak
Høyde
5.3 m
Vinduer
1
Dører
0
Synlige etasjer
1

Hendelser

20.04.2026 Melding om forlenget saksbehandlingstid og ber om ytterligere opplysninger - Byggesak - overtredelsesgebyr og vedtak om pålegg om retting og tvangsmulkt
07.04.2026 Gnr 41/59 - Supplering av søknad
17.02.2026 Svar på henvendelse vedrørende status i saken - Gnr 41 bnr 59 - Gjerivegen 27
17.02.2026 Anmodning om redegjørelse - mulig avvik i utført terrengnivå
06.02.2026 Gnr 41/59 - Melding om saksbehandlingstid
30.01.2026 Oversendelse av klagesak - Gnr 41 bnr 59 - Gjerivegen 27 - Klage på vedtak om overtredelsesgebyr og vedtak om pålegg om retting og tvangsmulkt
30.01.2026 Gnr 41/59 - Tilbakemelding på pålegg om retting/tilbakeføring og vedtak om tvangsmulkt
30.01.2026 Innvilget ny frist - Gnr 41/59 - Gjerivegen 27 - Svar på foreløpig svar på mangelbrev
27.01.2026 Gnr 41/59 - Foreløpig svar på mangelbrev
16.12.2025 Vurdering av behov for fagbistand – Mulig terrengnivå-avvik
16.12.2025 Mangelbrev - Gnr 41 bnr 59 - Gjerivegen 27 - Søknad om endring av gitt tillatelse eller godkjenning
12.12.2025 Rettelse – feil i tidligere utsendt brev - Gnr 41 bnr 59 - Gjerivegen 27 - Bruksendring av kjeller og oppføring av tilbygg
12.12.2025 Gnr 41 bnr 59 - Gjerivegen 27 - Bekreftelse mottatt klage
10.12.2025 Gnr 41/59 - Supplering av søknad
19.11.2025 Gnr 41/59 - Klage på overtredelsesgebyr og pålegg om retting og tvangsmulkt
31.10.2025 Vedtak om overtredelsesgebyr - gnr 41 bnr 59 - Gjerivegen 27
31.10.2025 Pålegg om retting/tilbakeføring og vedtak om tvangsmulkt - Gnr 41 bnr 59 - Gjerivegen 27 - Ulovlige forhold på eiendom
30.10.2025 Gnr 41/59 - Frist for nabomerknader utløpt
21.10.2025 Gnr 41/59 - Angående tilsynsrapport - Anmodning om bekreftelse
10.10.2025 Gnr 41/59 - Anmodning om avstandserklæring
10.10.2025 Gnr 41/59 - Søknad om endring av gitt tillatelse eller godkjenning
10.10.2025 Gnr 41/59 - Gjerivegen 27 - Svar på varsel om stans i byggearbeider
10.10.2025 Gnr 41/59 - Svar på tilsynsrapport
10.10.2025 Gnr 41/59 - Svar på forhåndsvarsel retting med tvangsmulkt og forhåndsvarsel om overtredelsesgebyr
09.10.2025 Gnr 41/59 - Gjerivegen 27 - Varsel om stans i byggearbeider
08.10.2025 Svar på anmodning om forlengelse av fristen - gnr 41 bnr 59 - Gjerivegen 27
30.09.2025 Gnr 41/59 - Gjerivegen 27- Anmodning om forlengelse av fristen
22.09.2025 Forhåndsvarsel overtredelsesgebyr - Gnr 41 bnr 59 - Gjerivegen 27 - Ulovlige forhold på eiendom
22.09.2025 Tilsynsrapport - Gnr 41 bnr 59 - Gjerivegen 27 - Bruksendring av kjeller og oppføring av tilbygg, tilbakeføring av opprinnelig terreng høyde og forsøpling
22.09.2025 Forhåndsvarsel retting med tvangsmulkt - Gnr 41 bnr 59 - Gjerivegen 27 - Ulovlige forhold på eiendom
28.08.2025 Gnr 41/59 - Gjerivegen 27 - Svar på henvendelse – endring av dato for befaring
27.08.2025 Gnr 41/59 - Anmodning om å endre møtedato
26.08.2025 Varsel om befaring - Gnr 41 bnr 59 - Gjerivegen 27 - Bruksendring av kjeller og oppføring av tilbygg, terrengfylling og forsøpling
09.07.2025 Gnr 41/59 - Ettersendelse av bilder - slutten av juni 2025
12.06.2025 Gnr 41/57 - Svar angående terrengfylling, forsøpling og ingangsettingstillatelse
27.05.2025 Anmodning om redegjørelse - gnr 41 bnr 59 - Gjerivegen 27
27.05.2025 Gnr 41/59 - Svar på opphør av ansvarsrett UTF
24.04.2025 Gnr 41/59 - Opphør av ansvarsrett UTF - Sowa Entreprenør
11.12.2024 Gnr 21/286 - tilbakemelding forhåndsvarsel om overtredelsesgebyr
10.04.2023 Vedtak i klagesak - Gjerdrum - 41/29 - Gjerivegen 27 - Klage over avslag