Extension Soeknad Enebolig

Tilbygg til enebolig på Fjellbygdevegen 56, Sandane

Nøkkelinfo

Sakstype
Tilbygg
Bygningstype
Enebolig
Bruksareal
73 m²
Boenheter
1
Kommune
Gloppen
Fylke
Vestland
Saksnummer
2026/1630
Fase
Søknad

Om byggesaken

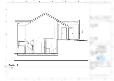
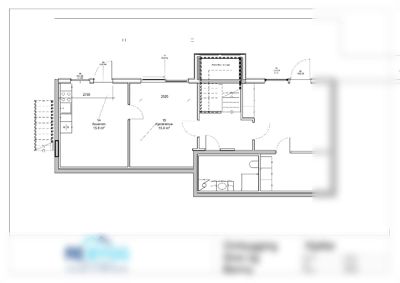
Ny tilbygg på ca. 73 m² med flatt tak mot nordvest på en eksisterende enebolig i Fjellbygdevegen 56, Sandane. Tilbygget inkluderer forlenging av takstolkonstruksjon mot øst, fasadeendring mot sør og ny veranda. Bygget har trekledning og saltak med tegl på eksisterende del, mens tilbygget har flatt tak. Prosjektet omfatter også balansert ventilasjon, sanitæranlegg, grunnarbeid, betong- og tømrerarbeid. Det er planlagt flere rom i kjeller og 1. etasje, inkludert soverom, bad, gangarealer og kjellerstue. Fasaden mot sør har 8 vinduer, 1 dør og 1 balkong, mens fasaden mot nord har 6 vinduer, 1 dør og garasjeport.

Produkter og materialer

Tak Flatt tak og saltak

🧱 Tegl på saltak, flatt tak på tilbygg

Eksisterende saltak med tegl, tilbygget får flatt tak mot nordvest

Taktekking for eksisterende og nytt tilbygg

VVS Sanitæranlegg

Sanitæranlegg utføres av Pebo Rør AS

VVS-installasjoner for bad og øvrige våtrom i tilbygget

Ventilasjon Balansert ventilasjon

Balansert ventilasjon installeres av Evebø Blikkenslagerverkstad AS

Ventilasjonsanlegg for nytt tilbygg og eksisterende bygg

Tømrer Tømrerarbeid

Tømrerarbeid utføres av Re-Bygg AS

Tømrerarbeid for oppføring av tilbygg og fasadeendring

Vinduer Fasadevindu

Antall: 14

8 vinduer på sørfasade, 6 vinduer på nordfasade

Nye og eksisterende fasadevinduer i tilbygget og eksisterende bygg

Garasjeport Garasjeport

Antall: 1

Garasjeport på nordfasade

Eksisterende garasjeport i tilknytning til bolig

Fasade Tre kledning

🧱 Tre

Tilbygg med trekledning, fasadeendring mot sør og ny veranda

Fasadeendring og ny trekledning på tilbygget og eksisterende bygg

Betong Betongarbeid

Betongarbeid utføres av Re-Bygg AS

Betongarbeid for fundament og konstruksjoner

Dører Ytterdører

Antall: 2

1 dør på sørfasade, 1 dør på nordfasade

Ytterdører til tilbygget og eksisterende bygg

Grunnarbeid Grunnarbeid for tilbygg

Grunnarbeid utføres av Byrkjelo Maskin AS

Grunnarbeid for fundamentering av tilbygget

Balkong Veranda

🧱 Tre

Antall: 1

Ny veranda på sørfasade

Veranda som del av fasadeendring

Fasader

Enebolig

Sør
Materiale
Tre
Taktype
Saltak
Vinduer
8
Dører
1
Balkonger
1
Synlige etasjer
2
Nord
Materiale
Tre
Taktype
Saltak
Takmat.
Tegl
Vinduer
6
Dører
1
Synlige etasjer
1

Hendelser

23.04.2026 Søknad om løyve til tiltak -Tilbygg bustadhus