Extension Rammetillatelse Enebolig

Tilbygg med balkonger og fasadeisolering i Såsengata 25A

📍 Grams alle 11 , 3039 DRAMMEN

Nøkkelinfo

Sakstype
Tilbygg
Bygningstype
Enebolig
Bruksareal
346 m²
Boenheter
1
Kommune
Drammen
Fylke
Buskerud
Gnr / Bnr
25 / 28
Saksnummer
25/34634
Fase
Rammetillatelse

Om byggesaken

Ny balkong på to plan som tilbygg til eksisterende enebolig i Såsengata 25A, fundamentert på mindre plasstøpte betongfundamenter på eksisterende terreng. Tilbygget inkluderer balkong i 1. etasje og overbygget balkong i 2. etasje, samt tak over eksisterende kjellertrapp. Fasadeendring med utvendig etterisolering av trefasade. Totalt tilbygg areal er 15,6 m², og tiltaket medfører ingen økning i grunnflate eller vesentlige terrenginngrep. Bygningen har saltak og trefasade, med gesimshøyde ca. 6,3-6,9 m og mønehøyde 8,2 m. Tiltaket er plassert 4 meter fra eiendomsgrense og har dispensasjon fra regulert byggegrense mot vei. Eiendommen har et totalt areal på 346 m² fordelt på kjeller, 1. og 2. etasje, med to balkonger og to trapper.

Produkter og materialer

Tak Saltak

🧱 Tre og taktekking

Saltak på eksisterende bolig og over balkong i 2. etasje

Tak over balkong og eksisterende bolig

Balkong Balkong på to plan

🧱 Trekonstruksjon på plasstøpte betongfundamenter

Antall: 2

Balkong i 1. etasje og overbygget balkong i 2. etasje, fundamentert på små punktfundamenter av plasstøpt betong på eksisterende terreng

Oppføring av balkonger som tilbygg til eksisterende bolig

Vinduer Fasadevindu

🧱 Tre

Antall: 20

Vinduer i eksisterende og nye fasader, trevinduer

Vinduer i bolig og tilbygg

Tømrer Balkongkonstruksjon og tilbygg

🧱 Tre

Trekonstruksjon for balkonger og tilbygg

Tømrerarbeid for balkonger og tilbygg

Fasade Utvendig etterisolering

🧱 Trefasade med isolasjon

Utvendig etterisolering av alle yttervegger på eksisterende trefasade

Materialer og arbeid for utvendig etterisolering av fasade på enebolig

Grunnarbeid Fundamentering

🧱 Plasstøpt betong

Mindre fundamenter av plasstøpt betong direkte på eksisterende terreng for balkonger

Fundamentering for balkonger og tilbygg

Dører Ytterdører M9

Antall: 4

Ny M9-dør i tilbygg

Nye ytterdører i tilbygg

Isolasjon Fasadeisolasjon

🧱 Isolasjonsmateriale for utvendig etterisolering

Isolasjon for utvendig etterisolering av fasade

Isolasjonsmateriale for fasadeendring

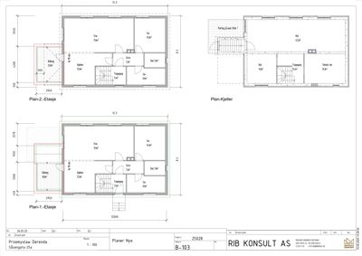
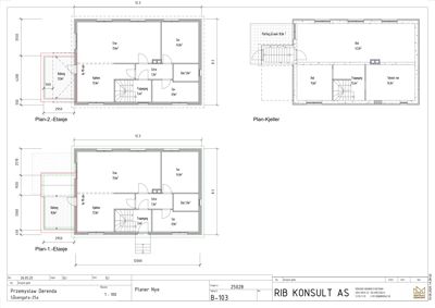
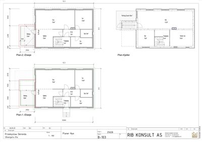
Plantegning

Enebolig 346.0 m²

Etasje -1 74.5 m²

Rom Areal Vinduer Dører
Bod Bod 42.2 m² 0 1
Bod Bod 11.6 m² 0 1
Teknisk rom Teknisk rom 16.3 m² 0 1
Trappegang Trappegang 12.4 m² 0 0

Etasje 1 97.5 m²

Rom Areal Vinduer Dører
Stue Stue 31.6 m² 2 0
Sov Sov 14.0 m² 1 1
Kjøkken Kjøkken 15.9 m² 2 0
Entre Entre 5.1 m² 0 3
Bad Bad 3.9 m² 0 1
Sov Sov 8.9 m² 1 1
Trappegang Trappegang 7.4 m² 0 0

Etasje 2 97.5 m²

Rom Areal Vinduer Dører
Stue Stue 31.6 m² 2 0
Sov Sov 14.0 m² 1 1
Kjøkken Kjøkken 15.9 m² 2 0
Entre Entre 5.1 m² 0 3
Bad Bad 3.9 m² 0 1
Sov Sov 8.9 m² 1 1
Trappegang Trappegang 7.4 m² 0 0

Etasje 0 76.5 m²

Rom Areal Vinduer Dører
Bod Bod 42.2 m² 1 1
Bod Bod 11.6 m² 0 1
Trappegang Trappegang 12.4 m² 0 1
Teknisk rom Teknisk rom 16.3 m² 0 1

Fasader

Enebolig

Nord
Materiale
Tre
Taktype
Saltak
Høyde
6.3 m
Mønehøyde
8.2 m
Vinduer
6
Dører
0
Balkonger
1
Synlige etasjer
3
Vest
Materiale
Tre
Taktype
Saltak
Høyde
6.9 m
Mønehøyde
8.2 m
Vinduer
5
Dører
1
Balkonger
2
Synlige etasjer
3
Sør
Materiale
Tre
Taktype
Saltak
Høyde
6.3 m
Mønehøyde
8.2 m
Vinduer
4
Dører
1
Balkonger
2
Synlige etasjer
3
Øst
Materiale
Tre
Taktype
Saltak
Høyde
6.3 m
Mønehøyde
8.2 m
Vinduer
3
Dører
0
Synlige etasjer
3

Hendelser

15.04.2026 Såsengata 25A, vi har mottatt din søknad om reduksjon av gebyr
30.03.2026 Såsengata 25A, vurdering av gebyr (mangelbrev)
25.03.2026 Såsengata 25A, tillatelse til utvendig etterisolering av fasaden og oppføring av tilbygg med dispensasjon fra regulert byggegrense mot vei
30.01.2026 Såsengata 25A Supplering av søknad 213/192
23.01.2026 Såsengata 25A, vi trenger flere opplysninger for å behandle søknaden din
18.12.2025 Såsengata 25A Supplering av søknad 213/192
27.11.2025 Såsengata 25A, fristutsettelse
26.11.2025 Såsengata 25A Supplering av søknad 213/192
24.10.2025 Såsengata 25A, vi trenger flere opplysninger for å behandle søknaden din
22.09.2025 Såsengata 25A, ettersendt dokumentasjon til søknaden
17.09.2025 Såsengata 25A Søknad om tillatelse i ett trinn 213/192