Extension Ferdigattest Enebolig

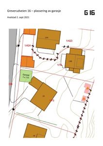
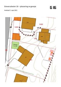
Tilbygg og ombygging av enebolig med ny garasje i Greverudveien 16

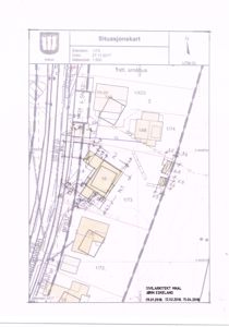
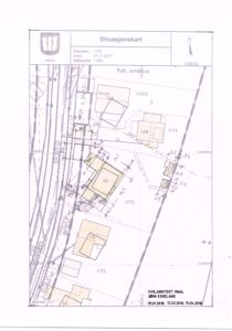
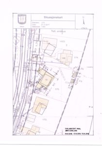
📍 Greverudveien 16 , 1395 HVALSTAD

Nøkkelinfo

Sakstype
Tilbygg
Bygningstype
Enebolig
Bruksareal
141 m²
Boenheter
1
Kommune
Asker
Fylke
Akershus
Gnr / Bnr
1 / 73
Saksnummer
20/4377
Fase
Ferdigattest

Om byggesaken

Prosjektet omfatter omfattende tilbygg og ombygging av en eksisterende enebolig på 141 m² i Greverudveien 16. Det inkluderer riving av gammel garasje, terrasse, hagebod og redskapsskjul, samt oppføring av nytt inngangsparti, arbeidsrom, utvidelse av kjøkken og karnapp. Ny garasje på 49 m² med flatt tak bygges med dispensasjon for plassering 0,5 m fra eiendomsgrense mot vei. Det oppføres også nye uteboder og en overdekket terrasse. Bygningene har trekledning og flate tak, og tiltaket inkluderer drenering og grunnarbeid for å løse fuktsproblemer. Prosjektet er gjennomført med godkjente tegninger, dispensasjoner og ferdigattest søkt.

Produkter og materialer

Isolasjon Vegger og tak

Økt veggtykkelse og isolasjon i tilbygg

Isolasjon i vegger og tak i tilbygg og ombygging

Fasade Trekledning

🧱 Tre

Trekledning på enebolig og garasje

Trekledning på fasader av enebolig og garasje

Garasjeport Garasjeport til ny garasje

Antall: 1

Garasjeport til ny garasje 7x7 m

Garasjeport for ny garasje

Betong Fundament for garasje

Fundament for ny garasje 7x7 m

Fundament for ny garasje på 49 m²

Tak Flatt tak

Flatt tak på enebolig og garasje

Flatt tak på enebolig og garasje

Tømrer Tilbygg og ombygging

Tilbygg på ca 35 m² med utvidelse av kjøkken, nytt inngangsparti og arbeidsrom

Tømrerarbeid for tilbygg og ombygging av enebolig

Maling Utvendig og innvendig maling

Maling av fasader og innvendige overflater

VVS Drenering og avløp

Rehabilitering av avløpsrør, drenering rundt grunnmur

VVS-arbeid knyttet til drenering og avløpssystem

Grunnarbeid Drenering og masseskifte

Drenering rundt grunnmur og gårdsplass, masseskifte for gårdsplass

Drenering av grunnmur og gårdsplass, samt masseskifte for å forhindre vanninntrengning

Vinduer Fasadevindu

🧱 Tre

Antall: 14

Fasadevinduer i tre på enebolig og garasje

Terrasse Overdekket terrasse

Antall: 2

Overdekket terrasse på 10 m² og 15 m²

To overdekkede terrasser som erstatter eksisterende terrasse

Elektro El-installasjoner i garasje og bolig

El-installasjoner for lading av el-bil i garasje

Elektroarbeid for bolig og garasje, inkludert ladepunkt for el-bil

Rekkverk Terrasserekkverk

Rekkverk på terrasser

Dører Ytterdører og terrassedører

🧱 Tre

Antall: 15

Ytterdører og terrassedører i tre på enebolig og garasje

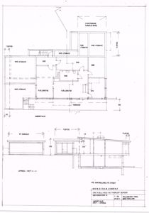
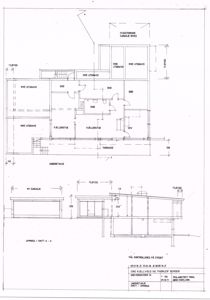
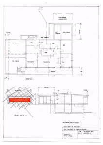
Plantegning

Enebolig 141.0 m²

Etasje 1 141.0 m²

Rom Areal Vinduer Dører
Stue 101 42.0 m² 2 2
Spis 102 14.0 m² 1 2
Kjøkken 103 12.0 m² 1 2
Hall 104 8.0 m² 0 3
Arbeidsrom 105 10.0 m² 1 2
Sov 106 12.0 m² 1 2
Sov 107 12.0 m² 1 2
Sov 108 12.0 m² 1 2
Terrasse 109 45.0 m² 0 1
Overdekket Terrasse 110 10.0 m² 0 1
Garasje 111 20.0 m² 1 1
Stue 0 0.0 m² 0 0
Overdekket Terrasse 112 15.0 m² 0 1
Spisestue 113 0.0 m² 0 1
Altan / Terrasse 114 0.0 m² 0 1

Fasader

Enebolig

Nordvest
Materiale
Tre
Taktype
Flatt tak
Vinduer
3
Dører
1
Synlige etasjer
1
Nordøst
Materiale
Tre
Taktype
Flatt tak
Vinduer
6
Dører
1
Synlige etasjer
1
Sørøst
Materiale
Tre
Taktype
Flatt tak
Vinduer
10
Dører
1
Balkonger
1
Synlige etasjer
2

Garasje

Sør
Materiale
Tre
Taktype
Flatt tak
Høyde
2.5 m
Mønehøyde
2.5 m
Vinduer
1
Dører
0
Synlige etasjer
1
Øst
Materiale
Tre
Taktype
Flatt tak
Høyde
2.5 m
Mønehøyde
2.5 m
Vinduer
0
Dører
1
Synlige etasjer
1
Nord
Materiale
Tre
Taktype
Flatt tak
Høyde
2.5 m
Mønehøyde
2.5 m
Vinduer
0
Dører
0
Synlige etasjer
1
Vest
Materiale
Tre
Taktype
Flatt tak
Høyde
2.5 m
Mønehøyde
2.5 m
Vinduer
0
Dører
0
Synlige etasjer
1

Hendelser

10.04.2026 1/73 Greverudveien 16 - Søknad om ferdigattest
25.03.2026 1/73 Tilbygg og ombygg bolig, riving / ny garasje og boder - Manglende ferdigattest eller midlertidig brukstillatelse
19.11.2021 1/73 Svar på anmodning om nedsettelse av gebyr - Riving / nybygg garasje
02.11.2021 1/73 Ber om revurdering av størrelse på fakturagebyr - Tilbygg og ombygg bolig, riving / ny garasje og boder
14.10.2021 1/73 Godkjent dispensasjon og tillatelse til tiltak - Nybygg garasje
06.09.2021 1/73 Tilleggsdokumentasjon - Tilbygg og ombygg bolig, riving / ny garasje og boder
03.09.2021 1/73 Etterspurt revidert dokumentasjon for garasje - Tilbygg og ombygg bolig, riving/ ny garasje og boder
28.05.2021 1/73 Purring på svar på søknad om dispensasjon - Tilbygg og ombygg bolig, riving/ ny garasje og boder
04.11.2020 1/73 Søknad om dispensasjon - Plassering av garasje
09.07.2020 1/73 - Tillatelse til tiltak i ett trinn - tilbygg og ombygging enebolig, riving / nybygg garasje og uteboder
15.06.2020 1/73 Kvitteringsbrev - Bruksendring, riving garasje og del av bolig
15.06.2020 1/73 Søknad om bruksendring, riving garasje og del av bolig