Extension UnderBehandling Enebolig

Loftsetasje, fasadeendring og garasjeutvidelse i Grimsrudveien 5, Hyggen

📍 Grimsrudveien 5 , 3442 HYGGEN

Nøkkelinfo

Sakstype
Tilbygg
Bygningstype
Enebolig
Bruksareal
181 m²
Boenheter
1
Kommune
Asker
Fylke
Akershus
Gnr / Bnr
280 / 36
Saksnummer
20/639
Fase
Under behandling

Om byggesaken

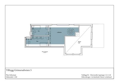
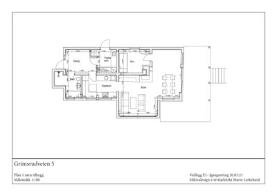
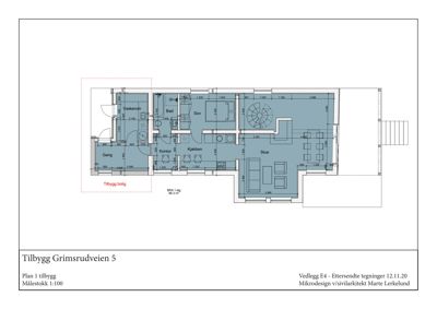
Eksisterende enebolig i Grimsrudveien 5, Hyggen, oppgraderes med ny loftsetasje på 43 m², fasadeendringer og utvidelse av garasje til 41,5 m². Boligen får saltak med mønehøyde på 7,97 meter og gesimshøyde på 6,04 meter. Det er også oppført nye støttemurer i terrenget rundt boligen for å sikre mot utglidning. Totalt areal for boligen er ca. 181 m² fordelt på tre etasjer, med flere soverom, bad, stue, kjøkken og vaskerom. Garasjen utvides med 5,5 m² i forhold til tidligere godkjent størrelse. Tiltaket inkluderer utskifting av vinduer, ny trapp mellom etasjer og oppgradering av baderom. Prosjektet har fått nødvendige dispensasjoner og tillatelser, og igangsettingstillatelse er gitt. Ferdigattest mangler per april 2026.

Produkter og materialer

Maling Fasade- og innvendig maling

Maling av fasade og innvendige flater for oppgradering av estetikk

Overflatebehandling for beskyttelse og estetikk

Vinduer Isolerglassvinduer

Antall: 14

Nye vinduer med bedre isolasjon, noen endret størrelse for bedre planløsning

Utskifting av gamle vinduer fra 1970 for bedre isolasjon og funksjonalitet

Fasade Saltak

🧱 Tre og betong

Saltak med mønehøyde 7,97 m og gesimshøyde 6,04 m, takform endret fra flatt til saltak

Nytt saltak på bolig med bedre isolasjon og lufting, takutskifting for å forbedre standard og estetikk

Gulv Varmekabler i gang

Varmekabler i ny gang som erstatter gammel uisolert betongtrapp

Bedre isolasjon og komfort i gangareal

Dører Ytterdører og innerdører

Nye dører i bolig og garasje, inkludert dører til vaskerom og loftsetasje

Oppgradering av dører for bedre isolasjon og funksjonalitet

Betong Grunnmur og støttemur

🧱 Betong

Ny grunnmur og støttemur for å sikre bygget og terreng

Betongkonstruksjoner for fundament og terrengstøtte

Garasje Utvidet garasje

Antall: 1

Garasje utvidet til 41,5 m², 5,5 m² større enn tidligere godkjent

Ny garasje med plass til en bil og bod, mulighet for senere ombygging til dobbelgarasje

VVS Sanitærinstallasjoner

Oppgradering av sanitærinstallasjoner i bad og vaskerom, godkjent sanitær abonnement kreves

Nye sanitærinstallasjoner for bad og vaskerom

Pipe Stålpiperehabilitering

🧱 Stål

Antall: 1

Stålpiperehabilitering Ø150 mm

Oppgradering av pipe for bedre funksjon og sikkerhet

Rekkverk Rekkverk på støttemur og veranda

Rekkverk på nye støttemurer og veranda for sikkerhet

Sikkerhetsrekkverk i henhold til forskrifter

Støttemur Betong/støttemur

🧱 Betong og siporex

Nye støttemurer opp til 1,8 m høyde og 16 m lengde, forankret i fjell, med gjerde for sikkerhet

Nye støttemurer for å hindre utglidning og sikre terreng, erstatning av gamle murer i dårlig stand

Elektro Elektrisk installasjon

Elektrisk installasjon for belysning, varmekabler og øvrige elektriske behov

Oppgradering av elektrisk anlegg i bolig og tilbygg

Trapper Innvendig rettløpstrapp

Antall: 1

Spiraltrapp erstattet med rettløpstrapp mellom 1. etasje og loftsetasje

Ny trapp for bedre tilgjengelighet mellom etasjer

Bad Oppgradering bad og nytt vaskerom

Antall: 2

Nytt bad i loftsetasje 6 m², oppgradert bad i 1. etasje, nytt vaskerom i tilbygg

Oppgradering av baderom til dagens standard, inkludert nytt vaskerom for bedre planløsning

Tømrer Bygging av tilbygg og loftsetasje

🧱 Tre

Tilbygg på 13,5 m² med gang og vaskerom, loftsetasje på 43 m² med soverom og loftsstue

Oppføring av tilbygg og loftsetasje for økt boareal og bedre funksjonalitet

Fasader

Enebolig

Vest
Materiale
Betong
Taktype
Saltak
Høyde
3.0 m
Vinduer
5
Dører
1
Balkonger
1
Synlige etasjer
1
Øst
Materiale
Tre
Taktype
Saltak
Høyde
2.5 m
Mønehøyde
4.9 m
Vinduer
2
Dører
1
Balkonger
1
Synlige etasjer
2
Nord
Materiale
Tre
Taktype
Saltak
Høyde
2.5 m
Vinduer
2
Dører
1
Balkonger
1
Synlige etasjer
2
Sør
Materiale
Tre
Taktype
Saltak
Høyde
3.9 m
Mønehøyde
5.1 m
Vinduer
1
Dører
1
Balkonger
1
Synlige etasjer
2

Hendelser

15.04.2026 280/36 (Tilbygg), fasadeendring og ny støttemur - Manglende ferdigattest eller midlertidig brukstillatelse
13.10.2022 280/36 Erklæring om ansvarsrett og oppdatert gjennomføringsplan - (Tilbygg), fasadeendring og ny støttemur
30.06.2021 280/36 Igangsettingstillatelse og godkjent endring - Tilbygg, fasadeendring og ny støttemur
24.06.2021 280/36 Dokumentasjon til igangsettingstillatelse og endringstillatelse - Tilbygg, fasadeendring og ny støttemur
21.05.2021 280/36 Søknad om igangsettingstillatelse - Tilbygg, fasadeendring og ny støttemur
26.11.2020 280/36 Endringstillatelse (endret tak og plassering av tilbygg) - Tilbygg, fasadeendring og ny støttemur
24.11.2020 280/36 Dokumentasjon, garasje m.m. - Tilbygg, fasadeendring og ny støttemur
17.11.2020 280/36 Oppdaterte tegninger og snitt - Endring av gitt tillatelse
16.11.2020 280/36 Bilder mot nabo - Tilbygg, fasadeendring og ny støttemur
11.11.2020 280/36 Tilbakemelding rundt endring av gitt tillatelse - Tilbygg, fasadeendring og ny støttemur
28.09.2020 280/36 Søknad om endring av gitt tillatelse - Tilbygg, fasadeendring og ny støttemur
24.08.2020 280/36 E-postkorrespondanse - Tilbygg, fasadeendring og ny støttemur
03.04.2020 280/36 Godkjente dispensasjoner og rammetillatelse - Tilbygg, fasadeendring og ny støttemur
12.03.2020 280/36 Oppdatert dokumentasjon - Tilbygg, fasadeendring og ny støttemur
26.02.2020 280/36 Avklaring - Tilbygg, fasadeendring og ny støttemur
11.02.2020 280/36 Avklaring om slokkevann - Tilbygg, fasadeendring og ny støttemur