Extension Rammetillatelse Enebolig

Tilbygg til enebolig i Grønnlivegen 20, Askøy

📍 Grønnlivegen 20 , 5300 KLEPPESTØ

Nøkkelinfo

Sakstype
Tilbygg
Bygningstype
Enebolig
Bruksareal
45 m²
Boenheter
1
Kommune
Askøy
Fylke
Vestland
Gnr / Bnr
8 / 628
Saksnummer
2023/3585
Fase
Rammetillatelse

Om byggesaken

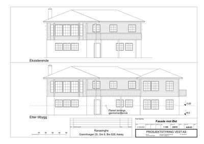
Ny to-etasjes tilbygg på eksisterende enebolig i Grønnlivegen 20, Askøy, med et samlet areal på ca. 45 m². Tilbygget er plassert på boligens nordfasade og har samme kledning og vinduer som eksisterende bygg, med saltak som taktype. Bygget inkluderer flere rom som kjøkken, stue, soverom, bad og gang, og har en trapp innvendig. Det er også planert område for parkering på tomtens vestside. Bygget er tilpasset terrenget og har fått dispensasjon fra regulert utnyttelsesgrad, byggegrense mot vei og avstand til nabogrense. Det stilles krav om uavhengig kontroll av overvannshåndtering for å sikre gode tekniske løsninger.

Produkter og materialer

Vinduer Fasadevindu

🧱 Tre eller aluminium, 3-lags glass

Antall: 17

Vinduer i tilbygget med samme utførelse som eksisterende bolig

Fasadevindu for lys og ventilasjon i tilbygget

Ventilasjon Mekanisk ventilasjon

Ventilasjon i henhold til TEK17 for nytt tilbygg

Elektro Elektrisk anlegg

Elektrisk installasjon i tilbygget i henhold til TEK17

Gulv Innvendige gulv

Innvendige gulv i tilbygget, sannsynligvis parkett eller fliser på bad

Tak Saltak

🧱 Takstein eller tilsvarende

Saltak som eksisterende bolig

Tak med saltak som matcher eksisterende bolig

VVS Avløps- og vannledninger

Avklaring og eventuell omlegging av avløpsledninger i grensen mot naboer

VVS-installasjoner tilpasset eksisterende ledningsnett

Dører Ytterdører og balkongdører

🧱 Tre eller aluminium

Antall: 5

Dører i tilbygget som matcher eksisterende bolig

Ytterdører og balkongdører til tilbygget

Betong Fundamentering

🧱 Betongblokker (Lego fra Ølen betong)

Fundamentering for å sikre VA-ledninger under tilbygget

Betongfundament for tilbygget

Bad Bad/wc/vaskerom

Antall: 2

Bad og vaskerom i tilbygget med nødvendige sanitærinstallasjoner

Grunnarbeid Planering og fundamentering

Planering av område for parkering på tomtens vestside, fundamentering med betongblokker for å sikre VA-ledninger

Grunnarbeid for tilbygget og tilhørende parkering

Trapper Innvendig trapp

Antall: 1

Innvendig trapp på 4 m² i tilbygget

Trapp mellom etasjer i tilbygget

Fasade Trepanel kledning

🧱 Tre

Samme kledning som eksisterende bolig

Fasade kledd med trepanel som matcher eksisterende bygg

Maling Utvendig og innvendig maling

Maling av fasade og innvendige overflater

Isolasjon Vegger og tak

Isolasjon i vegger og tak i henhold til TEK17

Isolasjon for energieffektivitet og komfort

Plantegning

Enebolig 168.6 m²

Etasje 0 168.6 m²

Rom Areal Vinduer Dører
kjøkken 001 9.0 m² 0 1
stue 002 22.0 m² 2 1
sov 003 7.0 m² 0 1
gang 004 21.0 m² 0 0
vaskerom 005 4.0 m² 0 1
bad/wc/vask 006 6.0 m² 0 1
entre 007 5.0 m² 0 1
sov 008 14.0 m² 0 1
opphold/kjøkken 009 23.5 m² 2 1
sov 010 12.1 m² 0 1
trapp 011 4.0 m² 0 0

Fasader

Enebolig

Nord
Materiale
Tre
Taktype
Saltak
Høyde
2.6 m
Mønehøyde
7.2 m
Vinduer
4
Dører
1
Balkonger
1
Synlige etasjer
2
Øst
Materiale
Tre
Taktype
Saltak
Høyde
6.3 m
Mønehøyde
8.8 m
Vinduer
11
Dører
1
Balkonger
1
Synlige etasjer
2

Garasje

Sør
Materiale
Tre
Taktype
Saltak
Høyde
2.8 m
Mønehøyde
6.0 m
Vinduer
1
Dører
1
Synlige etasjer
1

Hendelser

15.04.2026 Gbnr 8/628 - Statsforvalteren i Vestland stadfester Askøy kommune vedtak datert 31.12.2025 - sak 949/25
27.01.2026 Gbnr 8/628 - Klage på avslag - Søknad om nedsettelse av gebyr
06.01.2026 Gbnr 8/628 - Avslag på søknad om nedsettelse av gebyr
28.11.2025 Gbnr 8/628 - Bekreftelse på mottatt søknad om nedsettelse av byggesaksgebyr
17.11.2025 Gbnr 8/628 - Ber om nedsettelse av byggesaksgebyret
06.11.2024 Gbnr 8/628 - Tilbakemelding på henvendelser om klage
05.06.2024 Gbnr 8/628 - Rammetillatelse
29.04.2024 Gbnr 8/628 - Supplering av søknad
26.04.2024 Gbnr 8/628 - Ber om utsatt frist for innsendelse av tilleggsdokumentasjon
04.04.2024 Gbnr 8/628 - Purring 4 - Ber om avklaring på behandling av klage
10.01.2024 Gbnr 8/628 - Søknad om rammetillatelse
04.12.2023 Gbnr 8/628 - Purring 3 - Ber om avklaring på behandling av klage
30.11.2023 Gbnr 8/628 - Purring 2 - Ber om avklaring på behandling av klage
29.11.2023 Gbnr 8/628 - Purring - Ber om avklaring på behandling av klage
23.11.2023 Gbnr 8/628 - Ber om avklaring på behandling av klage
23.11.2023 Gbnr 8/628 - Tilbakemelding på søknad om nedsettelse av gebyr
02.11.2023 Gbnr 8/628 - Tilleggsopplysninger fra Nabo
25.10.2023 Gbnr 8/628 - Klage på avslag - Oppdaterte tegninger
18.10.2023 Gbnr 8/628 - Ber om utsatt betalingsfrist
10.10.2023 Gbnr 8/628 - Klage på avslag kommer
09.10.2023 Gbnr 8/628 - Ber om utsatt klagefrist
03.10.2023 Gbnr 8/628 - Uttale
27.09.2023 Gbnr 8/628 - Krav om tilbakebetaling av gebyr ved tidsoverskridelse
25.09.2023 Gbnr 8/628 - Ny snittegning
25.09.2023 Gbnr 8/628 - Avslag på søknad
19.09.2023 Gbnr 8/628 - Ber om tilbakemelding
26.07.2023 Gbnr 8/628 - Ber om tilbakemelding
02.06.2023 Gbnr 8/628 - Svar fra Samferdsel - Intern oversendelse
16.05.2023 Gbnr 8/628/0/0 - Etterspør vedtak - Søknad om rammetillatelse
04.05.2023 Gbnr 8/628 - Intern oversendelse
27.02.2023 Gbnr 8/628/0/0 - Søknad om rammetillatelse