Rendering
3D-visualisering av en bygning sett fra siden (side-elevasjon) med synlig fasadebehandling og vinduer.
1 / 4
Extension
Soeknad
Enebolig
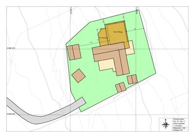
Tilbygg og fasadeendring på enebolig i Grytdalsvegen 388, Oppdal
📍 Grytdalsvegen 388 , 7346 OPPDAL
Nøkkelinfo
- Sakstype
- Tilbygg
- Bygningstype
- Enebolig
- Bruksareal
- 71 m²
- Boenheter
- 1
- Kommune
- Oppdal
- Fylke
- Trøndelag - Trööndelage
- Gnr / Bnr
- 101 / 11
- Saksnummer
- 2026/9727
- Fase
- Søknad
Om byggesaken
Ny tilbygg på 71 m² BRA og 67,5 m² BYA i en etasje med tilhørende terrasse bygges på en eksisterende enebolig i Grytdalsvegen 388, Oppdal. Tilbygget innebærer endring av fasade og utvendige bygningsdeler, og prosjektet omfatter grunnarbeider, tømrerarbeid og sanitærinstallasjoner. Bygget får tre etasjer totalt, med flere vinduer og en balkong på fasaden. Det er planlagt bruk av standard materialer og tekniske installasjoner i henhold til gjeldende forskrifter. Nabovarsel er gjennomført med en merknad som er tatt til følge.
Produkter og materialer
Tømrer
Tømrerarbeid
Ansvarlig BYGGMESTER KLEFSTAD AS, tiltaks-klasse 1
Tømrerarbeid for tilbygg og fasadeendring
Terrasse
Terrasse
Ny terrasse tilknyttet tilbygg
Elektro
Elektriske installasjoner
Elektriske installasjoner i tilbygg
Tak
Taktekking
Taktekking for tilbygg og terrasse
Fasade
Kledning
Fasadeendring med ny kledning
Vinduer
Fasadevindu
Antall: 10
6 vinduer på ukjent fasade, 4 vinduer på nordfasade
Nye fasadevinduer i tilbygg og fasadeendring
Dører
Ytterdør
Antall: 1
1 dør på nordfasade
Ny ytterdør i tilbygg/fasadeendring
VVS
Sanitærinstallasjoner
Ansvarlig LØHRE VVS AS, tiltaks-klasse 1
Sanitærinstallasjoner i tilbygg
Grunnarbeid
Grunnarbeider
Ansvarlig HOEL & SØNNER AS, tiltaks-klasse 1
Grunnarbeider for tilbygg og terrasse
Balkong
Balkong
Antall: 1
1 balkong på ukjent fasade
Balkong i tilbygg/fasadeendring
Fasader
Hovedbygg
Ukjent
- Vinduer
- 6
- Dører
- 0
- Balkonger
- 1
- Synlige etasjer
- 3
Nord
- Vinduer
- 4
- Dører
- 1
- Synlige etasjer
- 2
Hendelser
14.04.2026
101/11 - Informasjon om BYA og BRA
01.04.2026
101/11 - Ett-trinns søknad - Endring av bygg - fasade,Endring av bygg - utvendig tilbygg større enn 50 m²