Extension Igangsettingstillatelse Enebolig

Tilbygg og fasadeendring på enebolig i Grytingveien 295

📍 Grytingveien 295 , 4993 SUNDEBRU

Nøkkelinfo

Sakstype
Tilbygg
Bygningstype
Enebolig
Bruksareal
85 m²
Boenheter
1
Kommune
Gjerstad
Fylke
Agder
Gnr / Bnr
6 / 2
Saksnummer
2026/306
Fase
Igangsettingstillatelse

Om byggesaken

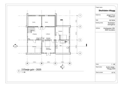
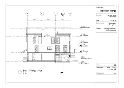
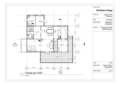
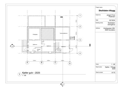
Ny tilbygg og fasadeendring på en eksisterende enebolig i Grytingveien 295. Tilbygget omfatter flere etasjer med rom som soverom, bad, loftsstue, kontor, hagestue, vaskerom og yttergang. Bygget har trekledning og saltak med teglstein. Fasaden har flere vinduer og dører fordelt på alle himmelretninger, og det er pipe på bygget. Det er to trapper i bygget, og kjellerrom med tekniske rom inngår i prosjektet. Bygget har et samlet areal på ca. 84,5 m² i hovedetasjen, med tillegg av tilbygg i andre etasje og kjeller.

Produkter og materialer

Elektro Elektrisk anlegg

Elektriske installasjoner i tilbygg og eksisterende bygg

Bad Våtromsinnredning

Antall: 2

Innredning og overflater for bad i tilbygg og eksisterende bygg

Gulv Innvendige gulvflater

Gulvbelegg og overflater i tilbygg og eksisterende bygg

VVS Sanitær og varmeinstallasjoner

VVS-installasjoner for bad, vaskerom og øvrige rom i tilbygg

Trapper Innvendige trapper

Antall: 2

To innvendige trapper i bygget mellom etasjer

Tømrer Bygging av tilbygg og innvendige konstruksjoner

Tømrerarbeid for tilbygg, inkludert vegger, tak og innvendige rom

Vinduer Fasadevindu

Antall: 14

Vinduer fordelt på fasader nord, sør, øst og vest

Nye og eksisterende fasadevinduer i tilbygg og hovedbygg

Dører Ytterdører og innerdører

Antall: 14

Dører i fasade og innvendig i tilbygg og eksisterende bygg

Ytterdører og innerdører til tilbygg og eksisterende bygg

Fasade Trekledning

🧱 Tre

Fasade med trekledning på alle sider

Trekledning til fasadeendring på tilbygg og eksisterende bygg

Betong Grunnmur og kjeller

Betongarbeid for kjeller og grunnmur i tilbygg

Tak Saltak med teglstein

🧱 Teglstein

Saltak med teglstein som takmateriale

Nytt saltak med teglstein på tilbygg og eksisterende bygg

Fasader

Skeilidalen våningshus

Nord
Materiale
Tre
Taktype
Saltak
Takmat.
Tegl
Vinduer
4
Dører
1
Synlige etasjer
2
Sør
Materiale
Tre
Taktype
Saltak
Takmat.
Tegl
Vinduer
4
Dører
1
Balkonger
1
Synlige etasjer
2
Øst
Materiale
Tre
Taktype
Saltak
Takmat.
Tegl
Vinduer
4
Dører
1
Balkonger
1
Synlige etasjer
2
Vest
Materiale
Tre
Taktype
Saltak
Takmat.
Tegl
Vinduer
2
Dører
1
Balkonger
1
Synlige etasjer
2

Hendelser

17.03.2026 Faktura grunnlag - Igangsettingstillatelse fase 2 - Grytingveien 295
17.03.2026 Grytingveien 295, vedtak - IG fase 2
17.03.2026 Søknad om Igangsettingstillatelse - Fase 2