Extension UnderBehandling Enebolig

Tilbygg til enebolig i Haldenveien 343, Lillestrøm

📍 Haldenveien 343 , 1923 SØRUM

Nøkkelinfo

Sakstype
Tilbygg
Bygningstype
Enebolig
Boenheter
1
Kommune
Lillestrøm
Fylke
Akershus
Gnr / Bnr
253 / 21
Saksnummer
25/23112
Fase
Under behandling

Om byggesaken

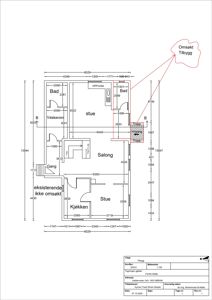
Ny tilbygg til eksisterende enebolig i Haldenveien 343, Lillestrøm, med to etasjer og saltak. Tilbygget inkluderer blant annet nye rom som stue, kjøkken, bad og vaskerom, med tilhørende trapper til underetasje. Fasader mot alle himmelretninger er oppdatert med nye vinduer og dører, og eksisterende bygningsmasse er tydelig markert som ikke omsøkt. Prosjektet omfatter også oppgradering av boligens funksjonalitet og estetikk, med tilpasning til eksisterende arkitektur og hensyn til kulturminne. Garasje er trukket fra søknaden, og tiltaket er prosjektert i henhold til gjeldende tekniske krav, inkludert brannsikkerhet og geoteknisk vurdering.

Produkter og materialer

Maling Innvendig og utvendig maling

Maling av fasader og innvendige flater i tilbygget

Overflatebehandling av tilbygget for estetikk og beskyttelse

Tak Saltak

Antall: 1

Saltak på tilbygget, tilpasset eksisterende takform

Nytt saltak på tilbygget, arkitektonisk tilpasset eksisterende bolig

Tømrer Bygningskonstruksjon

🧱 Tre

Tømrerarbeid for vegger, tak og innvendige konstruksjoner

Tømrerarbeid for oppføring av tilbygget i tre

Trapper Innvendige trapper

Antall: 2

Trapper til underetasje og mellom etasjer i tilbygget

Innvendige trapper i tilbygget for adkomst til underetasje og etasjer

Isolasjon Bygningsisolasjon

Isolasjon i vegger, tak og gulv iht. TEK17

Isolasjon for energieffektivitet og komfort i tilbygget

Dører Ytterdører

Ytterdører i tilbygget, ikke spesifisert antall

Ytterdører til tilbygget, tilpasset eksisterende bygg

Elektro Elektrisk anlegg

Elektrisk installasjon i tilbygget, inkludert belysning og stikkontakter

Elektrisk anlegg for nytt tilbygg, i henhold til forskrifter

Fasade Vinduer

Antall: 4

Vinduer i fasade mot øst, antatt 2- og 3-lags glass

Nye fasadevinduer i tilbygget, inkludert vinduer i østfasade

Mur Grunnmur

Antall: 1

Grunnmur for tilbygget, iht. gjeldende forskrifter

Ny grunnmur for tilbygget, fundamentering iht. geoteknisk vurdering

VVS Sanitærinstallasjoner

Bad og vaskerom med sanitærutstyr og rørinstallasjoner

VVS-installasjoner for bad og vaskerom i tilbygget

Grunnarbeid Oppmåling og grunnarbeid

Oppmålingsforretning og grunnarbeid for tilbygget

Grunnarbeid og oppmåling for korrekt plassering og fundamentering

Gulv Innvendige gulv

Gulv i tilbygget, materialvalg ikke spesifisert

Innvendige gulv i tilbygget, tilpasset boligstandard

Fasader

Enebolig

Øst
Taktype
Saltak
Vinduer
4
Dører
0
Synlige etasjer
2

Hendelser

09.04.2026 25/23112-17 253/21 Svar på mangelbrev - Søknad om garasje trekkes tilbake
20.03.2026 25/23112-14 253/21, Haldenveien 343, mangelbrev nr. 2 til søknad om tilbygg til bolig og frittliggende garasje
18.03.2026 25/23112-13 253/21 Ytterligere merknad til nabovarsel og svar på nabovarsel
16.03.2026 25/23112-11 253/21 Ber om tilbakemelding
11.02.2026 25/23112-10 253/21 Vedrørende plassering av tiltak - oppdatert situasjonsplan
09.02.2026 25/23112-9 253/21 Svar på nabomerknad
06.02.2026 25/23112-8 253/21, Haldenveien 343, svar på spørsmål om status og orientering om behov for mer dokumentasjon
04.02.2026 25/23112-7 253/21 Spørsmål om status og behov for ytterligere opplysninger
29.12.2025 25/23112-6 253/21 Søknad om dispensasjon
18.12.2025 25/23112-5 253/21, Haldenveien 343, utvidet frist for supplering