Extension Rammetillatelse Enebolig

Tilbygg med nytt soverom på enebolig i Herregårdsvegen 15, Ulefoss

📍 Herregårdsvegen 15 , 3830 ULEFOSS

Nøkkelinfo

Sakstype
Tilbygg
Bygningstype
Enebolig
Bruksareal
10 m²
Boenheter
1
Kommune
Nome
Fylke
Telemark
Gnr / Bnr
11 / 254
Saksnummer
26/525
Fase
Rammetillatelse

Om byggesaken

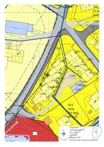
Ny påbygging av et tilbygg på ca. 10 m² BRA på en enebolig i Herregårdsvegen 15, Ulefoss. Tilbygget bygges som en innbygging av eksisterende veranda og vil inneholde et nytt soverom. Det blir en forlengelse av eksisterende takflate med saltak og trekledning, og vegg mot naboeiendom utføres med brannskille i henhold til TEK17. Eksisterende soverom fjernes og arealet legges til stue. Bygget ligger delvis innenfor regulert byggegrense, men det er gitt dispensasjon for dette. Det er én etasje, og tiltaket inkluderer fundamentering, branntekniske løsninger, og tilpasning til eksisterende boligstruktur.

Produkter og materialer

Vinduer Fasadevindu

Antall: 1

Vindu plassert på vegg mot sør for å unngå lys fra Herregårdsvegen

Nytt vindu i tilbygget for soverom, plassert mot sør

Gulv Innvendig gulv

Innvendig gulv i tilbygget, type ikke spesifisert

Grunnarbeid Fundamentering

🧱 Betong grunnmur

Fundamentering med grunnmur som forstøtningsmur mot overvannsledning

Fundamentering og grunnmur for tilbygget, tilpasset overvannsledning under tomt

Maling Innvendig og utvendig maling

Maling av innvendige og utvendige flater i tilbygget

Brannvern Brannskille vegg

🧱 Bindingsverk 48x148 mm, 148 mm steinullisolasjon, 12 mm gipsplater

Antall: 1

Brannskille mot naboeiendom i henhold til NBI byggdetaljblad 524.305, EI30 konstruksjon

Brannskille vegg mellom boenheter i rekkehus/kjedehus

Dører Innvendig dør

Antall: 1

Dør mellom stue og nytt soverom

Innvendig dør til nytt soverom i tilbygget

Ventilasjon Ventilasjonssystem

Ventilasjon i tilbygget i henhold til TEK17 krav

Tømrer Bindingsverk og konstruksjon

🧱 Tre

Bindingsverk for vegger og tak, inkludert isolasjon og dampsperre

Tømrerarbeid for vegger, tak og brannskille i tilbygget

Tak Saltak med takstein

🧱 Tegl takstein

Saltak med tegl takstein, forlengelse av eksisterende takflate

Tak med saltak og tegl takstein som eksisterende bolig

Elektro Belysning og strøm

Elektrisk installasjon for belysning og strøm i tilbygget

Fasade Trekledning

🧱 Tre

Trekledning som eksisterende bolig

Fasade kledd med trepanel som eksisterende bolig

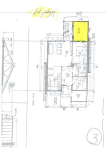
Plantegning

Enebolig 74.9 m²

Etasje 1 74.9 m²

Rom Areal Vinduer Dører
Entré 3/01 7.4 m² 0 2
Kjøkken 3/02 12.0 m² 0 1
Stue 3/03 21.4 m² 2 1
Sov 3/04 12.2 m² 1 1
Sov 3/05 7.0 m² 0 1
Bad/Vask/WC 3/06 6.5 m² 0 1
Utebod 3/09 5.6 m² 0 1
Veranda 10.4 0.0 m² 0 0

Fasader

Enebolig

Nord
Materiale
Tre
Taktype
Saltak
Vinduer
1
Dører
0
Synlige etasjer
1
Sør
Materiale
Tre
Taktype
Saltak
Takmat.
Tegl
Vinduer
1
Dører
1
Synlige etasjer
1
Vest
Materiale
Tre
Taktype
Saltak
Vinduer
0
Dører
0
Synlige etasjer
1
Øst
Materiale
Tre
Taktype
Saltak
Takmat.
Tegl
Vinduer
2
Dører
1
Synlige etasjer
1
Sydvest
Materiale
Tre
Taktype
Saltak
Vinduer
2
Dører
0
Synlige etasjer
1
Sydøst
Materiale
Tre
Taktype
Saltak
Vinduer
3
Dører
1
Synlige etasjer
1
Nordøst
Materiale
Tre
Taktype
Saltak
Vinduer
0
Dører
0
Synlige etasjer
1
Nordvest
Materiale
Tre
Taktype
Saltak
Vinduer
4
Dører
1
Synlige etasjer
1
Sørvest
Taktype
Saltak
Vinduer
0
Dører
0
Synlige etasjer
1

Hendelser

20.04.2026 Tillatelse til tiltak - tilbygg - Herregårdsvegen 15 - Gbnr 11/254
20.04.2026 Korrigert tegninger
15.04.2026 Korrigert tegninger
13.04.2026 Byggetegninger tilbygg Herregårdsvegen 15
27.03.2026 Søknad om tillatelse til tiltak
27.03.2026 Tilbakemelding om mangler i søknad - tilbygg - Herregårdsvegen 15 - Gbnr 11/254
23.03.2026 Underskrevet erklæring - gbnr 11/254
03.03.2026 Dispensasjon fra regulert byggegrense - tilbygg - Herregårdsvegen 15 - gbnr. 11/254, Herregårdsvegen 15 - Gbnr 11/254
28.01.2026 Anmodning om uttale til søknad om dispensasjon fra byggegrense for oppføring av tilbygg til bolig, Herregårdsvegen 15 - gbnr. 11/254, Herregårdsvegen 15 - Gbnr 11/254
26.01.2026 Søknad om dispensasjon etter plan- og bygningsloven kap. 19