Facade
Tegning av en fasade (vest) med vinduer, dører og balkong.
1 / 20
Extension
Unknown
Enebolig
Tilbygg av bolig og garasje
📍 Holtevegen 420 , 2372 BRØTTUM
Nøkkelinfo
- Sakstype
- Tilbygg
- Bygningstype
- Enebolig
- Kommune
- Ringsaker
- Fylke
- Innlandet
- Gnr / Bnr
- 427 / 31
- Saksnummer
- 26/3601
- Fase
- Unknown
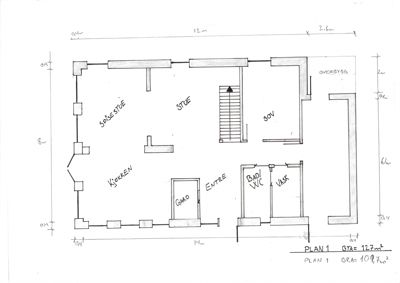
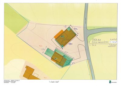
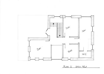
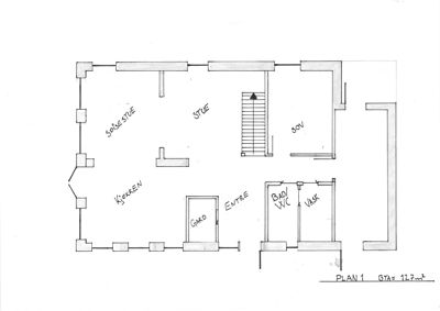
Om byggesaken
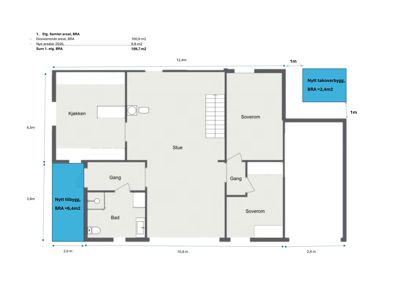
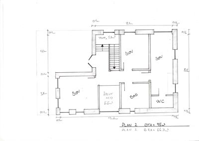
Saken gjelder søknad om tillatelse til tilbygg av bolig og garasje på eiendom med Gbnr 427/31. Prosjektet inkluderer ombygging av eksisterende bolig, ny fasade, situasjonsplaner og beregning av arealutnyttelse.
Fasader
Enebolig
Vest
- Materiale
- Tre
- Taktype
- Flatt tak
- Vinduer
- 4
- Dører
- 3
- Balkonger
- 1
- Synlige etasjer
- 2
Øst
- Materiale
- Tre
- Taktype
- Flatt tak
- Høyde
- 8.0 m
- Vinduer
- 7
- Dører
- 1
- Balkonger
- 1
- Synlige etasjer
- 2
Sør
- Materiale
- Tre
- Taktype
- Saltak
- Vinduer
- 3
- Dører
- 0
- Balkonger
- 1
- Synlige etasjer
- 2
Nord
- Materiale
- Tre
- Taktype
- Saltak
- Vinduer
- 2
- Dører
- 0
- Synlige etasjer
- 2
Hendelser
20.04.2026
Vedtak - Tilbygg bolig og garasje på eiendom med Gbnr. 427/31, Holtevegen 420, Brøttum
13.04.2026
Avstandserklæring - Tilbygg bolig, Gbnr 427/31, Holtevegen 420, Brøttum
08.04.2026
Supplerende opplysninger - Tilbygg bolig, Gbnr 427/31, Holtevegen 420, Brøttum
10.03.2026
Tilbakemelding vedrørende ombygging av bolig og tilbygg garasje på eiendom gnr 427 bnr 31, Holtevegen 420, Brøttum
18.02.2026
Søknad om tillatelse - Tilbygg bolig, Gbnr 427/31, Holtevegen 420, Brøttum