Extension UnderBehandling Enebolig

Bygging av balkong og ombygging av vindfang i Idrettsveien 16

📍 Idrettsveien 16 , 8480 ANDENES

Nøkkelinfo

Sakstype
Tilbygg
Bygningstype
Enebolig
Boenheter
1
Kommune
Andøy
Fylke
Nordland - Nordlánnda
Gnr / Bnr
42 / 262
Saksnummer
2023/2110
Fase
Under behandling

Om byggesaken

Ny balkong i 2. etasje bygges på en eksisterende enebolig i Idrettsveien 16, med tilhørende ombygging av inngangspartiet (vindfang). Balkongen plasseres nærmere kommunal veg enn 15 meter, med dispensasjon innvilget for 11,9 meters avstand. Ombyggingen inkluderer riving av eksisterende vindfang, montering av nytt vindfang, samt endring av størrelse på vinduer og dører, som utgjør en vesentlig fasadeendring. Bygningen har to etasjer med trekledning og kombinasjon av flatt tak og valmtak. Fasadeendringene dokumenteres med før- og ettertegninger. Byggearbeidene er pågående, og tiltakshaver må søke ferdigattest når arbeidet er fullført.

Produkter og materialer

Fasade Ombygging av vindfang og fasadeendring

🧱 Tre kledning

Riving av eksisterende vindfang, montering av nytt vindfang, endring av størrelse på vinduer og dører

Ombygging av inngangsparti med fasadeendringer som inkluderer nye vinduer og dører

Vinduer Fasadevindu

🧱 Tre/Aluminium

Antall: 14

Endring av størrelse på vinduer i fasade, dokumentert i tegninger

Nye og endrede fasadevinduer i forbindelse med ombygging

Dører Ytterdør og verandadør

🧱 Tre/Glass

Antall: 4

Endring av størrelse på dører i fasade, inkludert ny inngangsdør i vindfang

Nye og endrede ytterdører i forbindelse med ombygging av vindfang

Tømrer Bygging av balkong og vindfang

🧱 Treverk

Tømrerarbeid for balkong og ombygging av inngangsparti

Tømrerarbeid knyttet til balkong og vindfang

Maling Utvendig maling

🧱 Maling for trefasade

Maling av ny balkong og ombygget fasade i tre

Overflatebehandling av treverk på balkong og fasade

Balkong Balkong i 2. etasje

🧱 Tre og metall

Antall: 1

Balkong plassert 11,9 m fra senterlinje veg, med dispensasjon fra vegloven

Ny balkong i 2. etasje på enebolig, nærmere veg enn 15 m med dispensasjon

Tak Flatt tak og valmtak

🧱 Taktekking i henhold til eksisterende bygg

Balkong og tilbygg tilpasset eksisterende takformer (flatt tak og valmtak)

Takarbeid i forbindelse med balkongbygging og ombygging

Grunnarbeid Fundamentering for balkong

Fundamentering og grunnarbeid for ny balkong i 2. etasje

Grunnarbeid for balkongkonstruksjon

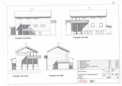
Fasader

Enebolig

Nord
Materiale
Tre
Taktype
Flatt tak
Vinduer
5
Dører
2
Balkonger
1
Synlige etasjer
2
Sør
Materiale
Tre
Taktype
Flatt tak
Vinduer
6
Dører
1
Balkonger
1
Synlige etasjer
2
Vest
Materiale
Tre
Taktype
Valmtak
Vinduer
2
Dører
1
Balkonger
1
Synlige etasjer
2
Øst
Materiale
Tre
Taktype
Valmtak
Vinduer
1
Dører
0
Balkonger
1
Synlige etasjer
2

Hendelser

17.04.2026 Idrettsveien 16 Andenes
17.04.2026 Varsel om at vi avslutter byggesaken
27.03.2026 Vi minner om at du må søke om ferdigattest
06.10.2023 Behandling av søknad om disp fra vegloven - Gnr 42 bnr 262 - Idrettsveien 16
06.10.2023 Tillatelse til tiltak - gnr 42 bnr 262 - Idrettsveien 16 - Bygging av balkong og ombygging vf
20.07.2023 Bilder Idrettsveien 16
19.07.2023 Supplering av søknad - Gnr 42 bnr 262 - Idrettsveien 16
19.07.2023 Fortsatt mangler i din sak 23/2110
17.07.2023 Supplering av søknad - Gnr 42 bnr 262 - Idrettsveien 16
14.07.2023 Tilbakemelding om mangler - gnr 42 bnr 262 - Idrettsveien 16 - Bygging av balkong og ombygging vf
12.06.2023 Søknad om tillatelse i ett trinn til ombygging av inngangsparti og bygging av balkong