Extension UnderBehandling Enebolig

Tilbygg og fasadeendringer på våningshus, Ihlevegen 86

📍 Ihlevegen 86 , 2840 REINSVOLL

Nøkkelinfo

Sakstype
Tilbygg
Bygningstype
Enebolig
Bruksareal
112 m²
Boenheter
1
Kommune
Vestre Toten
Fylke
Innlandet
Gnr / Bnr
46 / 2
Saksnummer
2026/2267
Fase
Under behandling

Om byggesaken

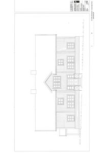
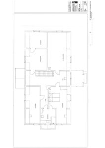
To tilbygg i to etasjer oppføres på eksisterende våningshus i Ihlevegen 86, med ett tilbygg mot nord og ett mot sør. Tilbyggene har samlet areal på over 50 m² og viderefører eksisterende saltak med samme gesims- og mønehøyde. Eksisterende fasader får ny vindsperre og ytterkledning i tre med stående panel i lys grå farge, og alle vinduer og ytterdører skiftes ut med koblede vinduer og nye dører i hvit farge for å opprettholde husets opprinnelige stil. Det legges nytt luftet tak med takstein. Innvendig isolasjon forbedres med 20 cm i vegger og 25 cm i himling i tilbyggene, og 15 cm ny isolasjon på langside. Tilbyggene inneholder blant annet utvidelse av kjøkken, stue, spisestue, garderobe, wc, vaskerom, dusj, soverom og baderom. Det etableres en ny trapp i tilbygget. Terreng og vegetasjon berøres minimalt, og eksisterende adkomst og parkering opprettholdes. Ventilasjon baseres på naturlig ventilasjon som i eksisterende bolig. Prosjektet inkluderer grunnarbeider, mur, betong, tømrerarbeid, sanitærinstallasjoner og murarbeid.

Produkter og materialer

Trapper Innvendig trapp

Antall: 1

Ny trapp i tilbygget i to etasjer

Tømrer Innvendige og utvendige tømrerarbeider

🧱 Tre

Komplette tømrerarbeider for oppføring av tilbygg

Tømrerarbeid for konstruksjoner, kledning, dører og vinduer

Fasade Ytterkledning i tre

🧱 Stående panel i lys grå farge

Ny vindsperre og ytterkledning som følger eksisterende fasadeuttrykk

Ny ytterkledning og vindsperre på alle fasader i tilbygg og eksisterende bolig

Grunnarbeid Grunn- og gravearbeider

Grunnarbeider for tilbygg

Grunn- og fundamenteringsarbeider for tilbygg

Elektro Elektriske installasjoner

Elektriske installasjoner i tilbygg (antatt nødvendig for nytt kjøkken, baderom etc.)

Mur Våtromsarbeid inkl. membran

Utførelse av våtrom med membran i tilbygg

Murarbeid i våtrom i tilbygg

Tak Saltak med takstein

🧱 Takstein

Nytt luftet yttertak med takstein, samme gesims- og mønehøyde som eksisterende

Nytt tak på tilbygg og eksisterende bolig

Vinduer Koblede vinduer i tre

🧱 Tre med 2-lags glass og 1-lags glass i koblet del

Antall: 14

Vinduer skiftes ut med koblede vinduer for å opprettholde gammel stil

Alle vinduer i tilbygg og eksisterende bolig skiftes ut med nye koblede vinduer

Betong Plasstøpte betongkonstruksjoner

Fundamenter, vegger, søyler, bjelker og dekker inkludert isolering og tetting

Betongarbeider for fundamentering og bærende konstruksjoner i tilbygg

Dører Ytterdører i tre

🧱 Tre, hvit farge

Nye ytterdører som følger eksisterende stil

Nye ytterdører til tilbygg og eksisterende bolig

VVS Sanitærinstallasjoner

Montering av bunnledninger, rørsystemer og tilkobling til eksisterende VA

Sanitærinstallasjoner i tilbygg, inkludert vaskerom, wc, dusj og baderom

Isolasjon Vegger og himling

🧱 Glava isolasjon

20 cm isolasjon i vegger og 25 cm i himling i tilbygg, 15 cm isolasjon på langside

Etterisolering av vegger og tak i tilbygg og eksisterende bolig

Fasader

Enebolig

Vest
Materiale
Tre
Taktype
Saltak
Vinduer
5
Dører
1
Synlige etasjer
2
Nord
Materiale
Tre
Taktype
Saltak
Vinduer
6
Dører
1
Synlige etasjer
2

Hendelser

10.04.2026 Utsettelse av frist for supplering av byggesøknad
10.04.2026 Anmodning om utsettelse av frist supplering
20.03.2026 Mangelbrev - Ett-trinns søknad - Fasadeendringer og tilbygg større enn 50 m²- Ihlevegen 86, Reinsvoll, gbnr. 46/2
18.02.2026 Bekreftelse på mottatt søknad - Ett-trinns søknad - Endring av bygg - utvendig tilbygg større enn 50 m² - Ihlevegen 86
18.02.2026 Ett-trinns søknad - Endring av bygg - utvendig tilbygg større enn 50 m²