Extension Ferdigattest Enebolig

Ombygging og tilbygg til enebolig i Jacob Jentofts vei 59

📍 Jacob Jentofts vei 59 , 8373 BALLSTAD

Nøkkelinfo

Sakstype
Tilbygg
Bygningstype
Enebolig
Bruksareal
396 m²
Boenheter
1
Kommune
Vestvågøy
Fylke
Nordland - Nordlánnda
Gnr / Bnr
10 / 27
Saksnummer
24/3150
Fase
Ferdigattest

Om byggesaken

Ombygging og tilbygg til en eksisterende enebolig med totalt bruttoareal på 396,4 m² fordelt på to etasjer. Prosjektet inkluderer en utvidet 1. etasje på 177,8 m² og en 2. etasje på 218,6 m² med rom som stuer, kjøkken, flere soverom, bad, hobbyrom, garasje og tekniske rom. Bygget har saltak og trekledning, med flere vinduer og dører fordelt på fasader i alle himmelretninger. Det er etablert takterrasse og balkonger med glassrekkverk, samt garasje med port. Bygget har pipe og er oppført med moderne tekniske installasjoner for vann, avløp og ventilasjon. Fasader er i tre med saltak, gesimshøyde ca. 6,5 m og mønehøyde ca. 8,2 m.

Produkter og materialer

Betong Grunnmur og fundament

🧱 Betong

Grunnarbeider og fundament utført av FRANK'S MASKIN AS

Betongfundament og grunnmur for tilbygg og ombygging

VVS Vannforsyning og avløp

Installasjon av vann- og avløpsanlegg utført av VIBAKK VVS TEKNIKK AS

Vann- og avløpsinstallasjoner for bolig

Fasade Trekledning

🧱 Tre

Trekledning på alle fasader

Trekledning som ytterkledning på bygget

Tømrer Tømrerarbeid og trekonstruksjoner

🧱 Tre

Tømrerarbeid og montering av trekonstruksjoner utført av LE BYGG AS

Trekonstruksjoner for tilbygg og ombygging

Terrasse Takterrasse og veranda

🧱 Tre og glass

Antall: 2

Takterrasse på 40,7 m² og veranda på 9,3 m² med glassrekkverk

Utendørs oppholdsarealer med rekkverk

Riving Riving og miljøsanering

Riving og miljøsanering utført av FRANK'S MASKIN AS

Riving av eksisterende konstruksjoner for tilbygg

Tak Taktekkingsarbeid

Taktekkingsarbeid utført av LE BYGG AS

Taktekking for saltak

Rekkverk Glassrekkverk balkong

🧱 Glass

Antall: 2

Glassrekkverk på balkonger, midlertidig rekkverk installert pga. leveranseproblemer

Sikker glassrekkverk for balkonger

Bad Våtromsinnredning

Antall: 4

Bad og WC i 1. og 2. etasje, kontrollert av NORDPÅ TAKST AS

Innredning og tekniske installasjoner for bad og WC

Vinduer Fasadevindu

🧱 Tre med 3-lags energiglass

Antall: 27

Vinduer fordelt på fasader nord (5), vest (4), sør (6), øst (3) og i rom, totalt 27 vinduer

Fasadevinduer i tre med energiglass for naturlig lys og isolasjon

Trapper Innvendig trapp

🧱 Tre eller betong

Antall: 1

Innvendig trapp mellom etasjer

Trapp for intern kommunikasjon mellom 1. og 2. etasje

Tak Saltak

🧱 Tretak med takstein eller metall

Antall: 1

Saltak med gesimshøyde 6,5 m og mønehøyde 8,2 m

Saltak som taktype med tilhørende taktekking

Dører Ytterdører og balkongdører

🧱 Tre eller glassdører

Antall: 15

Dører fordelt på fasader og innvendig, inkludert balkongdører og garasjeport

Ytterdører, balkongdører og garasjeport for adkomst og utgang til uteområder

Garasjeport Garasjeport i tre eller metall

Antall: 1

Garasjeport på fasade nord og øst

Port for garasjeadkomst

Elektro Elektriske installasjoner

Elektriske installasjoner for belysning, strøm og tekniske systemer

Fullstendig elektrisk anlegg i bolig

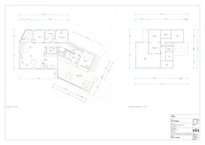
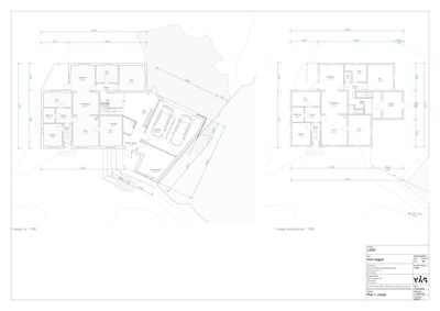
Plantegning

Enebolig 396.4 m²

Etasje 1 177.8 m²

Rom Areal Vinduer Dører
Stue 101 14.1 m² 1 1
Te-kjøkken 102 10.7 m² 0 1
Kjøkken 103 11.4 m² 1 1
Sov 104 12.6 m² 1 1
Bad 105 5.9 m² 0 1
WC 106 1.2 m² 0 1
Gang 107 4.2 m² 0 2
Hall 108 26.5 m² 0 1
Teknisk 109 2.7 m² 0 1
Sov 110 12.7 m² 1 1
Bad/wc 111 3.2 m² 0 1
Gang 112 4.3 m² 0 2
Hobby 113 7.7 m² 1 1
Gang 114 3.0 m² 0 1
Garasje 115 36.3 m² 2 1
Grovinnngang 116 4.3 m² 0 1
Disponibelt 117 19.3 m² 0 1

Etasje 2 218.6 m²

Rom Areal Vinduer Dører
Stue 201 47.5 m² 1 1
Kjøkken 202 18.3 m² 0 1
TV-Stue 203 11.5 m² 1 1
Baderom 204 6.9 m² 0 1
Kontor/gjesterom 205 12.9 m² 1 1
Korridor 206 3.1 m² 0 0
Garderobe 207 12.5 m² 0 1
Baderom 208 8.5 m² 0 1
Soverom 209 14.6 m² 1 1
Walk In Closet 210 5.1 m² 0 1
Takterrasse 211 40.7 m² 0 1

Fasader

Enebolig

Nord
Materiale
Tre
Taktype
Saltak
Høyde
6.5 m
Mønehøyde
8.2 m
Vinduer
5
Dører
1
Balkonger
1
Synlige etasjer
2
Vest
Materiale
Tre
Taktype
Saltak
Høyde
6.5 m
Mønehøyde
8.2 m
Vinduer
4
Dører
1
Balkonger
1
Synlige etasjer
2
Sør
Materiale
Tre
Taktype
Saltak
Høyde
6.5 m
Mønehøyde
8.2 m
Vinduer
6
Dører
2
Synlige etasjer
2
Øst
Materiale
Tre
Taktype
Saltak
Høyde
6.5 m
Mønehøyde
8.2 m
Vinduer
3
Dører
1
Synlige etasjer
2

Hendelser

21.04.2026 Ferdigattest - ombygging og oppføring av tilbygg til enebolig - gnr 10 bnr 27
15.04.2026 Søknad om ferdigattest - gnr 10 bnr 27
05.08.2025 Midlertidig brukstillatelse - tiltak med ansvarsrett - Endring av bygg - gnr 10 bnr 27
31.07.2025 Søknad om midlertidig brukstillatelse - gnr 10 bnr 27