Extension Soeknad Enebolig

Tilbygg, riving og ny garasje på Kallumlia 11, Moss

📍 Kallumlia 11 , 1526 MOSS

Nøkkelinfo

Sakstype
Tilbygg
Bygningstype
Enebolig
Bruksareal
214 m²
Boenheter
1
Kommune
Moss
Fylke
Østfold
Gnr / Bnr
193 / 219
Saksnummer
2025/10343
Fase
Søknad

Om byggesaken

Prosjektet omfatter riving av deler av eksisterende bolig og garasje på Kallumlia 11 i Moss, samt oppføring av et tilbygg over to etasjer på 33,1 m² og et takopplett på 14,1 m². Det bygges også en ny garasje med et bebygd areal på 49,9 m². Eksisterende bolig er en enebolig med to etasjer over kjeller, kledd i grønnmalt stående tømmermannskledning og saltak tekket med rød takstein. Tilbygget og garasjen viderefører eksisterende materialvalg og farger, med stående kledning og rød takstein. Fasadeendringer inkluderer nye vinduer og dører i lysere grønn tone, samt endret vindusplassering for bedre romsammenheng og lysinnslipp. Ny terrasse etableres mellom tilbygg og garasje, og terreng endres minimalt med massefylling for fall. Prosjektet inkluderer også flytting av ildsted, endring av bærekonstruksjon og mulig heving av tak. Det er gitt dispensasjon fra byggegrense mot vei, og tiltaket følger krav til utnyttelsesgrad og parkering.

Produkter og materialer

Trapper Innvendig trapp

Antall: 1

Eksisterende trapp beholdes, sentralt plassert i bolig

Innvendig trapp i bolig

Vinduer Fasadevindu

🧱 tre med lys grønn ramme

Antall: 26

Vindusdimensjoner varierende, bl.a. 8x13, 16x21, 9x21 cm, plassert på alle fasader i ulike størrelser for bedre lys og romsammenheng

Nye fasadevinduer i lys grønn tone, tilpasset ny planløsning og fasadeendringer

Dører Ytterdører

🧱 tre i lys grønn tone

Antall: 7

Nye ytterdører i fasader, inkludert inngangsdør med takoverbygg

Nye ytterdører i fasadeendring, inkludert inngangsdør med takoverbygg

Vinduer Takvindu

Antall: 3

Takvindu 780 x 980 mm

Takvinduer i takopplett for lysinnslipp

Betong Fundamentering

Plasstøpte betongkonstruksjoner for fundamentering

Fundamenteringsarbeid for tilbygg og ny garasje

Elektro Ventilasjon

Flexit veggventil med varmegjenvinning i garasje og bolig

Ventilasjonsanlegg med varmegjenvinning

VVS Sanitærinstallasjoner

Etablering av nye bad, nye stikkledninger til kommunalt nett

Nye sanitærinstallasjoner i bad og toalett

Fasade Stående kledning

🧱 Tre, grønnmalt

Stående tømmermannskledning i grønn farge, videreført på tilbygg og ny garasje

Fasade med stående grønnmalt kledning

VVS Varme og kuldeinstallasjoner

Etablering av nytt ildsted

Nye varme- og kuldeinstallasjoner, inkludert ildsted

Garasjeport Garasjeport

Antall: 1

Ny garasje med garasjeport, BYA 49,9 m²

Garasjeport til ny garasje

Riving Riving av deler av bolig og garasje

Riving av eksisterende garasje og deler av bolig

Riving av eksisterende bygningsdeler før oppføring av tilbygg og ny garasje

Pipe Stålpipe

🧱 Rustfritt stål

Antall: 1

Ny slank stålpipe

Ny pipe i rustfritt stål

Tak Saltak og pulttak

🧱 Rød takstein på saltak, platekledning i rødlig farge på pulttak takopplett

Saltak med rød takstein, takopplett med pulttak og platekledning

Nytt tak på tilbygg og garasje, samt takopplett med pulttak

Gulv Terrassebord

🧱 Tre

Ny terrasse mellom tilbygg og garasje

Terrasse i terrassebord mellom tilbygg og garasje

Grunnarbeid Massefylling

🧱 Fyllmasser

Fylling mot grunnmur for fall bort fra bygning

Massefylling for terrengtilpasning rundt grunnmur

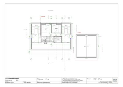
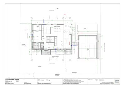
Plantegning

Enebolig 378.3 m²

Etasje 1 158.4 m²

Rom Areal Vinduer Dører
Stue 101 25.3 m² 2 1
Kjøkken og spisestue 102 37.4 m² 2 1
Soverom 103 11.5 m² 1 1
Walk-in 104 5.5 m² 0 1
Bad 105 5.2 m² 0 1
Toalett 106 1.7 m² 0 1
Trapperom 107 8.0 m² 0 1
Inngang 108 7.5 m² 0 1
Terrasse 109 6.4 m² 0 1
Garasje 110 41.9 m² 0 1

Etasje 2 103.6 m²

Rom Areal Vinduer Dører
Soverom 201 11.5 m² 1 1
Toalett 202 1.2 m² 0 1
Gang 203 8.2 m² 0 2
Bad 204 4.5 m² 0 1
Soverom 205 8.7 m² 1 1
Soverom 206 10.4 m² 1 1
Loftstue 207 9.7 m² 1 1
Bod 208 2.1 m² 1 1
Bod 209 3.5 m² 1 1
Bod 210 2.0 m² 1 1
Bod 211 3.6 m² 1 1
Bod 212 5.9 m² 1 1
Bod 213 24.0 m² 0 0

Etasje 0 116.3 m²

Rom Areal Vinduer Dører
Sov 001 12.7 m² 0 1
Stue/kjøkken 002 23.3 m² 3 1
Bod 003 4.7 m² 0 1
Trappegang 004 6.9 m² 0 1
Bod 005 1.5 m² 0 1
Vaskerom 006 8.5 m² 0 1
Bad 007 5.1 m² 0 1
Gang 008 7.6 m² 0 1
Lager 0 38.0 m² 0 0
Vaske- og tørkerom 1 21.0 m² 0 0
Lager 2 38.0 m² 0 0
Bod 3 10.0 m² 0 0

Fasader

Enebolig

Nord-Øst
Materiale
Tre
Taktype
Saltak
Takmat.
Tegl
Vinduer
5
Dører
1
Balkonger
1
Synlige etasjer
2
Nord-Vest
Materiale
Tre
Taktype
Saltak
Takmat.
Tegl
Vinduer
2
Dører
1
Synlige etasjer
2
Sør-Øst
Materiale
Tre
Taktype
Saltak
Takmat.
Tegl
Vinduer
3
Dører
1
Synlige etasjer
2
Sør-Vest
Materiale
Tre
Taktype
Saltak
Takmat.
Tegl
Vinduer
6
Dører
2
Balkonger
2
Synlige etasjer
2
Vest
Materiale
Tre
Taktype
Saltak
Vinduer
2
Dører
1
Synlige etasjer
2
Nord
Materiale
Tre
Taktype
Flatt tak
Vinduer
3
Dører
0
Synlige etasjer
1
Sør
Materiale
Tre
Taktype
Flatt tak
Vinduer
3
Dører
1
Synlige etasjer
1
Øst
Materiale
Tre
Taktype
Saltak
Vinduer
5
Dører
1
Synlige etasjer
2

Garasje

Sør-Øst
Materiale
Tre
Taktype
Pulttak
Takmat.
Tegl
Vinduer
0
Dører
1
Synlige etasjer
1

Hendelser

15.04.2026 Kallumlia 11 - 193/219 - oversendelse for uttalelse - riving - utvidelse - endring av bolig og garasje
30.03.2026 Kallumlia 11 - 193/219 - ett-trinnssøknad - riving av deler av bygget og tilbygg til eksisterende bolig og garasje
20.01.2026 Kallumlia 11 - 193/219 - referat fra forhåndskonferanse - riving - utvidelse - endring av bolig og garasje
17.12.2025 Kallumlia 11 - 193/219 - innkalling til møte - riving, utvidelse, endring av bolig og garasje
12.12.2025 Kallumlia 11 - 193/219 - forhåndskonferanse - riving, utvidelse, endring av bolig og garasje