Extension Rammetillatelse Enebolig

Hovedombygging, tilbygg og garasje på Kardemommekroken 4, Fredrikstad

📍 Kardemommekroken 4 , 1622 GRESSVIK

Nøkkelinfo

Sakstype
Tilbygg
Bygningstype
Enebolig
Bruksareal
312 m²
Boenheter
1
Kommune
Fredrikstad
Fylke
Østfold
Gnr / Bnr
53 / 214
Saksnummer
2026/5965
Fase
Rammetillatelse

Om byggesaken

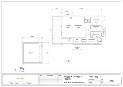
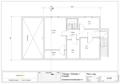
Prosjektet omfatter en omfattende hovedombygging av en eksisterende enebolig på Kardemommekroken 4, inkludert et tilbygg på 24 m² som forlengelse av boligen med tilsvarende takform og materialbruk for å sikre helhetlig arkitektur. Det oppføres også en ny frittstående garasje på 49 m² med saltak, tilpasset hovedbygget og omkringliggende bebyggelse. Kjelleren endres fra tilleggsdel til hoveddel med varig oppholdsrom, inkludert nye rømningsvinduer og tilfredsstillende lysforhold. Fasadeendringer og påbygg med takopplett utføres med samme takvinkel som eksisterende for å bevare områdets visuelle kvaliteter. En ny stålpipe av typen Jøtul NVI 2000 installeres, med tilhørende ildsted Scan 5000-serien. Tiltaket inkluderer også bruksendring, fasadeendringer og riving av eksisterende pipe. Bygget har to trapper og flere rom fordelt på kjeller, 1. og 2. etasje, med totalt areal på ca. 172,8 m² for boligen og 139 m² for tilbygg og garasje.

Produkter og materialer

Bad Bad og WC innredning

Antall: 2

Bad på 13 m² og WC på 3 m² med standard sanitærutstyr

Bad og WC i bolig og tilbygg

Ventilasjon Ventilasjonssystem

Ventilasjon for bolig og tilbygg

Tømrer Tømrerarbeid

🧱 Trevirke

Tømrerarbeid for tilbygg, påbygg, garasje og fasadeendringer

Tømrerarbeid utført av M&M BYGG AS

Mur Grunnmur og fundament

🧱 Betong

Fundament og grunnmur for tilbygg og garasje

Betongarbeid for fundamentering av tilbygg og garasje

Fasade Trepanel

🧱 Tre

Fasade i tre med tilpasning til eksisterende bebyggelse, malt i farger som harmonerer med området

Fasadeendringer og tilbygg med trepanel som matcher eksisterende bolig

Pipe Stålpipe NVI 2000

🧱 Rustfritt stål, isolert

Antall: 1

Jøtul NVI 2000 stålpipe med CE-merking, T450 og T600 godkjenning, monteringsanvisning og FDV-dokumentasjon

Ny isolert stålpipe med tilhørende ildsted

Elektro Elektriske installasjoner

Elektriske installasjoner i bolig og tilbygg

Garasjeport Garasjeport til frittstående garasje

Antall: 1

Garasjeport til garasje på 49 m² med saltak

Port til ny frittstående garasje

Trapper Innvendige trapper

Antall: 3

To trapper i bolig og en utvendig trapp for rømningsvei fra kjeller

Gulv Gulvbelegg og parkett

Gulvbelegg i bolig og tilbygg

Isolasjon Isolasjon i vegger, tak og gulv

🧱 Mineralull/steinull

Isolasjon i nye konstruksjoner for å oppfylle TEK17 krav

Isolasjon for energieffektivitet og komfort

Maling Utvendig og innvendig maling

🧱 Maling og beis

Maling av fasade og innvendige overflater

Overflatebehandling for beskyttelse og estetikk

Tak Saltak med takopplett

🧱 Takstein

Takopplett med samme takvinkel som eksisterende, saltak på bolig og garasje

Nytt tak på tilbygg og garasje, samt påbygg med takopplett

VVS VVS-installasjoner

VVS-installasjoner utført av VIKER VVS AS, inkludert sanitær og varme

VVS-arbeid i bolig, tilbygg og garasje

Vinduer Rømningsvinduer i kjeller

🧱 3-lags glass

Antall: 3

Vinduer 1000 x 1200 mm med fri åpning for rømningsvei, underkant ca. 950 mm over gulv, lyskasser 1100 x 700 mm

Vinduer for tilfredsstillende dagslys og rømningsvei i kjeller ved bruksendring til varig oppholdsrom

Dører Ytterdører og innerdører i tilbygg og bolig

Antall: 15

Dører til rom i bolig og tilbygg, inkludert garasje og bod

Fasader

Enebolig

Øst
Materiale
Tre
Taktype
Saltak
Høyde
5.5 m
Mønehøyde
7.0 m
Vinduer
4
Dører
2
Synlige etasjer
2
Vest
Materiale
Tre
Taktype
Saltak
Høyde
6.0 m
Mønehøyde
8.0 m
Vinduer
2
Dører
1
Synlige etasjer
2
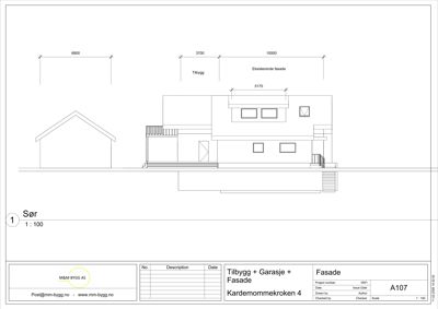
Sør
Materiale
Tre
Taktype
Saltak
Vinduer
2
Dører
1
Synlige etasjer
2
Nord
Materiale
Tre
Taktype
Flatt tak
Vinduer
0
Dører
1
Synlige etasjer
2

Eksisterende fasade

Nord
Vinduer
1
Dører
0
Synlige etasjer
2

Garasje

Nord
Taktype
Saltak
Vinduer
0
Dører
1
Synlige etasjer
1

Hendelser

13.04.2026 Tillatelse - Endring av bygg - hovedombygging, Tilbygg over 50 m² - Kardemommekroken 4 - Eiendom 53/214
13.04.2026 Supplering av søknad - eiendom 53/214 - Kardemommekroken 4
25.03.2026 Revidert søknad – Kardemommekroken 4
18.03.2026 Mangelfull søknad - Endring av bygg - hovedombygging, Tilbygg over 50 m² - Kardemommekroken 4 - Eiendom 53/214
23.02.2026 Ett-trinns søknad - Kardemommekroken 4 - Eiendom 53/214 - Endring av bygg - hovedombygging,Tilbygg over 50 m²
23.02.2026 Bekreftelse på mottatt søknad - Ett-trinns søknad - Endring av bygg - hovedombygging, Tilbygg over 50 m² - Kardemommekroken 4 - Eiendom 53/214