Extension UnderBehandling Enebolig

Tilbygg og fasadeendring på enebolig, Killingrudalleen 5

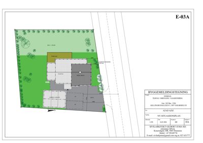
📍 Killingrudalleen 5 , 3057 SOLBERGELVA

Nøkkelinfo

Sakstype
Tilbygg
Bygningstype
Enebolig
Bruksareal
92 m²
Boenheter
1
Kommune
Drammen
Fylke
Buskerud
Gnr / Bnr
245 / 1594
Saksnummer
26/03043
Fase
Under behandling

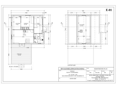
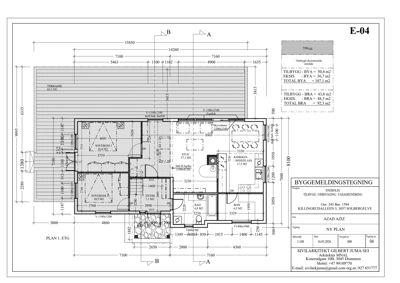
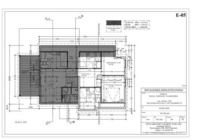
Om byggesaken

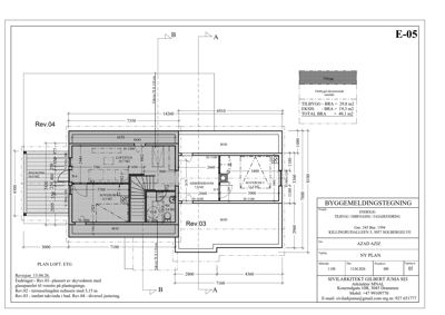
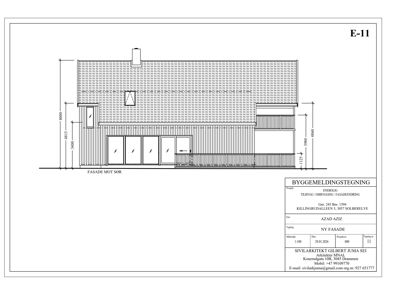
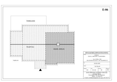
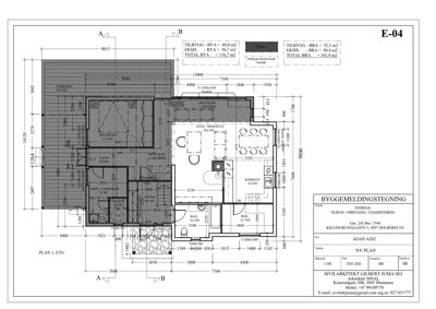
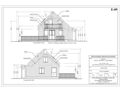
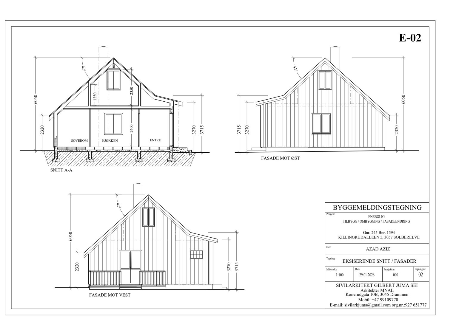
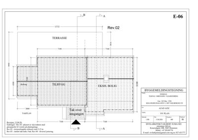
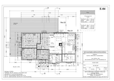
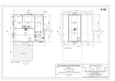
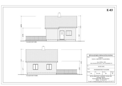
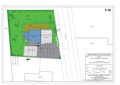
Ny to-etasjes tilbygg på eksisterende enebolig i Killingrudalleen 5, Drammen, med et bebygd areal på ca. 50 m² og et bruksareal på ca. 73,6 m². Tilbygget utvides mot vest og sør, og inneholder blant annet hovedinngang, soverom, bad, bod, vaskerom, teknisk rom, TV-stue, arbeidsrom og flere soverom. Det er etablert nye terrasser og balkong på 16 m². Fasaden er i tre med stående kledning og saltak, med flere store vindusfelt og skyvedører i glass som gir gode lysforhold. Bygget har takvinduer i bad og loftsetasje. Områdestabilitet er vurdert og godkjent, og støyforholdene tilfredsstiller gjeldende krav. Prosjektet inkluderer også ombygging av eksisterende bolig for bedre romløsning og funksjonalitet.

Produkter og materialer

Fasade Stående kledning i tre

🧱 Tre

Stående trepanel på alle fasader

Fasade med stående trepanel som harmonerer med eksisterende bolig.

Gulv Innvendige gulv

Gulv i tilbygget og ombygget bolig, ikke spesifisert materiale

Innvendige gulv i tilbygget og eksisterende bolig.

Vinduer Store glassfelt og skyvedører

🧱 Glass med aluminiumsramme

Antall: 10

Glassfelt 1200x2100 mm, skyvedører 1200x2100 mm, fastfelt 1100x2100 mm, vinduer 1100x1200 mm

Store vindusfelt og skyvedører i glass for fasader mot sør og vest, gir godt lysinnslipp og utgang til terrasse.

Stål Stål H-bjelker

🧱 Stål

Antall: 2

H-bjelker 140x2800 mm og 140x4130 mm brukt i bærende konstruksjon

Bærende stålbjelker i tilbyggets konstruksjon.

Dører Glassdører og skyvedører

🧱 Glass

Antall: 4

Glassdør D13 137x157 cm, skyvedører 1200x2100 mm

Glassdører og skyvedører til terrasser og inngangspartier.

Vinduer Takvinduer

Antall: 4

Takvindu 79x120 cm og 78x110 cm i bad og loftsetasje

Takvinduer i bad og loftsetasje for dagslys og ventilasjon.

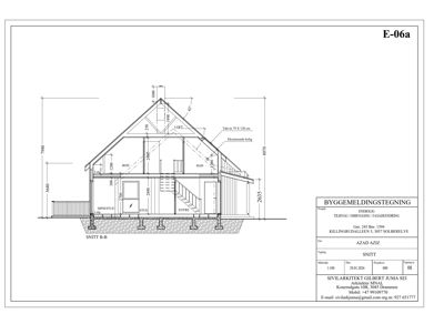
Tak Saltak

🧱 Tre med takstein eller tilsvarende

Antall: 1

Saltak med gesimshøyde ca. 6 m og mønehøyde ca. 8 m

Saltak på eksisterende bolig og tilbygget, med takvinduer.

Maling Innvendig og utvendig maling

Maling av fasade og innvendige flater

Maling av trepanel på fasade og innvendige vegger og tak.

Grunnarbeid Fundamentering og grunnarbeid

Fundamentering tilpasset kvikkleiregrunn med vurdert områdestabilitet

Grunnarbeid og fundamentering tilpasset grunnforhold med kvikkleire, uten krav om kompensering.

Elektro Belysning og elektriske installasjoner

Elektriske installasjoner i nytt tilbygg og ombygget bolig

Elektriske installasjoner for belysning og strøm i tilbygget.

VVS Bad og vaskerom installasjoner

Bad med badekar, vaskerom og teknisk rom i tilbygget

VVS-installasjoner for bad, vaskerom og teknisk rom i tilbygget.

Tømrer Tømrerarbeid

Tømrerarbeid for oppføring av tilbygg og ombygging

Tømrerarbeid for konstruksjon, kledning, dører og vinduer.

Terrasse Terrasse og balkong

🧱 Tre eller kompositt

Antall: 2

Terrasse ca. 29 m² og balkong ca. 16 m²

Utendørs oppholdsarealer knyttet til tilbygget.

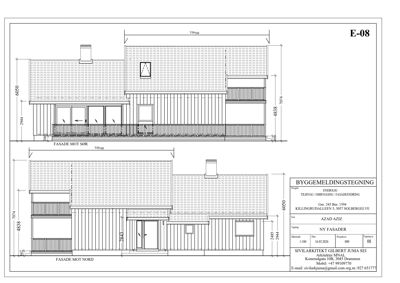
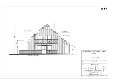
Fasader

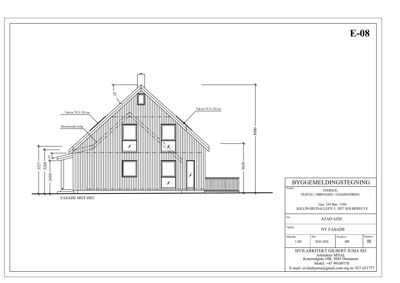
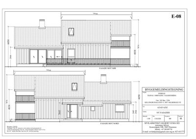
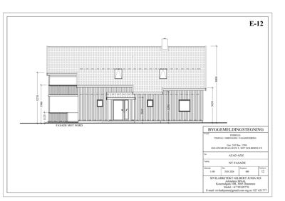
Enebolig

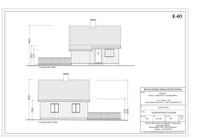
Nord
Materiale
Tre
Taktype
Saltak
Høyde
5.3 m
Mønehøyde
8.0 m
Vinduer
4
Dører
1
Balkonger
2
Synlige etasjer
2
Sør
Materiale
Tre
Taktype
Saltak
Høyde
6.0 m
Mønehøyde
7.1 m
Vinduer
1
Dører
1
Balkonger
1
Synlige etasjer
2
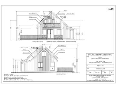
Vest
Materiale
Tre
Taktype
Saltak
Høyde
6.0 m
Mønehøyde
8.4 m
Vinduer
4
Dører
1
Balkonger
2
Synlige etasjer
2
Øst
Materiale
Tre
Taktype
Saltak
Høyde
6.0 m
Mønehøyde
8.4 m
Vinduer
3
Dører
1
Balkonger
1
Synlige etasjer
2

Hendelser

14.04.2026 Killingrudalleen 5, etterspurt dokumentasjon - Nabovarsling, tegninger og situasjonskart
26.03.2026 Killingrudalleen 5, vi trenger flere opplysninger for å behandle søknaden din
25.03.2026 Killingrudalleen 5, etterspurt dokumentasjon - støyutredning
18.03.2026 Killingrudalleen 5, Tegninger og følgebrev, opplysninger gitt i nabovarsel, nabovarsel og informasjon om tiltakets ytre rammer
11.02.2026 Killingrudalleen 5, vi trenger flere opplysninger for å behandle søknaden din
30.01.2026 Killingrudalleen 5, søknad om tillatelse i ett trinn, 245/1594
30.01.2026 Killingrudalleen 5, Revidert Geoteknisk rapport