Extension Soeknad Enebolig

Tilbygg til enebolig på Kroken 2, Husøysund

📍 Kroken 2 , 3132 HUSØYSUND

Nøkkelinfo

Sakstype
Tilbygg
Bygningstype
Enebolig
Bruksareal
193 m²
Boenheter
1
Kommune
Tønsberg
Fylke
Vestfold
Gnr / Bnr
159 / 361
Saksnummer
2026/8406
Fase
Søknad

Om byggesaken

Ny tilbygg til eksisterende enebolig på Kroken 2 i Husøysund med to separate tilbygg mot øst og vest. Tilbyggene har flate tak og trekledning med spiler i tre, og inkluderer blant annet nytt inngangsparti, bad, soverom og stue. Tilbygg øst har et areal på ca. 36,8 m² og tilbygg vest ca. 35,9 m². Det etableres nye store vinduer og utgang til terrasse fra tilbygg vest. Eksisterende terrasse oppgraderes, og det planlegges ny terrasse. Bygget har to etasjer med gesimshøyde på 5,9 m og mønehøyde på 23,9 m. Det er planlagt riving av eksisterende garasje og oppføring av ny parkeringsplass. Prosjektet inkluderer også endringer i bærekonstruksjoner, våtrom og fasade.

Produkter og materialer

Bad Våtromsinnredning

Antall: 1

Nytt bad i tilbygg øst på ca. 8 m²

Sanitærutstyr og våtromsinnredning for nytt bad

Grunnarbeid Fundamentering og grunnarbeid

Grunnarbeid for tilbygg og ny terrasse, inkludert riving av eksisterende garasje

Fasade Trekledning med spiler

🧱 Tre

Trekledning og spiler i tre på tilbygg med flate tak

Fasademateriale for tilbygg øst og vest

Elektro Elektriske installasjoner

Elektriske installasjoner i tilbygg for belysning, strøm og varme

Dører Terrassedør og ytterdør

Antall: 3

Dør til inngangsparti i tilbygg øst, dør til terrasse i tilbygg vest, og ytterdør i eksisterende bolig

Dører for inngang og utgang til terrasse

Tak Flatt tak

Antall: 2

Flate tak på begge tilbygg

Taktekking for tilbygg med flate tak

VVS Sanitærinstallasjoner

Innvendig sanitærinstallasjoner utført av Rørleggergutta AS

VVS-installasjoner for bad og vaskerom i tilbygg

Isolasjon Bygningsisolasjon

Isolasjon i vegger, tak og gulv i tilbygg for energikrav

Tømrer Bærekonstruksjoner og tømrerarbeid

Bærekonstruksjoner og tømrerarbeid utført av Byggmester Ole A Langedrag AS

Tømrerarbeid for tilbyggets konstruksjon og innvendige arbeider

Terrasse Ny terrasse

Antall: 1

Ny terrasse på ca. 37,4 m², tilknyttet tilbygg vest

Utendørs terrasseareal med tilknytning til stue i tilbygg

Vinduer Store fasadevinduer

Antall: 3

Nye store vinduer i tilbygg vest, totalt 3 vinduer i tilbygg øst og 2 i vest

Vinduer for tilbygg, inkludert store vindusflater mot terrasse

Gulv Innvendige gulv

Gulv i nye rom som stue, soverom, bad og gang i tilbygg

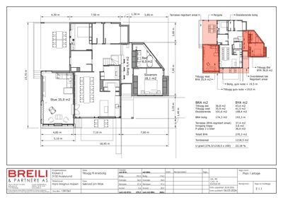
Plantegning

Enebolig 193.3 m²

Etasje 1 193.3 m²

Rom Areal Vinduer Dører
Stue og spisekrok 101 35.8 m² 3 2
Kjøkken 102 10.8 m² 1 1
Entré 103 4.5 m² 0 2
Soverom 1 104 17.0 m² 1 1
Soverom 2 105 14.1 m² 1 1
Soverom 3 106 11.2 m² 1 1
Bad 107 5.0 m² 0 1
Vaskerom 108 3.0 m² 0 1
Sportsbod 109 10.0 m² 1 1

Fasader

Enebolig

Øst
Materiale
Tre
Taktype
Flatt tak
Høyde
5.9 m
Mønehøyde
23.9 m
Vinduer
3
Dører
1
Synlige etasjer
2
Vest
Materiale
Tre
Taktype
Saltak
Høyde
5.9 m
Mønehøyde
23.9 m
Vinduer
2
Dører
1
Synlige etasjer
2
Syd
Materiale
Tre
Taktype
Saltak
Høyde
4.3 m
Vinduer
6
Dører
1
Synlige etasjer
1
Nord
Materiale
Tre
Taktype
Saltak
Vinduer
2
Dører
0
Balkonger
1
Synlige etasjer
1
Sør
Materiale
Tre
Taktype
Flatt tak
Vinduer
6
Dører
0
Balkonger
1
Synlige etasjer
1

Hendelser

15.04.2026 Kroken 2 - 159/361 - tilbygg til enebolig - søknad om tillatelse i ett trinn