Extension UnderBehandling Enebolig

Tilbygg med utvidelse og sammenslåing av terrasse i Krystallveien 21, Nærsnes

📍 Krystallveien 21 , 3478 NÆRSNES

Nøkkelinfo

Sakstype
Tilbygg
Bygningstype
Enebolig
Bruksareal
33 m²
Boenheter
1
Kommune
Asker
Fylke
Akershus
Gnr / Bnr
243 / 390
Saksnummer
20/4915
Fase
Under behandling

Om byggesaken

Ny utvidet terrasse på ca. 33 m² som sammenslår eksisterende terrasse og balkong på en enebolig i Krystallveien 21, Nærsnes. Terrassen bygges i tre med espalje under for å skjule søyler, og tilpasses terrenget med høyde fra 0 til ca. 1,5 meter over bakken. Tiltaket øker bebygd areal (BYA) til 219 m², som gir en utnyttelse på 19 % av tomten på 1173 m². Terrassen har adkomst fra stue og kjøkken, og er plassert slik at den ikke gir betydelig ulempe for naboer. Bygningen har saltak og trefasade, og tiltaket følger reguleringsplanens krav til materialbruk og utforming.

Produkter og materialer

Grunnarbeid Terrassefundament

Fundamentering for terrasse med høydevariasjon 0-1,5 m over terreng

Grunnarbeid for terrasse med tilpasning til terreng

Vinduer Fasadevindu

🧱 Tre/aluminium

Antall: 14

Eksisterende vinduer i enebolig, ingen endring oppgitt

Tak Saltak

🧱 Teglstein eller cementtakstein

Saltak med takvinkel mellom 28 og 45 grader, tekket med teglstein eller cementtakstein

Taktekking i henhold til reguleringsplanens krav

Terrasse Utvidet terrasse og sammenslått balkong

🧱 Tre

Antall: 1

Ca. 33 m² terrasse med espalje under for skjuling av søyler, høyde 0-1,5 m over terreng

Ny terrasse som sammenslår eksisterende terrasse og balkong, tilpasset terreng og naboer

Dører Ytterdør og terrassedør

Antall: 8

Eksisterende dører i enebolig, inkludert terrassedør til ny terrasse

Fasade Trepanel

🧱 Tre

Trefasade med saltak, i tråd med reguleringsplanens krav

Fasade skal følge eksisterende trepanel og saltak med takvinkel 28-45 grader

Tømrer Terrassekonstruksjon

🧱 Tre

Konstruksjon av terrasse i tre med espalje under

Bygging av terrassekonstruksjon i tre med skjult søyleverk

Plantegning

Enebolig 130.8 m²

Etasje 1 130.8 m²

Rom Areal Vinduer Dører
Kombi stue 101 45.5 m² 3 2
Kjøkken 102 13.0 m² 2 2
Entré 103 0.0 m² 0 2
Vindfang 104 0.0 m² 1 2
Bad/WC 105 6.8 m² 0 1
Soverom 106 8.8 m² 1 1
Soverom 107 8.8 m² 1 1
Soverom 108 10.4 m² 1 1

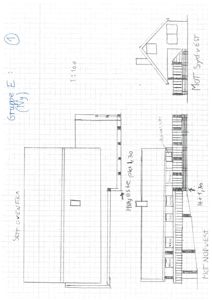
Fasader

Enebolig

Nordøst
Materiale
Tre
Taktype
Saltak
Vinduer
5
Dører
1
Balkonger
1
Synlige etasjer
2
Sydvest
Materiale
Tre
Taktype
Saltak
Vinduer
3
Dører
1
Synlige etasjer
2
Sydøst
Materiale
Tre
Taktype
Saltak
Vinduer
4
Dører
1
Synlige etasjer
2
Nordvest
Materiale
Tre
Taktype
Saltak
Vinduer
6
Dører
1
Balkonger
1
Synlige etasjer
2

Hendelser

10.04.2026 243/390 Tilbygg - Utvidelse og sammenslåing av terrasse og balkong - Manglende ferdigattest eller midlertidig brukstillatelse
06.09.2020 243/390 Tillatelse uten ansvarsrett - Utvidelse av terrasse og balkong
15.07.2020 243/390 Mottatt søknad - Tilbygg - Utvidelse og sammenslåing av terrasse og balkong
13.07.2020 243/390 Vedlegg til søknad om tilbygg - Utvidelse og sammenslåing av terrasse og balkong
13.07.2020 243/390 Søknad om tilbygg - Utvidelse og sammenslåing av terrasse og balkong